ARHITECTURĂ: Shovk Studio TEXT: Anca Rotar FOTO: Yevhenii Avramenko
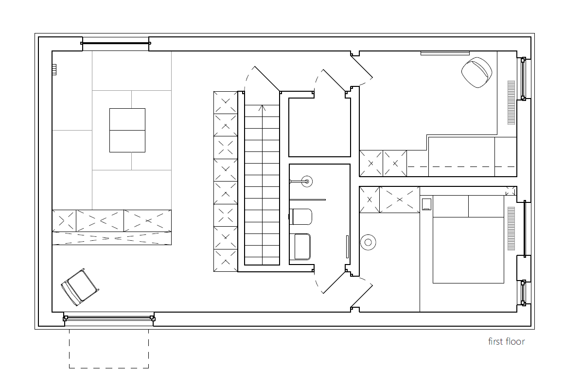
Situată în Kyiv, Dzen House a fost creată pentru o familie care și-a dorit un sanctuar calm, în armonie cu natura. Proiectul aduce un omagiu arhitecturii tradiționale japoneze prin elemente precum placările exterioare din lemn ars realizate conform tehnicii yakisugi, , grinzile aparente, planul interior simplificat și prezența unei zone de tatami la nivelul superior.
Deși influențele japoneze sunt dominante, nivelul parterului este locul unui fusion subtil între estetica niponă și specificul local, prin prezența, atât la exterior cât și în interior, a unui tip de tencuială rugoasă întâlnit în locuințele tradiționale ucrainene numite „mazanka”.
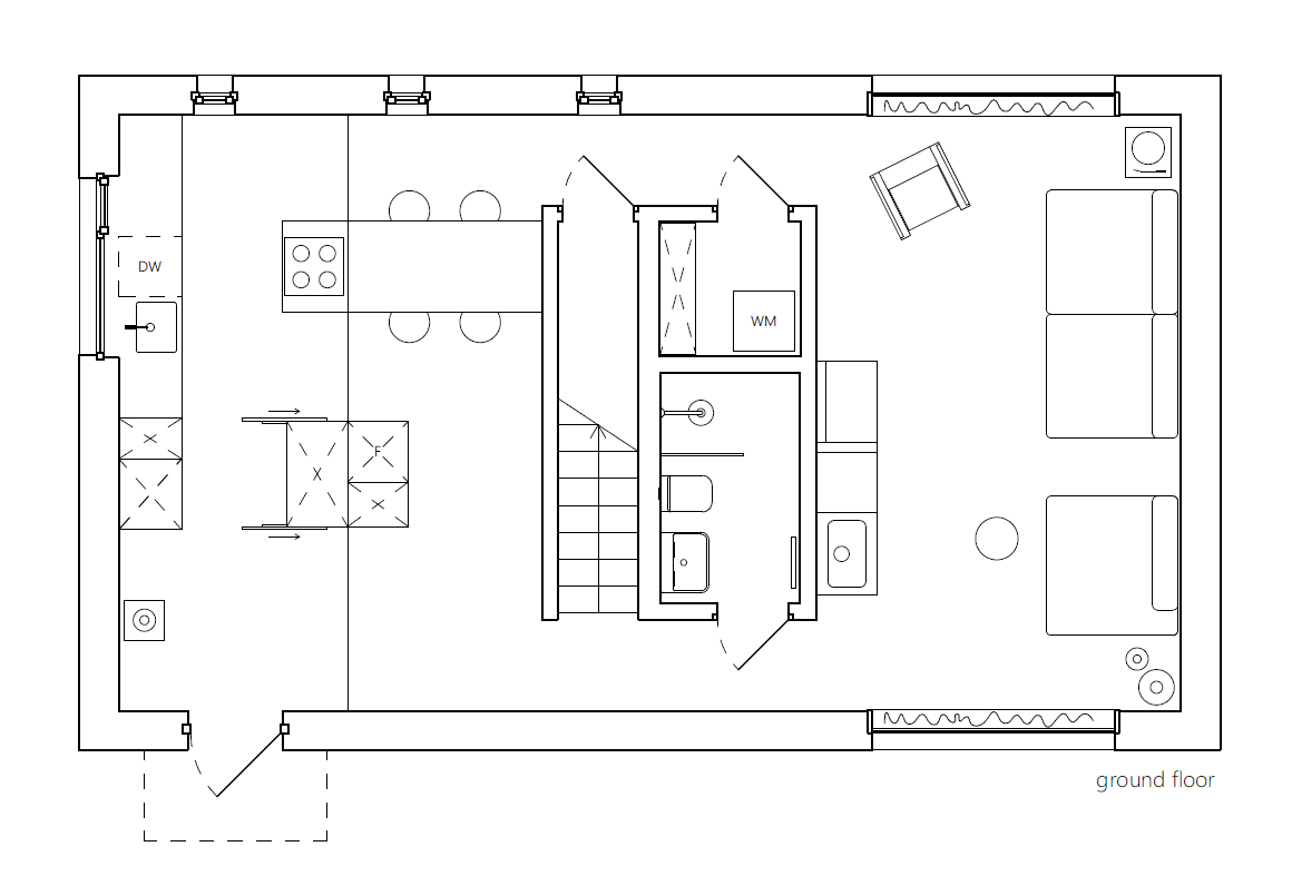
Înăuntru, planul deschis cuprinde bucătăria și spațiile de locuit, organizate în jurul unui nucleu funcțional ce conține casa scării, baia și încăperile tehnice. Acest aranjament favorizează atât separarea, cât și comunicarea dintre bucătărie și celelalte zone. Mai mult, concentrarea circulației în jurul nucleului central facilitează mișcarea, amplificând, în același timp, spațiul perceput și creând o iluzie de nemărginire. Ferestrele panoramice estompează limitele dintre spațiul protejat al casei și peisajul înconjurător, menținând o comunicare vizuală neîntreruptă cu grădina populată de conifere.
În cadrul întregii locuințe, soluțiile estetice se îmbină în mod natural și armonios cu cele practice, generând un microclimat favorabil bunăstării și un sentiment de confort seren. Șemineul, un punct focal în cadrul amenajării parterului, este poziționat strategic aproape de centrul livingului cu fereastră panoramică, permițând contemplarea grădinii pe timp de iarnă, într-o atmosferă călduroasă. Mai mult, țeava de fum din oțel inoxidabil trece prin dormitor, încălzind camera și, în același timp, servind ca element decorativ. De asemenea, pardoseala din beton de la parter reține și distribuie căldura generată de sistemul de încălzire încorporat. Sistemul de ventilație asigură un flux continuu de aer proaspăt la temperaturi optime.
PROIECT: Dzen House; AMPLASAMENT: Kyiv, Ucraina; SUPRAFAȚA: 117 mp; ARHITECTURĂ: Shovk Studio; FINALIZAT: 2024








