La Facultatea de Arhitectură din Zürich, Elveția, a fost inițiat în această toamnă un experiment multidisciplinar. Profesoara Elli Mosayebi a proiectat un spațiu de locuit cu elemente mobile și multifuncționale. În prezent, el este testat de voluntari care oferă informații cu privire la condițiile de locuit.
Proiectul a pornit de la două aspecte fundamentale care influențează piața imobiliară actuală: atât numărul persoanelor care locuiesc singure, cât și prețurile terenurilor urbane sunt în creștere. Pentru a răspunde nevoii de metri pătrați pentru uz individual în mod optim au apărut deja pe plan internațional concepte de genul ”microapartments” sau ”tiny houses”. Studiile arată însă că investitorii par a nu fi dornici să se aventureze în proiecte inedite atât timp cât locuințele tradiționale aduc venituri corespunzătoare.
În cadrul colectivului de arhitecți EMI din Zürich, Elli Mosayebi a venit cu ideea unui spațiu restrâns, dar dinamic pe care ocupantul îl poate transforma în orice moment după dorință și nevoie. Din fericire, ea a găsit și un partener imobiliar dispus să transpună în realitate proiectul său. Înainte de aplicarea în practică, s-a decis însă inițierea unui experiment pentru a observa dinamica și comportamentul ocupanților, a perfecționa proiectul și a-i asigura succesul.
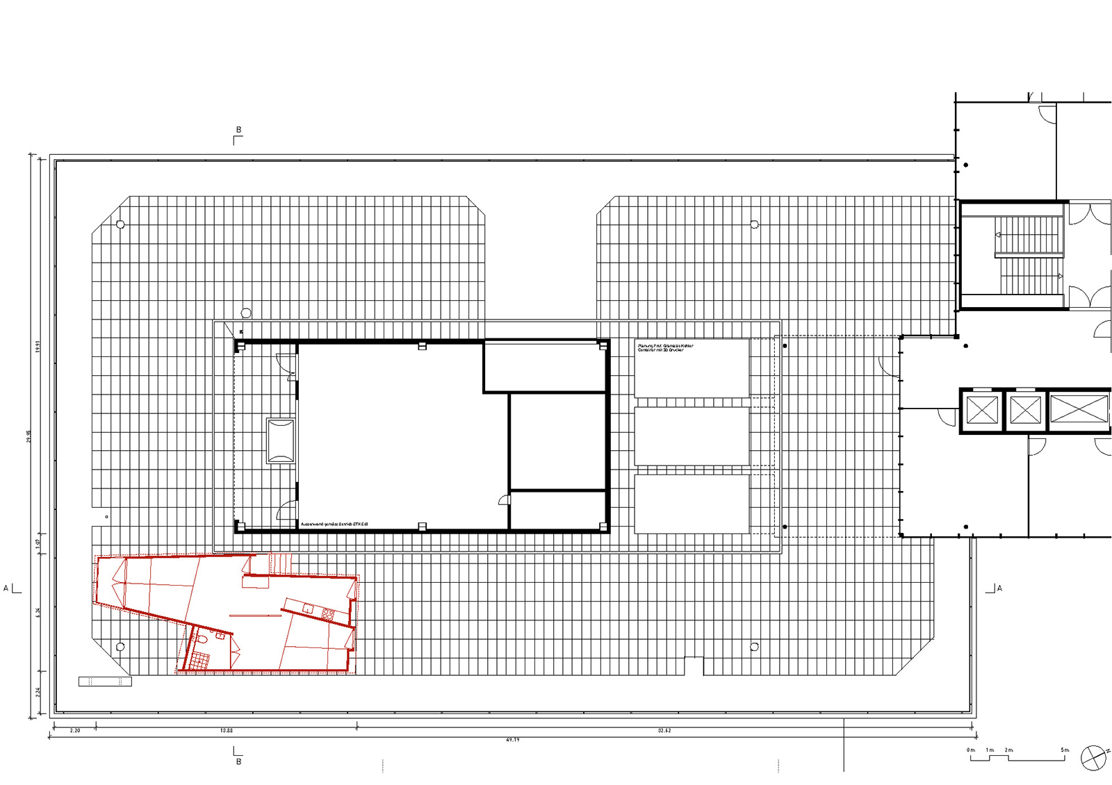
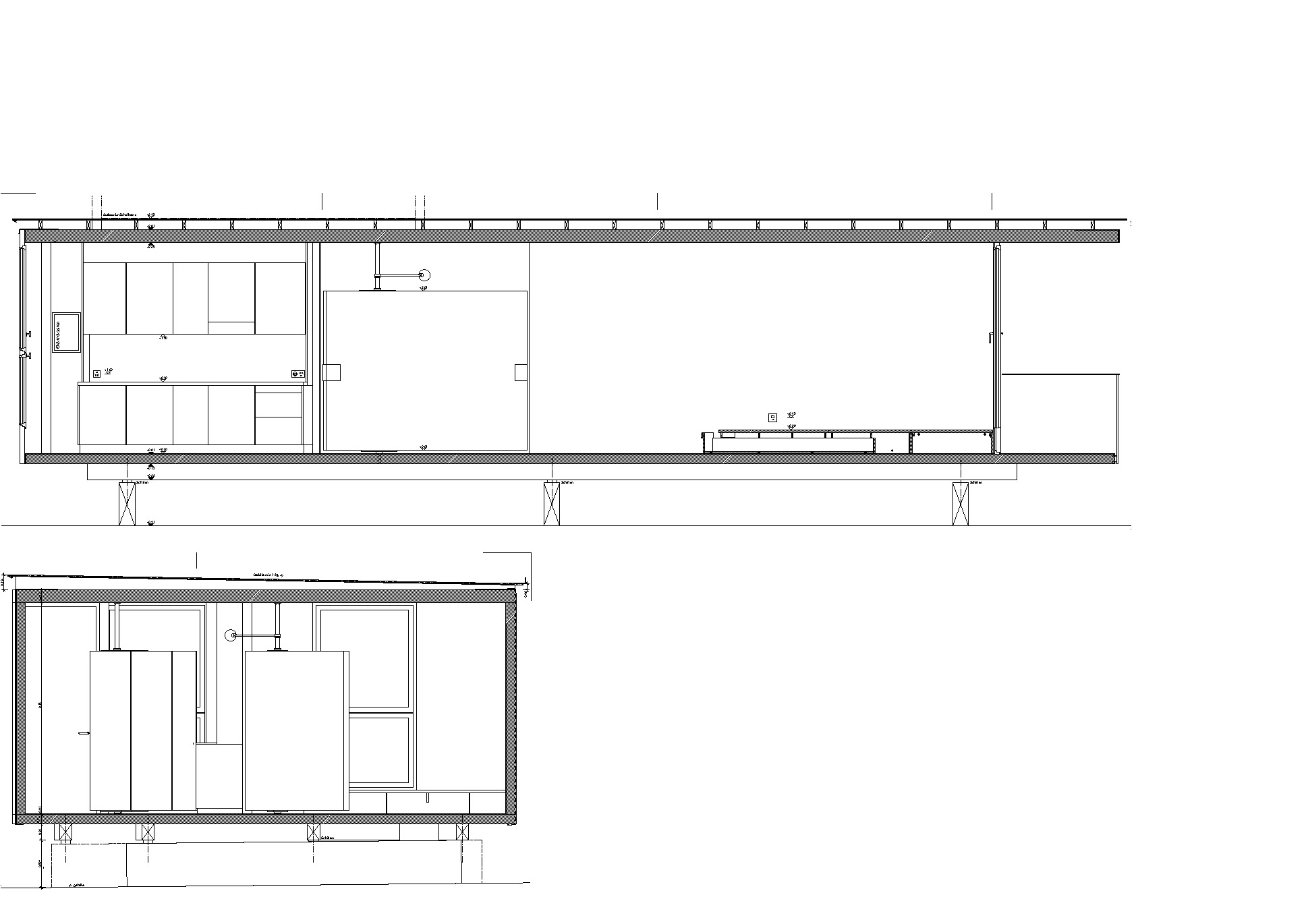
Pentru aceasta a fost construit un prototip de apartament pe terasa de pe acoperișul facultății. El măsoară 54 mp și este dotat cu o lampă, un perete și un dulap mobil, precum și un podium cu sertare și capace rabatabile sub care se pot depune obiecte. Dulapul este acoperit pe o latură cu o oglindă.

Astfel se extinde percepția spațiului și se pot alterna vizual diverse unghiuri. În funcție de poziționare, permite sau nu accesul la bucătărie ori la intrare. Peretele poate bloca vederea spre dormitor și/sau bucătărie.
Pe latura cea mai vizibilă a construcției, a fost instalat cu litere mari de neon titlul experimentului ”NO VACANCY”. În funcție de ocuparea apartamentului, cuvântul ”no” apare luminat sau nu. Proiectul a fost larg publicat atât în presa studențească, cât și în periodicele elvețiene. Începând din luna septembrie, prototipul este locuit câte o săptămână de probanți voluntari care se pot înscrie pe internet. La toate elementele mobile – inclusiv ferestrele și sertarele din bucătărie – au fost instalați senzori care măsoară aspectele cantitative ale testului, respectiv frecvența și durata cu care locatarul schimbă poziția acestora. Există de asemenea aspecte calitative care sunt luate în considerare: voluntarii completează un chestionar și sunt, de asemenea, încurajați să noteze într-un fel de jurnal propriile experiențe, impresii, idei, sugestii.

Cu ocazia unei vizite ghidate pentru presă, aflăm de la secretara colectivului de arhitecți că primii voluntari sunt studenți și angajați ai facultății. Dorința organizatorilor este însă ca cercul de probanți să devină cât mai amplu, pentru a obține un număr cât mai divers de informații. Astfel, ei vor fi selecționați din straturi sociale, vârste și ocupații cât mai diverse. Majoritatea vor locui singuri, dar sunt acceptate și cupluri. Experimentul se va desfășura timp de un an și va avea circa 40 de probanți. Deoarece terasa nu este prevăzută cu un zid înconjurător suficient de înalt copii nu pot fi voluntari. Cu toate acestea, Domnul arhitect Christian Inderbitzin, membru al colectivului EMI, ne mărturisește în timpul vizitei că plănuiește să petreacă și el o săptămână în apartament împreună cu fiul său de șase ani. Nu doar pentru a conferi credibilitate proiectului, ci pur și simplu din curiozitate profesională: ocazia de a testa un proiect este rară. Tot dumnealui menționează aspectele tehnice și mecanice care se cer observate pe parcursul experimentului. De exemplu, axa de rotație a peretelui mobil, cât este de operabilă, stabilă, mobilă sau dacă oțelul folosit la construcția sa este adecvat funcției. La sertare s-a stabilit deja că sunt dificil de manevrat și au nevoie de roți mai mari.

Materialul principal de construcție este lemnul masiv, cu o aparentă vizibilitate a fibrei. Pe lângă structura de bază a apartamentului, culorile sunt și ele definite: locuințele fiind de închiriat, proiectul nu lasă elementele de construcție la alegerea ocupanților. Vopseaua este de natură minerală, cu un maximum efect mat care, evitând reflexia luminii, conferă căldură ambientului. Într-un interviu, profesoara Elli Mosayebi arată: „Sunt puține elementele pe care le mai poate aduce ocupantul eventual o masă, un raft și o saltea. Proiectul pune sub semnul întrebării ce și cât avem cu adevărat nevoie să posedăm.”
