ARHITECTURĂ: Polarh Design TEXT: Cristian Brăcăcescu FOTO: Polarh Design, Cristian Brăcăcescu

Istoria Grădinii Botanice din București e destul de aventuroasă și ar fi păcat s-o ignorăm. Prin strădania lui Carol Davila, părintele sistemului medical românesc, a fost întemeiată în 1860, pe un teren al mănăstirii Cotroceni. La secularizarea din 1864, mănăstirea a fost desființată, iar în 1870 s-a decis amenajarea ei ca palat al viitoarei familii regale. Reședința domnească nu mai putea găzdui o grădină publică, drept care în 1874 a fost mutată în curtea palatului Suțu, în dreptul statuii lui Mihai Viteazul. După un deceniu de tenace solicitări, Dimitrie Brândză obține de la guvern bani pentru revenirea Grădinii Botanice în Cotroceni, peste drum de fosta mănăstire. În prezent, cu cele 17,5 ha ale ei, egalează, dacă nu întrece, parcul palatului prezidențial.

În 1932, Grădina Botanică trece din subordinea Universității București în cea a Primăriei. Octav Doicescu, directorul secției Lucrări Noui, inițiază modernizarea zonei: prin exproprieri și demolări se lărgesc și se pietruiesc străzile din jur, iar în Grădină se fac noi amenajări și se construiește un restaurant modern. La 7 iunie 1935 se oficiază o nouă inaugurare, onorată de regele Carol al II-lea.

Fotografie din 1936

Clădirea restaurantului, proiectată chiar de Doicescu, aparține stilistic modernismului, curent aflat în plină expansiune europeană și autohtonă. În același timp însă exprimă o simbioză a trăsăturilor moderniste cu elemente extrase din arhitectura tradițională, dar într-o manieră diferită de pitorescul neoromânesc. Arcul în plin cintru, coloana, arcada, reduse brâncușian la geometria lor primordială, nu constituie un experiment de autor, ci un concept estetic asumat – un manifest.

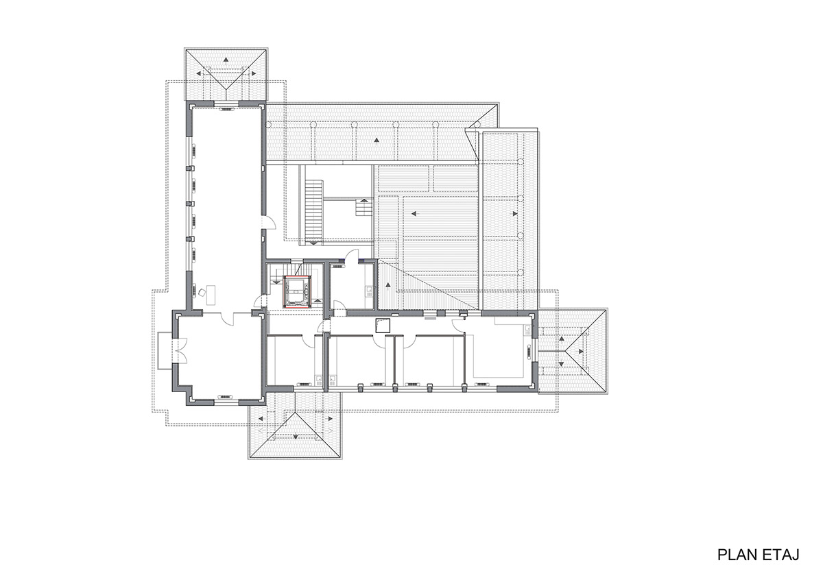
Subiectul lejer – un restaurant în parc – a permis arhitectului o abordare liberă a compoziției, atât în plan cât și pe verticală. Spațiile de primire, de servire, de preparare și depozitare, grupate compact și înconjurate de terase, diferă ca formă, proporții, ieșire din aliniamentul fațadelor. Varietatea lor se justifică și funcțional, deoarece pe lângă preparatele culinare, oferta localului includea și produse de cofetărie, cafea, ceai, limonadă etc. Planimetric, se poate face o incitantă comparație cu bineștiutul Bufet de la Șosea, creat de Ion Mincu.

Din păcate, bufetul-restaurant n-a avut un destin tihnit. La raidul aerian din 04.04.1944, șase din cele 94 de bombe lansate în Grădina Botanică au căzut la doar câțiva metri de el. În 1953, înapoiat Universității București, a fost alocat Facultății de Biologie și a suferit modificări inerente. După 1961, alte schimbări de destinație: pavilion administrativ, birouri, laboratoare, herbar, arhivă, bibliotecă, vestiare. Multele prefaceri și lipsa cronică a mijloacelor financiare i-au alterat inevitabil înfățișarea. A îmbrăcat haina banală și ternă al unei construcții utilitare.

Restaurarea nu i-a putut reda funcția inițială, accesarea fondurilor fiind condiționată de o activitate educativă. A fost însă reconstituit aproape complet aspectul exterior: învelitoare din olane, tencuială albă pe fațade, tâmplărie de lemn la toate ferestrele. Terasa estică, transformată în depozit, a fost redeschisă; la fel unele goluri de uși și ferestre. Au fost desființate vestiarele și magaziile de pe latura de nord. Pentru aducerea la parametrii actuali de siguranță și confort, s-au înlocuit și completat instalațiile, inclusiv cu echipamente digitale de supraveghere antiefracţie, detecție incendii și monitorizare seismică.

 

Recăpătând veșmântul primordial imaculat, din viziunea lui Octav Doicescu, clădirea înfățișează azi privitorului o alcătuire simplă, asimetrică și subtilă ca o compoziție ikebana.

PROIECT: Restaurarea și refuncționalizarea clădirii fostului restaurant din Grădina Botanică; ADRESĂ: Şos. Cotroceni nr. 32, București; ARHITECTURĂ: Polarh Design; ECHIPA: prof. dr. arh. Virgiliu Polizu, arh. Mircea Căpățână, arh. Ruxandra Căpățână; STRUCTURĂ: dr. ing. Lucian Soveja; INSTALAȚII: ing. Ioan Roșiu; EXECUTANT: PALEX Construcții & Instalații;FINALIZAT: 2022

 

Articol publicat în igloo 214 / Peisajul recent / iunie – iulie 2023