AMENAJARE DE INTERIOR: Mirzoyan Studio TEXT: Anca Rotar FOTO: Yevhenii Avramenko
Amplasat la primul etaj al hotelului Bursa, din centrul istoric al Kyiv-ului, acest bar își invită oaspeții să savureze un cocktail și să se bucure de muzică într-un cadru inspirat din cultura japoneză contemporană. Locația intimă își propune să devină un hub pentru colecționarii de discuri de vinil și amatorii de muzică live din întreaga lume.
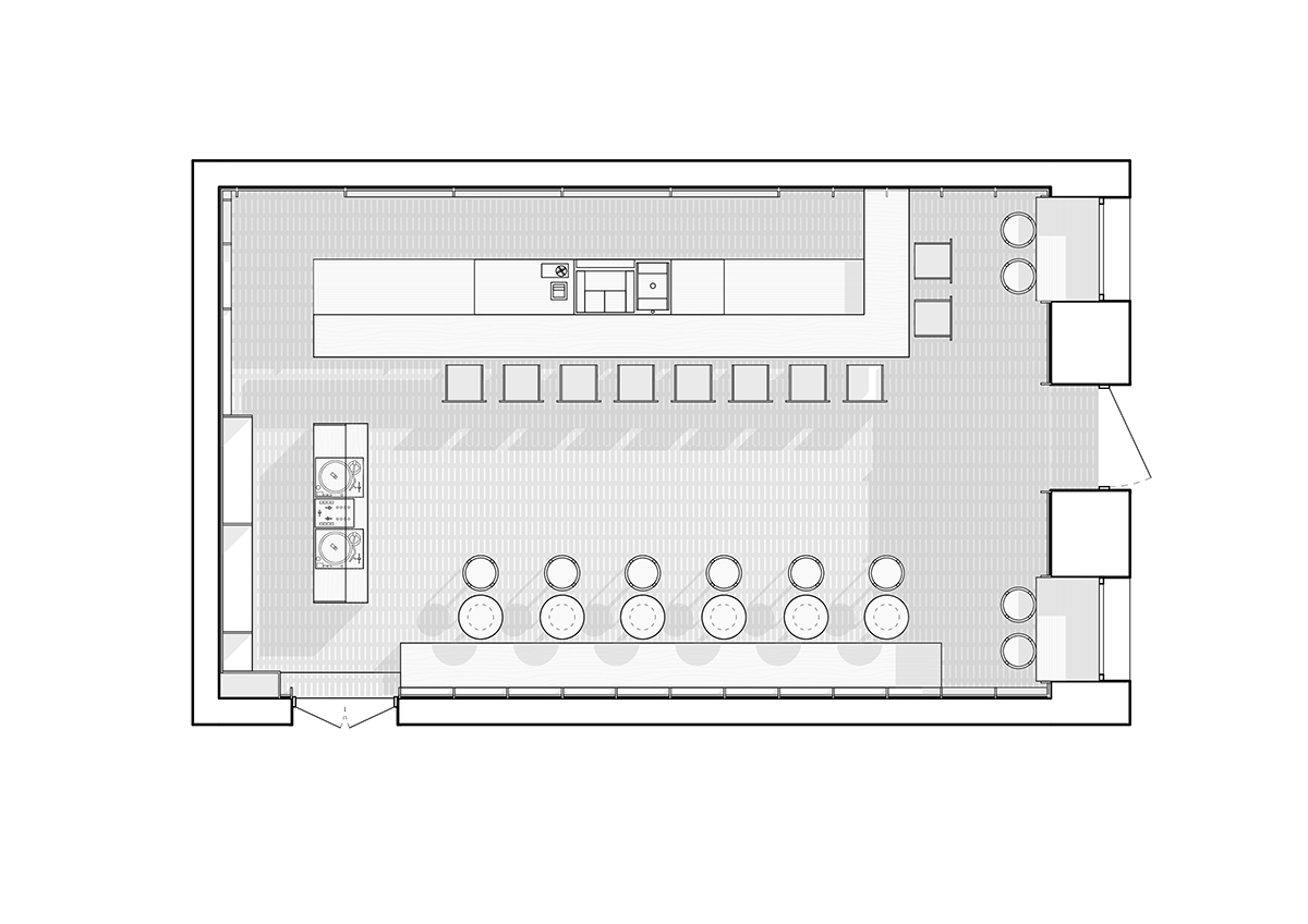
Spațiul este organizat într-un mod simplu și funcțional. Cabina DJ-ului și colecția de discuri se găsesc la intrare, iar barul și zonele de ședere sunt amplasate perimetral, lăsând liber spațiul central pentru liberă circulație și dans.
Având în vedere destinația localului, o atenție deosebită a fost acordată designului acustic. Astfel, spațiul nu numai că este dotat cu un sistem audio performant, ci amintește în sine de un instrument muzical, intenția fiind ca vizitatorii să aibă impresia că se află în interiorul unei chitare uriașe sau al unui difuzor, protejați de placajele calde din furnir.
Una dintre provocările majore ale proiectului a fost asigurarea unei bune izolații fonice, pentru a respecta confortul oaspeților hotelului. În acest scop, nivelul tavanului a fost coborât și s-a optat pentru o soluție de plafon casetat, care a permis amplasarea de corpuri de iluminat și camuflarea sistemului de ventilație, contribuind, în același timp, la atmosfera intimă.
Majoritatea elementelor de decor au fost lucrate de meșteri ucraineni special pentru acest proiect. Influențele japoneze au fost integrate în mod subtil, prin linii drepte, forme curate, orientarea pe orizontală a obiectelor, ritmul vertical al pereților și tavanul ortogonal. Detaliile din oțel inoxidabil prezente în cadrul ferestrelor și mobilierului de ședere creează un contrast plăcut cu elemntul dominant al furnirului și conferă ritm interiorului. De asemenea, barul este acoperit cu plăci ceramice, amintind de aspectul sobelor tradiționale.
Iluminatul joacă un rol crucial în crearea atmosferei dorite pentru serile de muzică. Luminile de accent din zonele de ședere creează mici puncte luminoase, în timp ce iluminatul liniar soft atrage atenția asupra rafturilor cu viniluri, dar și a celor cu băuturi rafinate. De asemenea, intensitatea iluminatului poate fi ajustată pentru a crea diferite stări de spirit pentru diferite zone ale localului.
PROIECT: Bursa Bar; AMPLASAMENT: Kyiv, Ucraina; SUPRAFAȚA: 55 mp; AMENAJARE DE INTERIOR: Mirzoyan Studio – Nastia Mirzoyan; FINALIZAT: 2024





