ARHITECTURĂ: Magma Studio TEXT: arh. Mihail Neagu, Anca Rotar FOTO: Sabin Prodan
Situată într-o zonă centrală din Ploiești, această casă, concepută ca un „iaht urban” negociază – sau, putem spune, „navighează” cu abilitate printre constrângerile impuse de un sit de dimensiuni restrânse și complicat din punct de vedere urbanistic. Atât exteriorul, cât și interiorul sunt gândite în așa fel încât să funcționeze și să inter-relationeze asemănător cu modul de organizare al unui iaht autentic, unde spațiul este restrâns, dar conține toate elementele necesare confortului, asigurând, în același timp, intimitatea ocupanților.
Cu o volumetrie dinamică, noua construcție capătă o identitate puternică în cadrul țesutului urban în care este inserată, rămânând, totuși, în armonie cu acesta prin dimensiuni și prin materialele alese pentru finisaje. Detaliile de tencuială decorativă de pe fațadă, cu striații verticale, creează o imagine definită de simplitate și eleganță.
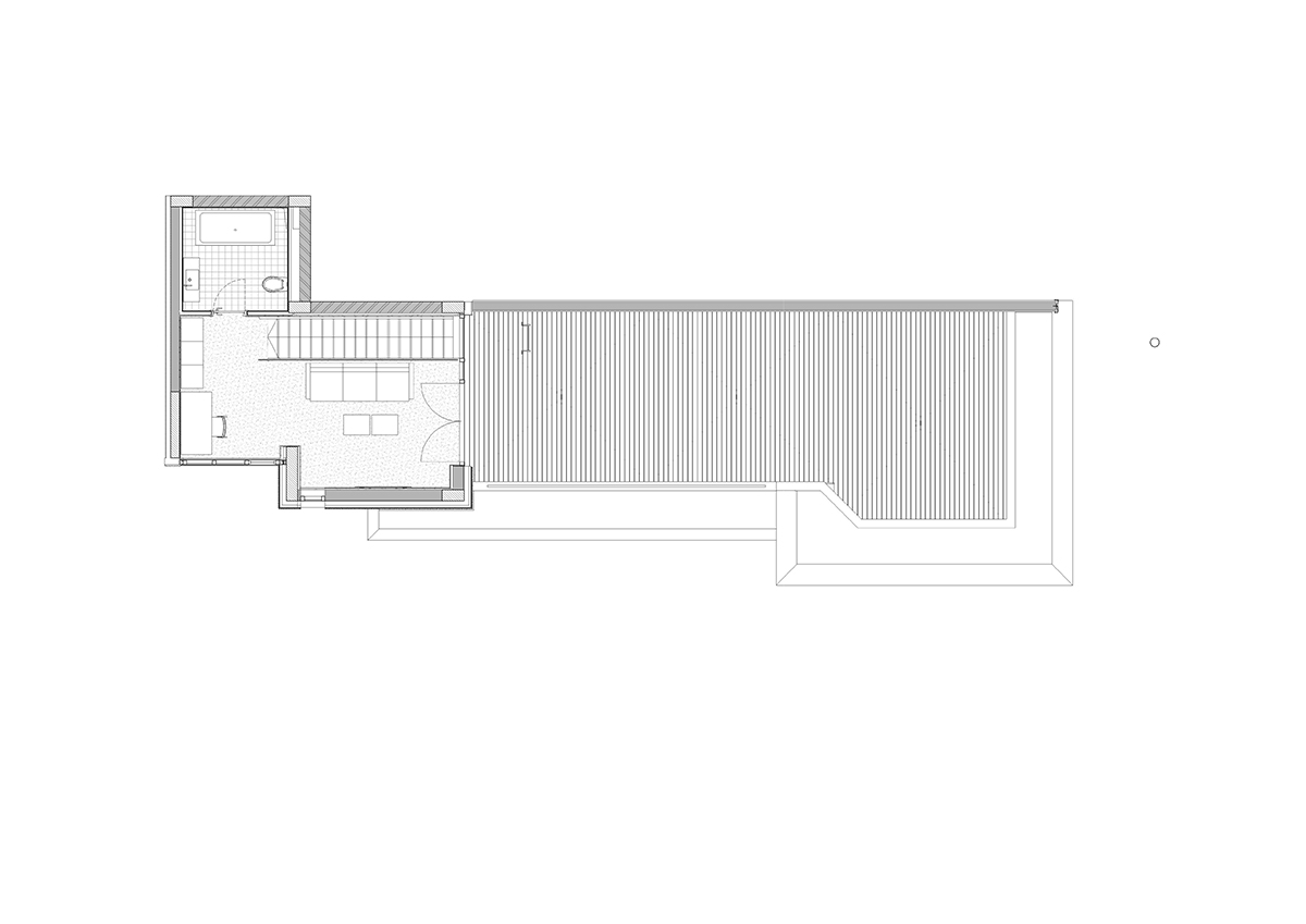
Ferestrele de dimensiuni mari și terasele prevăzute pe ambele niveluri, atent distribuite și ascunse printre volumele clădirii, asigură comunicarea constantă dintre interior și exterior, făcând posibilă, astfel, un tip de locuire în apropiere de natură, în ciuda faptului că terenul este situat în centrul orașului.
Terasa circulabilă oferă posibilitatea amenajării unei zone de lounge sau a unui spațiu de dining în aer liber. Pardoseala flotantă, cu plăci ceramice suspendate și scurgeri ascunse, oferă o imagine unitară și armonioasă. Jardinierele amplasate perimetral protejează spațiul locuinței de agitația orașului, creând o veritabilă oază urbană populată cu plante aromatice, flori, arbuști și copaci de înălțime joasă.
Curtea, deși un spațiu relativ restrâns, este atent amenajată, cu mai multe zone ce pot fi utilizate diferit: zonă de dining (cockpit), o mini-pădure de mesteceni și o alee către poartă, flancată de verdeață. Pentru a minimiza nevoia de întreținere, curtea a fost acoperită cu piatră decorativă.
Eficiența energetică a locuinței este asigurată de un termosistem din vată minerală, precum și de folosirea zidăriei cu inserții de vată minerală și a unor tâmplării de înaltă performanță. Climatizarea are loc printr-un sistem de aer condiționat eficient și o centrală pe gaze naturale modernă, cuplată cu un sistem de încălzire în pardoseală. Mai mult, toate corpurile de iluminat din interior și exterior folosesc tehnologie LED cu consum energetic minim.
PROIECT: Casa C; AMPLASAMENT: Ploiești; REGIM DE ÎNĂLȚIME: P+1; SUPRAFAȚA TERENULUI: 268 mp; SUPRAFAȚA CONSTRUITĂ DESFĂȘURATĂ: 144 mp; ARHITECTURĂ: Magma Studio; ECHIPA DE PROIECTARE: arh. Mihail Banciu, arh. Alexandru Cătăuță; STRUCTURĂ: ing Cosmin Buzuloiu; INSTALAȚII: ing. Florentina Radu; ARHITECTURĂ PEISAJERĂ: arh. Mihail Banciu; FINALIZAT: 2024






