ARHITECTURĂ: Stempel & Tesar architekti TEXT: Anca Rotar FOTO: Filip Šlapal, Fotes
Apărând ca o pasarelă de oțel suspendată deasupra unei pante abrupte, Villa Sidonius își găsește locul în cartierul de vile din Černošice, în apropiere de Praga, cunoscut pentru „colecția” frapantă de locuințe unice – începând cu cele în stil Art Nouveau și până la cele mai recente experimente – ce ilustrează în mod spectaculos evoluția stilurilor arhitecturale de la începutul secolului 20 până în prezent.
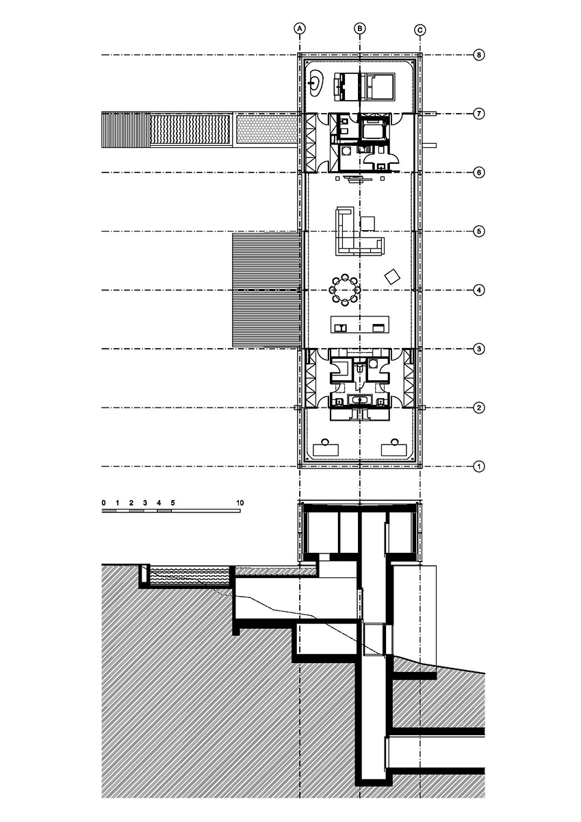
Situată în partea de nord a cartierului, noua construcție ocupă un sit abrupt, sursă de provocări, dar și de avantaje, cel mai mare dintre acestea din urmă fiind priveliștile spectaculoase asupra peisajului înconjurător și a orașului Praga, în fundal. Prin urmare, arhitecții au încercat să aducă aceste priveliști în toate spațiile de locuit, din cel mai bun unghi posibil. În ceea ce privește dezavantajele, versantul nordic suferea de o lipsă de soare, acesta strălucind, în cea mai mare parte a zilei, doar în partea cea mai înaltă, greu accesibilă, a proprietății. Arhitecții s-au întrebat, astfel, cum să construiască locuința cât mai sus posibil pe proprietate, asigurându-se, în același timp, că ea va putea fi ușor accesată. Soluția găsită s-a bazat pe conceptul de casă suspendată, forma „câștigătoare” fiind o structură asemănătoare unui pod susținut de stâlpi. Locuința seamănă, astfel, cu o pasarelă de oțel amplasată pe o pantă abruptă, unde a fost rotită pentru a se orienta către priveliștile de la nord, și a profita cât mai mult de soarele de la sud.
Structura prefabricată a vilei este din oțel și constă într-o secțiune portantă exterioară din profile HEB 300 – care acoperă distanța de optsprezece metri pe care se desfășoară stâlpii monolitici din beton armat – și dintr-o umplutură de construcție internă formată din profile IPE 160, care servește drept cadru portant pentru ferestre, acoperiș și pardoseli. Datorită particularităților terenului, nu au existat nici contextul, nici dorința de a proiecta o casă folosind metode tradiționale, scopul fiind, în schimb, de a găsi soluții care să depășească limitele și să testeze cele mai noi produse și echipamente tehnologice de pe piață, precum ferestrele air-lux cu etanșări asistate de aer și un sistem de încălzire și răcire cu pompe de căldură, care asigură un climat interior confortabil pe tot parcursul anului într-o locuință cu capacitate redusă de stocare a căldurii.
Interiorul este accesibil din garaj – care găzduiește și un studio și o zonă de fitness – prin intermediul unui tunel ce conduce la baza unuia dintre stâlpi, de unde un lift urcă spre spațiile de locuit, oferind și o oprire intermediară, pentru acces la camera de serviciu. Inima locuinței este o generoasă zonă de zi tip open-space, cu mobilier încastrat realizat special pentru acest proiect, formată din living, bucătărie și dining. De aici, se poate accesa terasa orientată spre sud, care leagă vila de terenul cu vegetație și partea superioară însorită a grădinii cu piscină. Părțile proeminente ale „podului” conțin cele două zone de noapte – de o parte, camerele copiilor, și, de cealaltă, dormitorul matrimonial cu baie și vedere către primele.
Colaborarea strânsă cu arhitectul peisagist a dus la ideea acoperirii cu ardezie a pantei deasupra căreia este suspendată locuința, și plantarea ei cu mesteceni – o soluție inedită, în armonie cu aspectul și conceptul general al noii construcții. Alte soluții de design, cum ar fi piscina și elementele conexe, au apărut în urma unui efort comun al arhitecților și peisagistului. Astfel, noua locuință este rezultatul unui proces creativ unic, care a implicat numeroși specialiști și s-a bucurat și de o implicare considerabilă din partea proprietarului.
PROIECT: Vila Sidonius; AMPLASAMENT: Černošice, Regiunea Boemia Centrală, Republica Cehă; SUPRAFAȚA TERENULUI: 1 673 mp; SUPRAFAȚA CONSTRUITĂ DESFĂȘURATĂ: 335 mp + 135 mp garaj; ARHITECTURĂ: Stempel & Tesar architekti; AUTORI: Ján Stempel, Jan Jakub Tesař; INGINER DE PROIECT: Aleš Herold; STRUCTURĂ: Valbek; ARHITECTURĂ PEISAGERĂ: Vladimír Sitta; FINALIZAT: 2024







