TEXT: arh. Mădălin Ghigeanu
Studiul de față își propune să clarifice controversa privind paternitatea arhitecturală a clădirii ce adăpostește astăzi Teatrul Dramatic „Fani Tardini” din Galați, edificiu cu o impresionantă prestanță, un important exponent al arhitecturii de factură clasicistă, proiectat în perioada interbelică pentru Fundația Culturală „V.A. Urechia”. Deși, de-a lungul deceniilor, proiectul a fost eronat atribuit altor arhitecți, cercetarea de arhivă confirmă fără echivoc că autorul de drept este arhitectul Ion Giurgea (18 aprilie 1903, Tecuci – 13 iunie 1959, București), personalitate formată intelectual în Galați (absolvent al liceului V. Alecsandri în 1922) și activă profesional în București (absolvent al Școlii de Arhitectură în 1930).
De-a lungul deceniilor, paternitatea proiectului arhitectural al impozantei clădiri neoclasice care găzduiește astăzi Teatrul Dramatic „Fani Tardini” din Galați – edificiu ce a servit, inițial, ca sediu al Fundației Culturale „V.A. Urechia” – a fost atribuită, în mod eronat, fie arhitectului I. D. Enescu, fie unui presupus arhitect italian[1], rămas într-o obscuritate suspectă. Această confuzie recurentă, perpetuată în diverse texte, a produs o serie de interpretări contradictorii, unele devenite de-a dreptul anecdotice. Pe pagina oficiala a Teatrului „Fani Tardini”, numele lui Ion Giurgea nu este prezent la rubrica „Istoric”.[2]
Cu toate acestea, discuțiile purtate de autorul prezentului studiu cu istoricul Ion Cioroiu – personalitate marcantă a vieții culturale gălățene – relevă faptul că, în mediul academic al orașului, adevărata identitate a autorului proiectului este cunoscută și recunoscută.
Arhitectul Ion Giurgea – autorul de drept al edificiului
Autorul de drept al proiectului de concurs, depus sub motto-ul „Grifonul”, precum și al execuției propriu-zise, este arhitectul Ion Giurgea. Eroarea de atribuire este cu atât mai regretabilă cu cât Ion Giurgea a fost un fiu distins al orașului Galați, absolvent al prestigiosului Liceu „Vasile Alecsandri”. Activitatea sa arhitecturală în oraș este substanțială, acesta lăsând în urmă opt lucrări semnificative, datate între 1933 și 1944:
- Imobilul dr. Gr. Bazgan, Str. Domnească, 1933
- Imobilul Constantin Nazarie, 1934
- Imobilul Maria Dumitriu, 1934
- Imobilul av. Gh. Gheorghiu, 1934
- Imobilul dr. D. Lewensohn, 1934
- Fundația Culturală „V.A. Urechia”, 1933–1944
- Liceul de fete „Mihail Kogălniceanu” (proiect nerealizat), Str. Domnească nr. 61, 1936
- Imobilul ing. D. Codreanu, Str. Domnească, 1936
- Blocul Comunității Elene, Str. Domnească nr. 29, 1942
Contribuția sa definește o etapă importantă în evoluția arhitecturii interbelice a Galațiului, marcând varietatea și versatilitatea stilistică a epocii, printr-un coerent și viguros discurs între modernismul de inspirație Art Deco (îndeosebi în programul vilelor private), manifestările la modă în spirit mediteraneean (caracteristic lui Giurgea) și sobrietatea volumetrică și decorativismul specific spiritului academic clasicist, peremergător anilor ’30.
Contextul fondării instituției și rolul actriței Fani Tardini-Vlădicescu
Începuturile vieții teatrale gălățene sunt indisolubil legate de numele actriței Fani Tardini, personalitate care a influențat dezvoltarea artei dramatice nu doar în Moldova, ci și în Transilvania și Bucovina. Magnetismul turneelor sale este ilustrat de un episod semnificativ: tânărul Mihai Eminescu, atras de trupa Fani Tardini-Vlădicescu, și-a orientat peregrinările culturale în proximitatea spectacolelor sale. În cuvintele lui Alexandru Odobescu, „Teatrul lui Fani Tardini îl deslușește pe Eminescu definitiv asupra lui însuși”.
În anul 1866, celebra actriță adresează Primăriei Galați o cerere prin care solicită susținerea financiară necesară înființării unui teatru „demn de înalta și frumoasa sa menire”.
Geneza Palatului Cultural „V.A. Urechia”
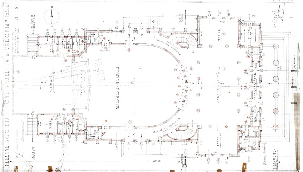
Demersurile pentru edificarea Palatului Cultural „V.A. Urechia” s-au concretizat abia în 1924, după respingerea proiectului arhitectului Coțifide, considerat prea costisitor. Ulterior, a fost organizat un concurs arhitectural, câștigat de arhitectul Ion Giurgea din București. Între 1933 și 1944, acesta a elaborat trei faze distincte ale proiectului, documentate în arhiva sa personală prin trei suluri consistente, însumând 149 de planșe desenate:
- Anteproiect Biblioteca V.A. Urechia – Proiect nr. 5, 1933, cuprinzând 6 planșe de perspectivă, purtând moto-ul „Grifonul”.
- Execuția lucrărilor la Societatea Culturală V.A. Urechia – Proiect nr. 7b, 1934, cu 114 planșe.
- Lucrări neterminate la Societatea Culturală V.A. Urechia – Proiect nr. 7, 1934, conținând 29 planșe.
Planșele reprezentând fațadele principală, laterală și posterioară se păstrează astăzi în colecțiile speciale ale Bibliotecii „V.A. Urechia” din Galați. Pe frontonul fațadei principale, inscripția „Biblioteca V.A. Urechia” este încă vizibilă, mărturisind fidelitatea construcției față de intenția arhitectului.
Construcția, supravegheată direct de Ion Giurgea, a fost realizată de antrepriza inginerului Margulius, pe terenul din Strada Domnească nr. 59, proprietate a Societății Culturale „V.A. Urechia”. Consiliul Comunal a aprobat la 18 august 1933 eliberarea autorizației de construcție, cu scutirea de taxe municipale, după obținerea avizelor proprietarilor de cinematografe și săli de spectacole.
În 1934, Societatea Culturală a lansat un nou apel public pentru sprijinirea finalizării edificiului. Deși lucrările de finisaj nu erau încă încheiate, Biblioteca „V.A. Urechia” s-a mutat în noul sediu în 1940. În 1946, clădirea a fost rechiziționată de garnizoana sovietică și transformată temporar în Casă a ofițerilor, cu aprobarea Ministerului de Interne.[3]
De la Palatul Cultural la Teatrul Dramatic „Fani Tardini”
Activitatea teatrală propriu-zisă în acest spațiu a început abia în 1955, primul spectacol al noului teatru fiind „Preludiul”, susținut în sala Orchestrei Simfonice de Stat. Prima reprezentație în sala actuală a avut loc la 30 decembrie 1956, cu piesa „D’ale carnavalului”.
În 1973, instituția a primit denumirea de Teatrul Dramatic Galați, iar din anul 2000 poartă numele Teatrul Dramatic „Fani Tardini” Galați, în cinstea personalității care a deschis drumul teatrului modern în zonă.
Având în vedere valoarea arhitecturală și simbolică a operei sale, reconsiderarea publică a arhitectului Ion Giurgea de către autoritățile locale din Galați se impune ca un gest de dreptate culturală. O stradă, o piață sau o placă comemorativă purtând numele său ar constitui un omagiu firesc adus unuia dintre cei mai importanți arhitecți ai României interbelice și ar contribui la corectarea confuziilor persistente privind paternitatea acestei remarcabile lucrări.
Note
Arhivele Municipiului Galați, Dosarul Fundației V.A. Urechia, 1933–1944.
Interviu cu istoricul Ion Cioroiu, Galați, 2021.
Arhiva personală Ion Giurgea, fond aparținând familiei arhitectului, ce va face parte din următorul volum omagial dedicat arhitectului Ion Giurgea.
Gh. Bulgăr, Eminescu și contemporanii săi, București: Editura pentru Literatură, 1965, p. 142.
Alexandru Odobescu, Scrieri alese, București: Minerva, 1973, p. 87.
Serviciul Tehnic al Primăriei Galați, Proces-verbal al comisiei de analiză, 1924.
Arhivele Naționale, Filiala Galați, Fond Primăria Galați, Dosar 1933, nr. 475.
Raportul Ministerului de Interne, Direcția Culturală, 1946.
Bibliografie
Bulgăr, Gheorghe. Eminescu și contemporanii săi. București: Editura pentru Literatură, 1965.
Odobescu, Alexandru. Scrieri alese. București: Editura Minerva, 1973.
Arhivele Naționale, Filiala Galați. Fond Primăria Galați, Dosare 1924–1946.
Interviu cu Ion Cioroiu, istoric, Galați, 2021.
[1] https://conac.sonoro.org/locatii/teatrul-dramatic-fani-tardini/
[2] https://fanitardini.ro/istoric/
[3] Galații de altădată, Paltul V.A.Urechia ( azi Teatrul Fani Tardini), unde eronat este menționat arh. I.D. Enescu ca autor al proiectului
Anteproiect – Fundația culturală V.A Urechia, astăzi Teatrul Dramatic „Fani Tardini” Galați, 1933
