ARHITECTURĂ: Joan Josep Fortuny Giró / Alventosa Morell Arquitectes TEXT: Anca Rotar FOTO: José Hevia

Situat în localitatea Inca din Insulele Baleare, acest imobil de locuințe sociale, ocupând un teren de formă rectangulară, vizează două aspecte fundamentale: inserarea corectă a volumelor în mediul urban și fizic, precum și oferirea unei soluții care sintetizează cerințele funcționale ale programului de locuire. Un alt aspect important al proiectului este folosirea tehnicilor sustenabile pentru asigurarea unui nivel optim de confort termic, cu costuri reduse.

Imobilul cu trei niveluri supraterane conține 54 de apartamente, 18 pe fiecare nivel, și mai multe spații comune. În conformitate cu reglementările locale, spațiile de parcare sunt amplasate în subteran. Clădirea este orientată pe axa nord-sud și constă în două volume individualizate, a căror poziționare generează un spațiu public.  

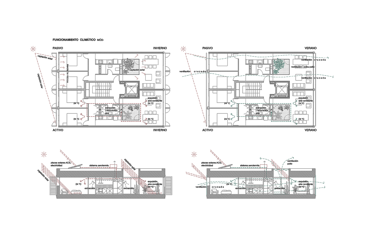
La nivel de structură, construcția folosește un sistem de plăci de beton cu grosimea de 35 cm și piloni metalici. Fundația este una adâncă, datorită solului argilos din zonă, iar parcarea subterană are pereți de reținere din beton. Fațadele sunt placate cu un strat dublu de plăci ceramice cu izolație interioară din bumbac reciclat. Exteriorul este izolat termic printr-o combinație de praf de plută și var grosier, finisată cu un strat de var fin cu pigmenți naturali. Tâmplăria exterioară este din aluminiu cu rupere termică, iar parasolarele sunt din lemn de zadă, de proveniență sustenabilă. Acoperișurile sunt plate și sunt rezolvate cu ajutorul unui sistem inversat de izolație și impermeabilizare și pietriș reciclat. Ele sunt dotate cu panouri fotovoltaice, echipamentele aerotermale și de recuperare a apei de ploaie, și conducte de ventilație.

text1_17b

Unitățile de locuire sunt organizate în jurul unui nucleu ce definește două zone cu dublă orientare. Astfel, în cadrul acestora, amplasamentul zonelor de zi și al celor de noapte se schimbă în funcție de nivel și de orientarea față de soare, obținându-se o tipologie variată de apartamente pe nivel, fiecare cu vedere către exterior și un grad optim de intimitate. Apartamentele de la parter au acces la grădini private, iar cele de la etajele 1 și 2 sunt dotate cu terase.

text2_18c

Interioarele sunt placate cu ceramică de proveniență locală. Confortul termic este asigurat printr-un sistem aerotermal cu recuperare de căldură și consum minim de energie. Spațiile comune și de circulație de la parter au pardoseli din beton, iar grădinile private și spațiul deschis generat de cele două volume principale sunt acoperite cu pietriș, pentru a facilita absorbția apei de ploaie. Mai multe exemplare aparținând genului jacaranda au fost plantate în spațiul comun, pentru a oferi, în viitor, protecție suplimentară față de lumina puternică a soarelui și a crea o atmosferă plăcută, favorabilă coeziunii sociale.

PROIECT: Imobil locuințe sociale cu 54 apartamente și parcare; AMPLASAMENT: Inca, Insulele Baleare; SUPRAFAȚA TERENULUI: 3 266 mp; SUPRAFAȚA CONSTRUITĂ DESFĂȘURATĂ: 4 633,60 mp suprateran +  1 746,90 mp subteran; ARHITECTURĂ: Joan Josep Fortuny Giró / Alventosa Morell Arquitectes; ȘEFI DE PROIECT: Joan Josep Fortuny Giró, Xavier Morell, Marc Alventosa; CLIENT: IBAVI; Institutul pentru locuințe din Insulele Baleare; FINALIZAT: 2022