ARHITECTURĂ: WOJR TEXT: Anca Rotar FOTO: Nick Dearden
Situată într-o zonă de dealuri, la poalele munților Santa Cruz, în apropiere de Golful San Francisco, această casă se ridică pe vechea fundație a unei vile în stilul Mission (inspirat de arhitectura colonială spaniolă și popular în Statele Unite la sfîrșitul secolului 19 și începutul secolului 20), a cărei construcție a fost abandonată. Pornind de la sintetizarea particularităților existentului, noul proiect își stabilește propriile principii ordonatoare, ritmuri și structuri, în acord cu contextul natural, devenind atât parte a peisajului, cât și omagiu adus acestuia.
Deși silueta încoronată/”încornorată” a casei ar putea trimite la alte interpretări, ideea cornului ca instrument muzical a constituit punctul de plecare pentru conceptul arhitectural. Astfel, locuința a fost proiectată ca un ansamblu de instrumente muzicale armonizate, ce rezonează cu ciclurile de transformare ale naturii din jur, cu schimbările din aer de pe parcursul zilei și cu succesiunea anotimpurilor.
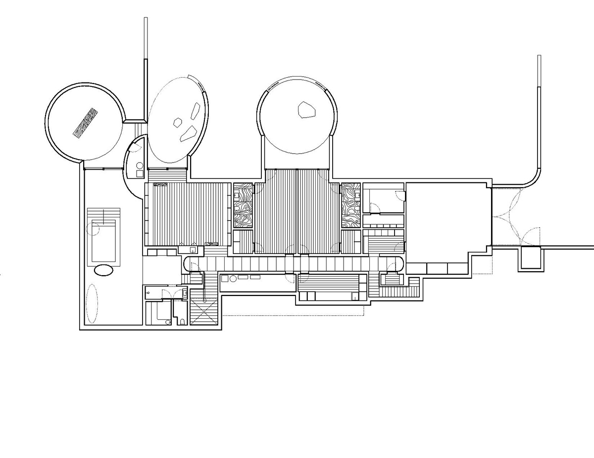
Dincolo de reabilitarea fundației degradate în timp, un prim act decisiv a fost de a reconstitui topografia inițială a pantei dealului, astfel încât, acum, privind spre fațada principală, imaginea este cea a unei case cu un singur nivel, cel inferior apărând ca îngropat sub nivelul solului. Acest gest a dus la generarea a două zone cu totul diferite.
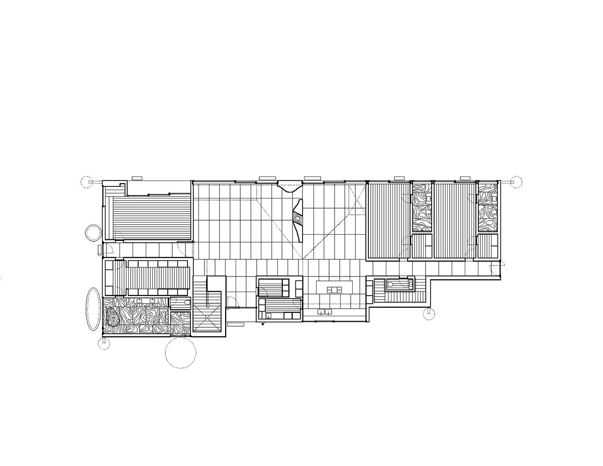
Nivelul superior conține zona de zi, un amplu open space format din living/lounge, bucătărie și dining. Elementul definitoriu al acestui spațiu este plafonul, constând într-un sistem de bolți eliptice inversate și prevăzut cu luminatoare și lucarne, fiecare cu propria orientare. În centrul spațiului, un șemineu sculptural de marmură separă zona de lounge de cea a mesei de dining, prevăzut cu o deschidere rotundă care permite o comunicare vizuală discretă între cele două. Acest tip de deschidere devine, de altfel, unul dintre motivele proiectului, fiind prezentă și în alte zone ale casei, precum cea a dormitorului principal, sau în plafonul piscinei.
În contrast cu deschiderea de la etaj, parterul este un spațiu fragmentat, cu mai multe camere, unele dintre ele conectate cu exteriorul prin intermediul unor curți scufundate, spații-tampon între locuință și peisajul înconjurător. Remarcabilă, aici, este zona de piscină, un spațiu asemenea unei peșteri, susținut de o coloană ovoidală ce amintește de un menhir preistoric. Atmosfera meditativă se menține în cadrul curții adiacente piscinei, cu pietriș și o bancă monolitică, evocând aspectul grădinilor de piatră japoneze.
Conexiunea cu natura este întărită printr-un gest de „re-sălbăticire” a terenului din jurul locuinței, plantat cu specii endemice – ierburi, arbuști, plante perene și arbori de stejar. Asemenea casei, peisajul este compus din straturi, iar schimbările aduse de trecerea anotimpurilor devin o parte importantă a locuirii, însuflețind ansamblul de instrumente ce dă numele proiectului.
PROIECT: House of Horns; AMPLASAMENT: Los Altos Hills, California; SUPRAFAȚA: aprox. 790 mp; ARHITECTURĂ: WOJR; ARHITECȚI PRINCIPALI: William O’Brien Jr., John David Todd; ECHIPA: Adam Murfield, Justin Gallagher, James Murray, Lindsey Krug, Marianna Gonzalez; STRUCTURĂ: FWCSE; INSTALAȚII HVAC & SUSTENABILITATE: Monterey Energy Group; INSTALAȚII ELECTRICE: Nutek Engineering; INGINERIE CIVILĂ: Lea & Braze Engineering; STUDIU GEOTEHNIC: ROMIG Engineering; SISTEM DE IRIGARE: Russell D. Mitchell & Associates; FINALIZAT: 2024








