ARHITECTURĂ DE INTERIOR: Phenomena Laboratory TEXT: Iuliana Dumitru FOTO: Vlad Pătru
Preocupați în mod deosebit de transformarea materiei sub acțiunea timpului și de tema continuității, arhitecții de la Phenomena Laboratory au găsit în proiectul – poetic intitulat –Tomorrow’s story of a historical act premisele unei intense desfășurări în timp și spațiu. Astfel, interiorul reimaginat al unei vile de la 1915, din Sinaia, semnate de arh. Paul Smărăndescu, își trăiește și își înțelege deja viitorul.
Cu o abordare în care arhitectura e considerată un martor sensibil al istoriei, dar și al narațiunii personale, intime a locuirii, proiectul Phenomena Laboratory își propune să translateze trecutul în prezent, iar prezentul să-l modeleze spre a-și deschide și actualiza, în timp, întregul potențial. Perspectiva unei noi ordini se articulează pe farmecul limbajului neoromânesc moștenit și bine păstrat la nivelul detaliilor, creând o poveste continuă, vie, luminoasă, ce evită atât ancorarea în nostalgie, cât și proiecția ostentativă a viitorului. Aici amprenta de design hipercontemporan – atât de propriu gândirii creative a echipei Phenomena – nu se produce prin dislocare, ci prin palpabil, prin contraste armonice, prin forme și fragmente ce se întrepătrund și-și răspund reciproc.
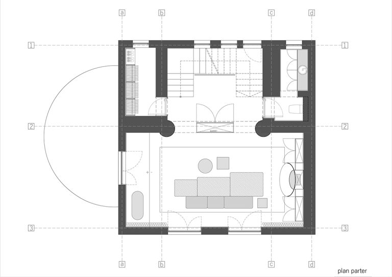
Astfel, semicercul ferestrelor originale devine laitmotivul unei noi și unitare geometrii, care se desfășoară ritmat, limpede în întreaga amenajare și pe care o observăm, de pildă, în siluetele pieselor de mobilier sau în designul tavanului din living. Spațiul capătă deseori efecte (sceno)grafice, de profunzime ori de schimbare a percepției proporționalității datorită interacțiunii dintre umbră și lumină, precum și unor elemente cu design aparte, realizate special pentru acest interior, cum ar fi structurile din sticlă lucioasă, de culoare neagră, ce dau la iveală reflexii și transparențe neașteptate. Televizorul este încorporat într-unul dintre aceste obiecte speciale, ce are ca pereche panoul șemineului, unde remarcăm o serie de inserții ludice, metalic-aurii – e vorba de un pattern devenit semnătură a biroului.
Întrucât privilegierea esteticului pare evidentă, uneori chiar prin gesturi excentrice, trebuie precizat că proiectul îndeplinește – eficient și discret – toate cerințele funcționalității, așa încât spațiile de depozitare sunt ingenios ascunse în spatele acestor generoase suprafețe, al căror revers e la fel de generos. Exemplu sunt barul și bufetul pentru veselă, încastrate complet invizibil, de-o parte și de alta a șemineului, în riflajul ce se întinde pe întreg peretele.
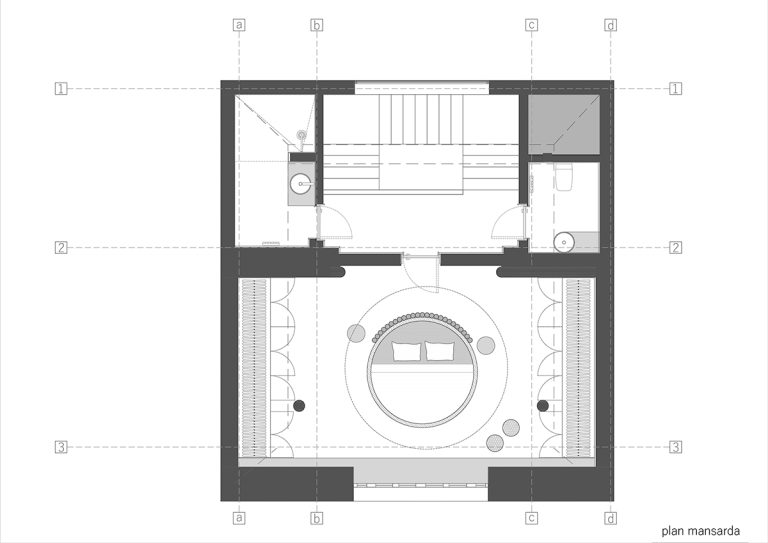
La starea de armonie și eleganță primitoare contribuie, desigur, și spectrul cromatic în care se înscrie ambientul: tonuri pământii, nuanțe calde și neutre, degradeuri subtile. Atmosfera devine încă și mai caldă și mai liniștită odată ce pătrundem în zona dedicată dormitoarelor; într-unul dintre ele punctul de relief îl reprezintă patul rotund, cu un design distinctiv și un spătar de asemenea inedit, ce reia motivul formelor curbe, atât de inspirat când vine vorba de relaxare, refugiu și confort.
Am lăsat la final cealaltă piesă semnificativă a casei: de o sculpturalitate simplă, scara interioară a fost supusă unui proces meticulos de restaurare, prin care au fost integrate cu grijă panouri decorative din sticlă cu filtru bronze, pentru a sugera, o dată-n plus, legătura dintre registrul vizual istoric și cel de acum.
PROIECT: Tomorrow’s story of a historical act – amenajare vilă; REGIM DE ÎNĂLȚIME: D+P+2E+M; AMPLASAMENT: Sinaia, jud. Prahova; SUPRAFAȚA CONSTRUITĂ DESFĂȘURATĂ: 220 mp; DESIGN INTERIOR: Phenomena Laboratory; INSTALAȚII: Mockup Design; FINALIZAT: 2022
Articol publicat în igloo #216 / Lina Ghotmeh – Architecture / octombrie – noiembrie 2023








