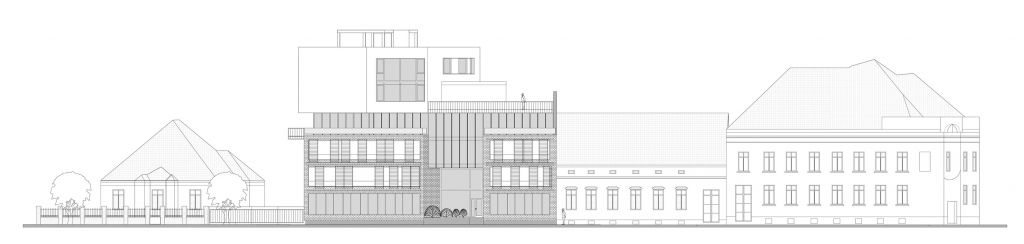
În cartierul Elisabetin al Timișoarei, fronturile continue ale străzii Virgil Onițiu și benzile late de iarbă cu aliniamentele de arbori dintre trotuar și carosabil întrețin atmosfera de început de secol XX, cu volume construite de dimensiuni mici si medii, predominant pline, în care variază doar culorile și texturile.
Imobilul de locuințe cu parter și cinci etaje respectă regulile de gabarit și cornișă ale zonei prin deconstruirea volumului principal în două registre verticale – baza masivă P+2, finisată cu cărămidă aparentă tip Klinker, respectiv nivelurile 3-5, albe, retrase și fațetate asemenea unei foi pliate în tehnica origami, care dau și numele proiectului.
„Modul de integrare în context a generat o casă în două registre contrastante: primul aparține străzii, cu volume așezate în aliniament și dimensionate la scara caselor învecinate care generează frontul continuu, cu materialitatea fațadelor dată de textura vibrantă a cărămizii, iar al doilea registru este reprezentat de un volum alb, detașat, care aparține nivelului acoperișurilor” – Studio Arca.
Baza este la rândul ei spartă în două volume mai mici, pentru a nu oferi străzii un front prea lung și incompatibil cu scara caselor învecinate. Accesul principal cu înălțime dublă se face printre aceste două corpuri, pe lângă o jardinieră cu marginile de cărămidă, pe sub volumul de origami care unește cele două corpuri. Soclul retras permite ventilarea subsolului prin grilele cu lamele încorporate discret în înălțimea acestuia. Elementele metalice și suprafețele tencuite de culoarea grafitului completează textura industrială a cărămizii și fac legătura între cele două registre verticale.
Libertatea creativă se exprimă în arhitectura clădirii prin rezolvarea atipică a apartamentelor de la diferitele niveluri – apartamente de trei și patru camere la etajele 1-2 și apartamente duplex și triplex la etajele 3-5, cu terase și balcoane care se deschid spre acoperișurile centrului vechi al Timișoarei. Jocul cursivelor și al balcoanelor-sertar cu parapete din bare metalice anunță încă de la exterior varietatea apartamentelor.

În timp ce față de aliniament etajele 3-5 sunt retrase, spre lateralul parcelei unde distanța față de vecini și plantațiile sunt mai generoase, acestea ies în consolă sub forma unei mari loggii albe, ca un ochean îndreptat asupra orașului. În schimb, loggiile orientate spre stradă permit retragerea convenabilă a spațiilor principale și intimizarea acestora față de frontul opus al străduței înguste. Loggiile și fantele înguste sunt singurele tipuri de goluri din volumul de cărămidă și au detalii de colț și de buiandrug atent rezolvate estetic din perspectiva logicii structurale.

Învelitorile pavate cu klinker sau deck din lemn sunt aproape în totalitate circulabile, oferind apartamentelor terase ample și deschise spre oraș. Împrejmuirea de cărămidă a terenului a fost curățată și menținută ca sursă de inspirație pentru volumetria actuală și ca o punte peste timp între arhitectura valoroasă a secolului trecut și cea de azi.
„Fațada din cărămidă aparentă este unul dintre elementele de unicitate și conferă acestui proiect un statut impozant, dar și prietenos în același timp. Origami este un proiect rezidențial boutique inedit, frumos și ambițios, în același timp. Mai ales că zona în care am construit este una istorică, impunând cerințe specifice”, Raul Petrache – Technical Director Global Vision.
***
Proiect: Origami Residence; Program: locuințe colective și servicii la parter în regim de înălțime S+P+3E+2ER; Adresa: str. Virgil Onițiu nr. 13-15, Timișoara; Suprafața Terenului: 1 270 mp; Suprafața Construită Desfășurată: 3 762 mp Beneficiar: Global Invest Services Two; Autori proiect arhitectură: Studio Arca; Structură: Path’s Rout; Instalații: Bitea Antrepriza; Arhitectură peisajeră: Studio Arca
Proiect prezentat în igloo #194_Efemer-Permanent





