Cu un pronunţat aspect geometric şi o doză de ludic, această casă negociază cu abilitate şi asertivitate un teren îngust şi o serie de constrângeri urbanistice severe, constituindu-se într-o prezenţă arhitecturală compactă şi, în acelaşi timp, cu multă personalitate.
Pornind de la obiectul de dimensiuni maxime în contextul lotului şi regulamentului în vigoare – un paralelipiped de 16m x 8,85m x 6,25m –, arhitecţii au realizat o serie de incizii, ce ajută la păstrarea intimităţii în raport cu vecinii, generează un spaţiu de acces ce poate fi folosit şi ca terasă şi, nu în ultimul rând, asigură o bună iluminare a interiorului.


Sustenabilitatea a constituit o prioritate importantă, pusă în operă prin materiale ecologice și izolație termică de înaltă eficiență. Astfel, dincolo de aspectul ludic, ferestrele dispuse neregulat aduc în încăperi o cantitate maximă de lumiă naturală, de asemenea diminuând efectul de seră. Mai mult, locuinţa este dotată cu panouri solare – amplasate pe terasa de pe acoperiş – precum şi cu panouri fotovoltaice şi o pompă geotermală.

Atât exteriorul cât şi interiorul urmează o linie simplă, cu suprafețe contrastante și o gamă restrânsă de obiecte. Elementele tehnice complexe sunt ascunse, pentru a permite o mai bună înțelegere a relației înăuntru-afară și a obiectelor importante pentru proprietari.

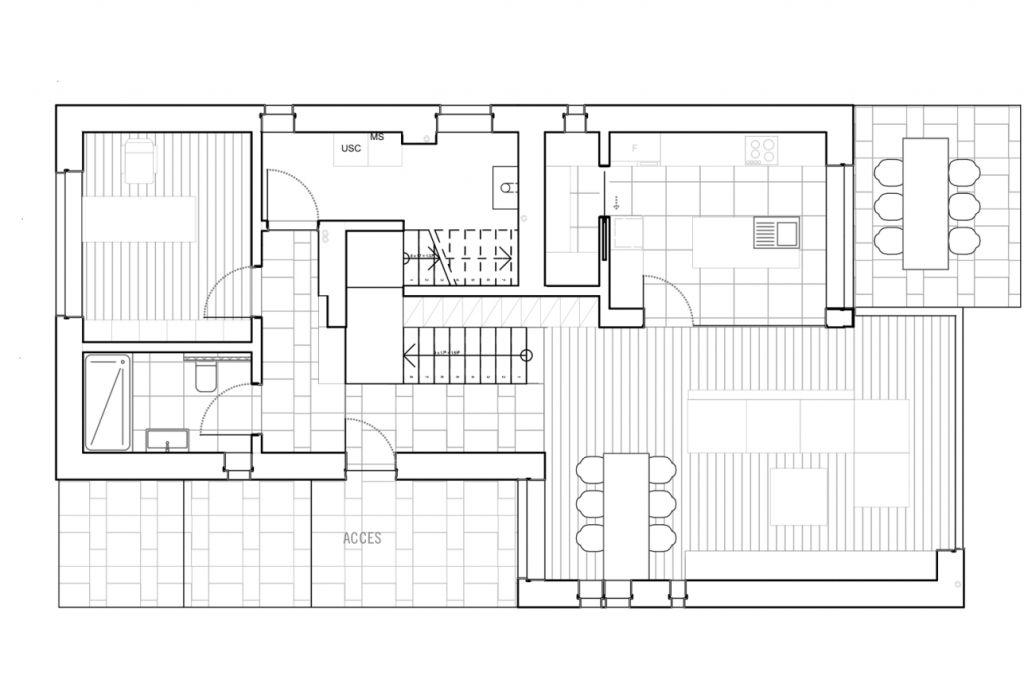
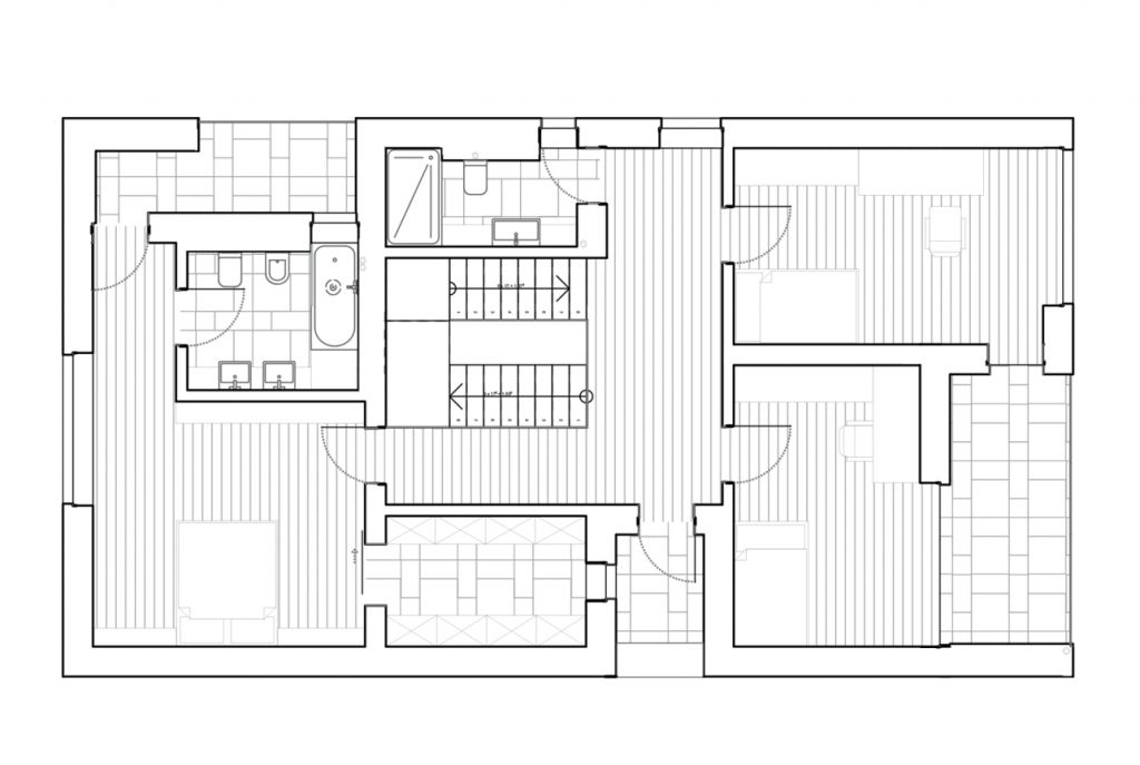
Configurația interioară a camerelor și relația dintre acestea urmărește să răspundă nevoilor unei familii tinere cu 3 membri. Zona de zi este situată la parter şi conţine livingul, sufrageria, bucătăria, o baie mică şi biroul, in timp ce zona de noapte este formată din trei dormitoare, cu băile adiacente. Cele trei terase de la etaj au scopuri distincte – una comună, una tehnică şi ultima privată.

Scara ce leagă cele două etaje devine un obiect complet, care încorporează o bibliotecă și un spațiu verde, creând, în combinaţie cu luminatorul, o zonă cu o prezență puternică.

PROIECT: iHouse; AMPLASAMENT: Timişoara; SUPRAFAŢA TERENULUI: 562 mp; SUPRAFAŢA CONSTRUITĂ DESFĂŞURATĂ: 239,21 mp; ARHITECTURĂ ŞI DESIGN INTERIOR: ZEN Architecture, arh. Zeno Ardelean; STRUCTURA: ing. Cornel Farcaş; INSTALAŢII ELECTRICE: ing. Lucian Toma Volintiru; INSTALAŢII SANITARE: ing. Gelu Aristide; ARHITECTURĂ PEISAGISTICĂ: arh. Zeno Ardelean, arh. peisag. Maria Ianko; FINALIZAT: 2020
