ARHITECTURĂ: PB/STUDIO, Studiomania, IPA Ipreferanalog TEXT: Anca Rotar FOTO: Nate Cook, Jakub Piórkowski, Adrian Mania
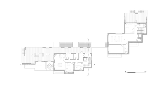
Situat în apropierea unei intersecții majore dintr-un cartier rezidențial dens populat din orașul Gdynia, pe țărmul Mării Baltice, ansamblul Widna Haven, format dintr-un centru comunitar și o bibliotecă, articulate în jurul unei curți interioare verzi, apare ca un nou punct focal pentru comunitatea locală. Fațadele ritmate de lemn protejează ansamblul de zgomotul urban și creează un spațiu liniștit pentru localnicii de toate vârstele, iar facilități precum accesibilitate deplină, terase pe acoperiș, mai multe variante de ocupare a spațiului și prezența relaxantă a unei fântâni contribuie la atmosfera primitoare și inclusivă.
Ansamblul a fost proiectat în așa fel încât să constituie un buffer acustic, închis față de străzile aglomerate și deschis spre curtea interioară. Volumele răspund particularităților sitului și se aliniază cu linia clădirilor existente, cu retrageri de-a lungul fațadei, care contribuie la izolarea fonică. Divizarea clară între cele două funcțiuni – centru comunitar și bibliotecă – deschide o cale de comunicare vizuală cu împrejurimile, sporind lizibilitatea și aliniind structura cu traseele pietonale existente.
Fațadele orientate către stradă sunt acoperite cu lamele verticale de lemn, a căror textură îmbunătățește eficiența ecranului acustic și servește drept suport pentru plantele cățărătoare. În schimb, fațadele dinspre curte sunt finisate într-o nuanță caldă de alb, formând o compoziție arhitecturală și materială coerentă în combinație cu mobilierul și vegetația din exterior.
O piațetă pavată cu terazzo, gândită ca o continuare naturală a interiorului, oferă locuri de șezut terasate, într-o dispunere tip amfiteatru, pentru apermite găzduirea de evenimente în aer liber, ateliere sau proiecții, încurajând, astfel, implicarea comunității. În centrul pieței a fost prevăzută o fântână, al cărei sunet maschează și mai mult zgomotul străzilor, sporind confortul spațiului. Curtea este plantată cu iarbă ornamentală și pomi fructiferi, în timp ce limitele proprietății sunt protejate de un rând de copaci, dublați de vegetație cățărătoare.
Acoperișurile ambelor clădiri au fost amenajate ca terase deschise publicului, accesibile atât din interior, cât și din piață. Întregul complex urmează un sistem de orientare ușor lizibil și coerent și îndeplinește cele mai înalte standarde de accesibilitate. O atenție deosebită a fost acordată nevoilor rezidenților mai în vârstă, pentru ei fiind prevăzute zone de relaxare însorite și mese de șah integrate în spațiul verde.
PROIECT: Widna Haven – Centru Comunitar + Bibliotecă; AMPLASAMENT: Gdynia, Polonia; SUPRAFAȚA CONSTRUITĂ DESFĂȘURATĂ: 850 mp; ARHITECTURĂ: PB/STUDIO, Studiomania, IPA Ipreferanalog; ARHITECȚI PRINCIPALI: Jakub Piórkowski, Hanna Bialic, Adrian Mania; FINALIZAT: 2023





