ARHITECTURĂ: Răzvan Bârsan + Partners TEXT: Iuliana Dumitru FOTO: Sabin Prodan

Transformări și actualizări în limbaj contemporan ale clădirilor instituționale din perioada comunistă, păstrându-le totuși referențialitatea istorică, vedem în România destul de rar. În acest context, proiectul din strada Tudor Arghezi 21 semnat de echipa de arhitecți Răzvan Bârsan + Partners reprezintă un punct de relief pe harta Bucureștiului și un bun exemplu de armonizare a funcțiilor și limbajelor unei clădiri ce vine cu o istorie a sa.

Demersul întreprins de echipa Răzvan Bârsan + Partners a constat în consolidarea, recompartimentarea, refațadarea și conversia unei clădiri existente, construită în perioada 1963-1966 după un proiect realizat de IPCT București (Institutul de Proiectare pentru Construcții Tipizate), ce urma să găzduiască aceeași instituție. Destinația inițială a fost de birouri de proiectare, spații de arhivă, bibliotecă și spații anexe acestora, iar de-a lungul timpului clădirea și-a păstrat funcția principală, aceea de spațiu de birouri pentru diverse activități. Astăzi, ea fost transformată și adaptată cerințelor și exigențelor profesionale contemporane, evocând însă ceva din încărcătura timpului său.

Clădirea de șase etaje se distinge printr-un unic volum cu aspect monolitic, prin geometria fermă și simplă, prin uniformitate și echilibru, prin regularitatea ce se regăsește și în structura repetitiv-ritmată a fațadei. Închiderile ei exterioare realizate din panouri prefabricate din beton îi confereau clădirii o imagine de factură brutalistă, asupra căreia arhitecții au intervenit atât din rațiuni funcționale, cât și estetice, placând aceste panouri cu cărămidă, pentru a tempera astfel o anume severitate și a integra mai blând clădirea în peisajul urban. Însă pentru un efect de contrast și dialog cromatic, la parter și demisol finisajul exterior este constituit dintr-o tencuială specială cu aspect de beton aparent, ce păstrează sugestia industrială a clădirii. Noaptea, iluminatul exterior accentuează jocul de retrageri și proeminențe ale fațadei.

default

Dincolo însă de ceea ce se vede cu ochiul liber, arhitecții ne-au dezvăluit câte ceva și din anvergura inginerească și arhitecturală a intervențiilor lor, pentru a aduce clădirea la cele mai înalte standarde contemporane: s-a realizat consolidarea structurală pentru încadrarea acesteia în normele actuale; a fost integrat un sistem performant de HVAC pentru climatizarea eficientă și asigurarea confortului utilizatorilor; în ceea ce privește anvelopanta, panourile prefabricate existente au fost termoizolate la interior și placate la exterior cu klinker de cărămidă, iar ferestrele au fost înlocuite cu unele de eficiență energetică sporită.

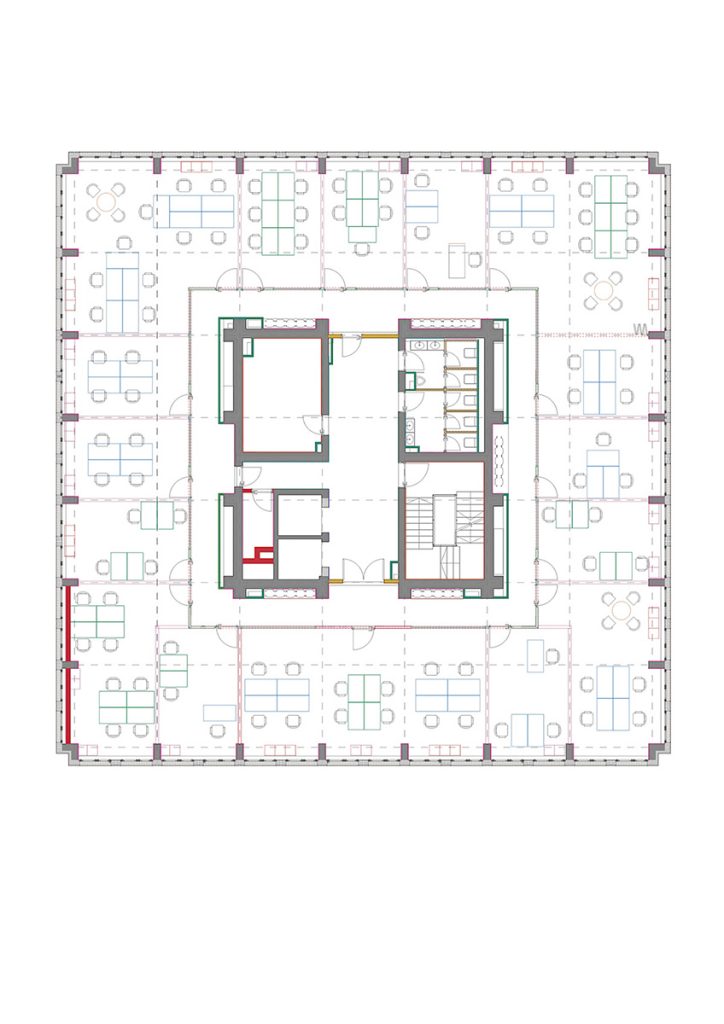
Configurația planimetrică a clădirii este una dublu simetrică, respectiv un pătrat cu latura de 26,8 m, cu travee egale, nod central de asemenea pătrat și fațade echivalente. Sistemul structural este de tip dual, alcătuit dintr-un nucleu central rigid și stâlpi dispuși pe contur. În ceea ce privește reorganizarea spațiului interior, s-a urmărit același principiu al eficientizării, al fluidizării
și al adecvării la noile coordonate ale vieții de birou, cu toată diversitatea ei: s-au trasat zone ample de tip open-space, compartimentări din sticlă, spații de birouri de diferite dimensiuni și săli de conferințe. Nodul central adăpostește funcțiunile complementare, respectiv circulațiile verticale, grupurile sanitare și chicinetele.

 

Prin toate aceste lucrări profunde de transformare și conversie, imobilul H Tudor Arghezi își recapătă vitalitatea și relevanța în context, întâmpinându-și utilizatorii cu un ambient perfect adaptat nevoilor profesionale și sociale de azi și de mâine.

PROIECT: Imobilul de birouri H Tudor Arghezi 21; AMPLASAMENT: Str. Tudor Arghezi 21, București; REGIM DE ÎNĂLȚIME: S+D+P+6E+E tehnic; SUPRAFAȚĂ TEREN: 1 507 mp; SUPRAFAȚĂ CONSTRUITĂ DESFĂȘURATĂ: 6 975,27 mp; DEZVOLTATOR: Hagag Development Europe; ARHITECTURĂ ȘI AMENAJARE INTERIOARĂ: Răzvan Bârsan + Partners, Elena Sarti-Petre (arh. coordonator Hagag); STRUCTURĂ: Ingineri Asociați Construct; INSTALAȚII: Capital Grup Instal; ARHITECTURĂ PEISAJERĂ: Răzvan Bârsan + Partners; FINALIZAT: 2022

 

Articol publicat în igloo #213 / Material / aprilie-mai 2023