ARHITECTURĂ DE INTERIOR: Apio Studio TEXT: Manuela Zipişi FOTO: Sabin Prodan
„Designul poate fi un element foarte important și atractiv chiar și pentru un club”, spune arh. Tudor Gheorghe, iar Platforma Wolff DJ Bar, a cărui inspirată amenajare de interior o semnează, îi susține afirmația. Bonus: vorbim și despre conversia unui fost spațiu industrial bucureștean, iar dacă nu ați ghicit încă unde se află, descoperiți în cele ce urmează.
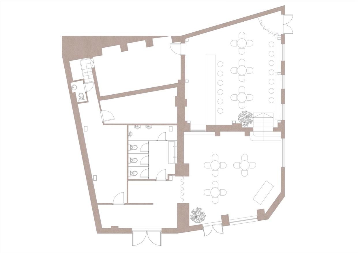
În contextul reluării vibrației vieții nocturne bucureștene, salutăm apariția DJ Bar-ului Platforma Wolff pe care arh. Tudor Gheorghe (Apio Studio) l-a amenajat în țesutul cu trecut industrial al Halelor Carol. De altfel, după cum ne-a mărturisit chiar Tudor, „cea mai mare provocare a fost ideea de conversie a unei clădiri industriale de sec. XIX, de punere in siguranță, dar și de a interveni cât mai puțin asupra arhitecturii existente”. Combinarea funcțiunii de bar cu cea de club dă un aspect fresh, versatil spațiului care se nuanțează în funcție de „spectacol”: cel diurn, a cărui serenitate e dată de lumina pătrunzând în voie prin ferestrele mari, și cel nocturn, al cărui mister e susținut inclusiv de iluminatul de accent și de prezența oglinzilor.
Deși proiectul s-a dat de câteva ori peste cap din cauza configurației clădirii și stării acesteia, amenajarea de interior a reușit să redea identitatea noului bar/club, punând în evidență, grație intervențiilor discrete, frumoasele detalii arhitecturale ale clădirii. Acest lucru a fost susținut, spre exemplu, de utilizarea unei palete coloristice regăsite în contextul istoric al clădirii: portocaliu, verde, gri.
În spațiu au fost delimitate trei zone, cea a barului, ringul de dans și zona grupului sanitar. Cea mai spectaculoasă prin detalii și ansamblu este zona barului: oglinzile care dau profunzime spațiului, rafturile din oțel inoxidabil și benzile LED, plafonul arcuit… Apariția unor elemente ludice, colorate într-un spațiu industrial, în general auster în exprimare, (mobilier, dispunerea corpurilor de iluminat, plante) oferă dinamism și atrage priviri și trupuri pe ringul de dans, care propune propria experiență senzorială.
Separată de restul clubului prin draperii negre, toaleta devine, la rândul său, un tărâm definit de mister și minimalism, placarea cu faianță albă și oglinda rotundă fiind un fir al continuității cu restul spațiului. Platforma Wolff este, în concluzie, un spațiu fresh, care merită o vizită diurnă ori nocturnă.
Și ca să ținem viu sezonul de petreceri, avem un playlist compus de Tudor Gheorghe de la APIO Studio, potrivit pentru zilele de vară în care ai vrea să fii la Platforma Wolff, nu la birou. Cu ocazia asta, lansăm și igloo.radio pe Spotify.
PROIECT: Platforma Wolff DJ Bar; ADRESĂ: Strada Doctor Constantin Istrati 1, București; SUPRAFAŢA UTILĂ: 300 mp; ARHITECTURĂ DE INTERIOR: Apio Studio, arh.Tudor Gheorghe; FINALIZAT: 2021
Articol publicat în igloo #208 / Ucraina / iunie-iulie 2022





