ARHITECTURĂ: Outbox Studio TEXT: Anca Rotar FOTO: Sabin Prodan

În orașul Chitila, mai precis în cadrul peninsulei de pe Lacul Chitila, în apropierea Parcului Dendrologic, o familie și-a dorit o casă cu o arhitectură în acord cu stilul modern al împrejurimilor, și care ofere toate beneficiile specifice locuirii la curte. Proiectul a pornit cu avantajul semnificativ al situării lotului într-un context echilibrat și armonios, ce beneficiază de o foarte bună dezvoltare la nivel de infrastructură, de accesibilitate și numeroase spații verzi.

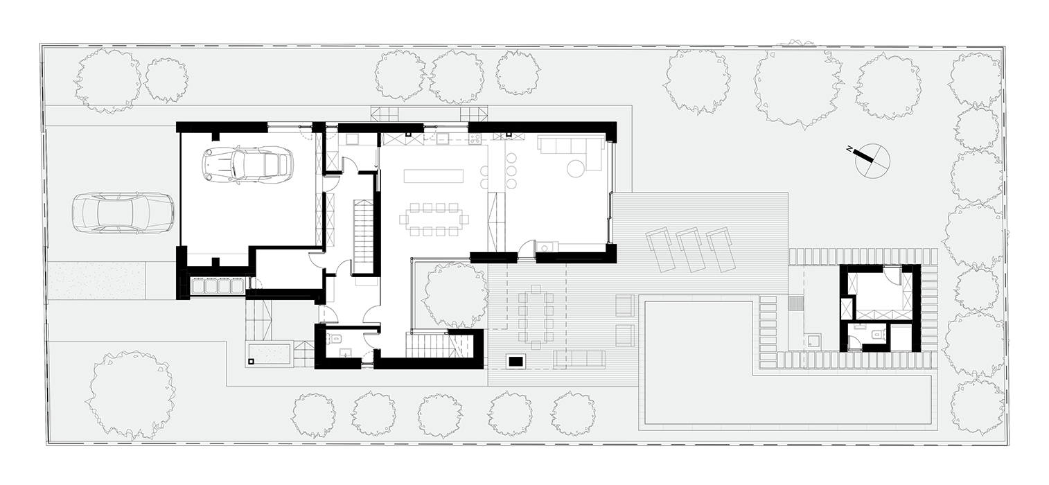
Astfel, s-a conturat o locuință pe două niveluri cu spații generoase, aflate într-o relație strânsă cu exteriorul. Parterul găzduiește zona de zi, iar etajul, zona de noapte, cărora li se adaugă un spațiu multifuncțional amplasat la subsol, dar care se bucură de iluminare și ventilație naturale. Accesul principal este marcat de o pergolă metalică, căreia îi corespunde o doua pergolă, prevăzută la trecerea din interior către curte, stabilind un sentiment de ritm și echilibru. În același timp, aceste structuri creează un spațiu tampon între interior și exterior, o tranziție între acoperit și neacoperit, și, de asemenea, oferă un binevenit refugiu în zilele călduroase de vară.

Încă de la intrarea în locuință, din zona vestibulului, se poate remarca o întrepătrundere armonioasă între spațiul construit și natură, întruchipată elocvent de grădina interioară ce constituie „inima verde” a casei, în jurul căreia sunt organizate spațiile de locuit. Amintind de grădinile integrate în casele japoneze, aceasta găzduiește un carpen care se înalță către nivelul superior și este complet vitrată, pentru a comunica deschis cu zona de zi și cu casa scării.

text2_7

Parterul generos curpinde o bucătărie cu zonă de dining, care se deschide către un living coborât, această diferență de nivel permițând crearea unei zone de bar care comunică direct cu bucătăria. Din zona de dining, grădina interioară, elementul generator al locuinței, poate fi admirată asemenea unui terariu supradimensionat, în timp ce, la rândul său, livingul se deschide către exterior printr-un perete complet vitrat.

Privind dincolo de acesta, descoperim o terasă generoasă, adiacentă piscinei. O anexă ce conține bucătăria de vară, un grup sanitar și duș, deservește zona, oferind tot ce este necesar pentru zilele calde petrecute în exterior.  

Orientarea și organizarea locuinței au fost gândite în așa fel încât aportul solar să fie unul controlat, asigurând umbră pentru zonele vitrate pe timp de vară și, în același timp, lăsând lumina de iarnă, mai joasă, să pătrundă înăuntru. Grădina interioară și terasa acoperită favorizează circulația aerului, contribuind la o ventilație optimă și la menținerea unei ambianțe plăcute în sezonul cald.

Plan parter
Plan etaj

PROIECT: Casă Chitila; REGIM DE ÎNĂLȚIME: P+1; AMPLASAMENT: Strada Arțarilor, Chitila, jud. Ilfov; SUPRAFAȚA TERENULUI: 824 mp; SUPRAFAȚA CONSTRUITĂ DESFĂȘURATĂ: 405 mp; ARHITECTURĂ: Outbox Studio; ECHIPA: arh Gruia Dumitrescu, arh Dimitrie Zerva, arh Petru Darida; STRUCTURĂ: ing. Radu Geanguș – Concept Structure; INSTALAȚII: ing. Adrian Burloiu – Deteco / ing Mihai Husch – Decolight / ing. Luminița Constantinescu; FINALIZAT: 2023

 

Descoperiți mai multe proiecte recente de locuințe individuale de pe teritoriul României în albumul Case din România 2024