ARHITECTURĂ: Quim Olea Estudi d’Arquitectura TEXT: Anca Rotar FOTO: Pol Viladoms
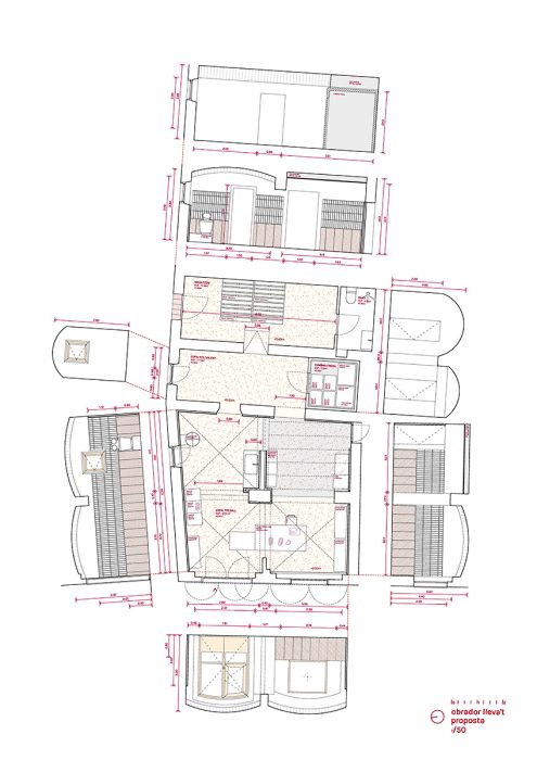
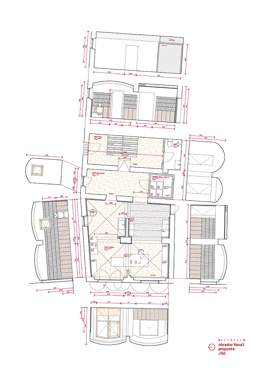
Proiectul transformă un fost depozit din centrul istoric al localității Avinyonet de Puigventós, situată la mică distanță de orașul Girona, într-o brutărie artizanală ce reînvie tradiția pâinii și o plasează din nou în centrul vieții de zi cu zi a comunității. Intervenția oferă o lectură atentă a locului, ce respectă, interpretează și suține existentul. Bogat în memorie și materie, spațiul se desfășoară într-o secvență de trei zone interconectate, diferite în ceea ce privește abordarea, scara și caracterul, formând o narațiune vizuală coerentă, funcțională și vibrantă.
Intervenția scoate la iveală particularitățile clădirii industriale, precum pereții de piatră, plafoanele boltite din cărămidă ceramică sau texturile neregulate, și alege să valorizeze – și nu să șteargă – urmele lăsate de trecerea timpului. Astfel, intervențiile asupra existentului au fost minimale, constând în curățarea și refinisarea suprafețelor pentru a recupera esența materialelor și a oferi o lectură sinceră a fiecărui strat istoric.
Cadrul revitalizat dialoghează în mod deschis cu elementele nou introduse. Pardoseala este realizată din beton lustruit, ușor nuanțat în tonuri pământii, unificând interiorul și conferindu-i căldură. Pereții sunt organizați în trei registre verticale: la bază – plăci ceramice de format mare, în tonuri deschise, apoi – plăci mici, albe, glazurate, ce sporesc luminozitatea și, în final, stratul istoric de piatră, susținând plafoanele boltite.
Deschiderile existente au fost păstrate, pentru a menține proporțiile și relația cu strada, în timp ce tâmplăria a fost reînnoită prin folosirea unui lemn natural închis la culoare. Intrarea principală a fost dotată cu o fereastră convertibilă ce poate servi ca punct de vânzare, amplificând relația cu strada.
Spațiul principal, generos și deschis, este susținut de o coloană centrală și acoperit de trei bolți din cărămidă ceramică. Un plafon fals din grinzi și plăci de beton marchează prezența cuptorului. Lipsa obstacolelor vizuale stabilește un flux de lucru clar și onest, unde arhitectura acționează ca scenă și suport al meșteșugului.
A doua zonă, mai îngustă, cu boltă semicirculară – de asemenea, din cărămidă ceramică – adăpostește camera de fermentație și zonele de lucru auxiliare. Secvența se încheie cu spațiul destinat depozitării și serviciilor sanitare, cu intrare proprie și acoperit de o boltă semicirculară din piatră și mortar.
Astfel, proiectul revitalizează cu naturalețe și onestitate o structură istorică și, menținând spiritul unui respect deplin, o pune în slujba unui meșteșug. Gestul tradițional al coacerii pâinii este redat străzii, invitându-i pe trecători să privească, să participe și să recunoască. Mai mult decât o renovare reușită, proiectul are rolul de a reaminti de rolul crucial al arhitecturii în păstrarea memoriei, transmiterea cunoștințelor și închegarea comunității locale.
PROIECT: Forn Lleva’t; AMPLASAMENT: Carrer dels Fossos 4, Avinyonet de Puigventós, Girona, Catalonia, Spania; ARHITECTURĂ: Quim Olea Estudi d’Arquitectura; FINALIZAT: 2025
