ARHITECTURĂ: Zen Architecture LUMINI: Traccia TEXT: Zen Architecture, Anca Rotar FOTO: Ovidiu Micșa
Situată în localitatea Sebiș din jud. Arad, această locuință mizează pe o arhitectură cu linii ferme, clare și unghiuri drepte. Atât geometria minimalistă a exteriorului, cât și contrastul dintre alb și negru, prezent pe fațadă, sunt continuate în interior, cu inserarea de elemente naturale precum lemnul sau verdele plantelor, creând un ansamblu coerent și o deschidere optimă a casei față de împrejurimi.
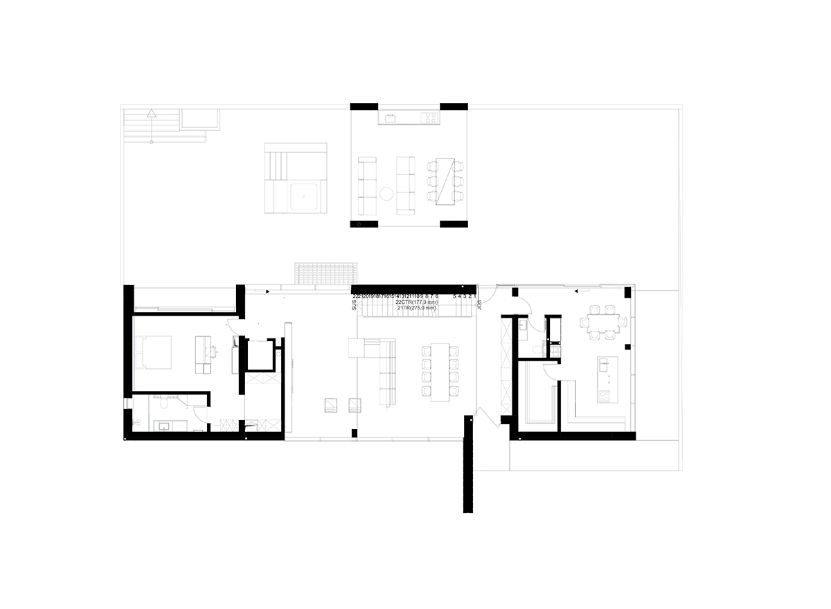
Amplasată pe o parcelă generoasă, ce garantează intimitatea locuitorilor, construcția este alcătuită din două volume suprapuse, orientate est-vest, volumul inferior fiind dedicat zonei de zi, iar cel superior zonei de noapte. Spre est, curtea escavată de lângă locuință oferă protecție față de soare pe timp de vară. Subsolul, cu acces pe latura vestică a casei, adăpostește garajul și spațiile tehnice.
La etaj, locul scării este marcat de un perete verde din mușchi natural. Zona de noapte constă în patru dormitoare cu băi proprii și o cameră de lectură. Toate camerele privesc spre vale, iar terasele mediază tranziția între interior și exterior. Spălătoria este iluminată natural printr-o mică curte de lumină, închisă de fațada vestică a locuinței.
Finisajele interioare au fost alese în așa fel încât să completeze și să pună în evidență conceptul arhitectural. Contrastul alb-negru, potențat de tonuri de gri și culori pământii, naturale, precum și de prezența lemnului, ajută la stabilirea unui dialog captivant între plantele din interior și liniile drepte ale arhitecturii. Soluțiile de depozitare, dezvoltate pe întreaga înălțime a camerelor, sunt fie ascunse, fie alipite pereților, pentru a facilita deplasarea și a menține continuitatea vizuală. În schimb, piesele de mobilier de sine stătătoare aduc o notă de varietate în ceea ce privește formele și texturile.
Proiectul a mizat pe concepte sustenabile și pe folosirea de materiale eficiente energetic. De asemenea, toate suprafețele vitrate sunt protejate de sisteme de umbrire integrate în sistemul smart home. Atât încălzirea, cât și răcirea au loc prin intermediul pompelor geotermale, în combinație cu panourile fotovoltaice de pe acoperiș.
PROIECT: Casa IB; AMPLASAMENT: Sebiș, jud. Arad; REGIM DE ÎNĂLȚIME: S+P +1E; SUPRAFAȚA TERENULUI: 4 036 mp; SUPRAFAȚA CONSTRUITĂ DESFĂȘURATĂ: 700 mp; ARHITECTURĂ: Zen Architecture; ECHIPA: arh. Zeno Ardelean, arh. Vlad Marcu; STRUCTURĂ: ing. Filip Domșa; INSTALAȚII: ing. Lucian Volintiru, ing. Sebastian Dorhoi, ing. Ovidiu Iepure; ARHITECTURĂ PEISAJERĂ: arh. Zeno Ardelean, Masterconstruct, LAN Moss; FINALIZAT: 2024








