ARHITECTURĂ: Abruptarhitectura TEXT: Abruptarhitectura FOTO: Vlad Pătru
Școala veche din Tohani aparține marii familii a edificiilor școlare construite după proiecte tip în sate și comune ca parte importantă a reformei învățământului de sub ministeriatul luminat al lui Spiru Haret. Proiectul școlilor de sat cu două clase era însoțit de planurile casei învățătorului și de specificații privind iluminarea, încălzirea, dotarea spațiilor, materialele de construcție admise și tehnicile de punere în operă. Au fost construite pe teritoriul regatului (Țara Românească și Moldova) câteva sute de astfel de clădiri ușor de recunoscut după simetria fațadei principale, cu vestibulul de acces decroșat, și cele două grupări de câte trei ferestre mari plasate de o parte și de alta a intrării.
În funcție de disponibilitatea sau ambițiile donatorilor, de fondurile primite de la centru, de materialele de construcție din zonă, aceste școli au căpătat tratări de fațadă mai savante sau mai banale, cu detalii uneori sofisticate și opulente, alteori modeste și fruste, într-un acord mai sincer cu scopul pentru care erau ridicate. Clădirea școlii din Tohani a fost construită în 1907 și poartă numele ctitorilor săi Nicu și Cleopatra Bagdat, mari proprietari de terenuri în județul Buzău.
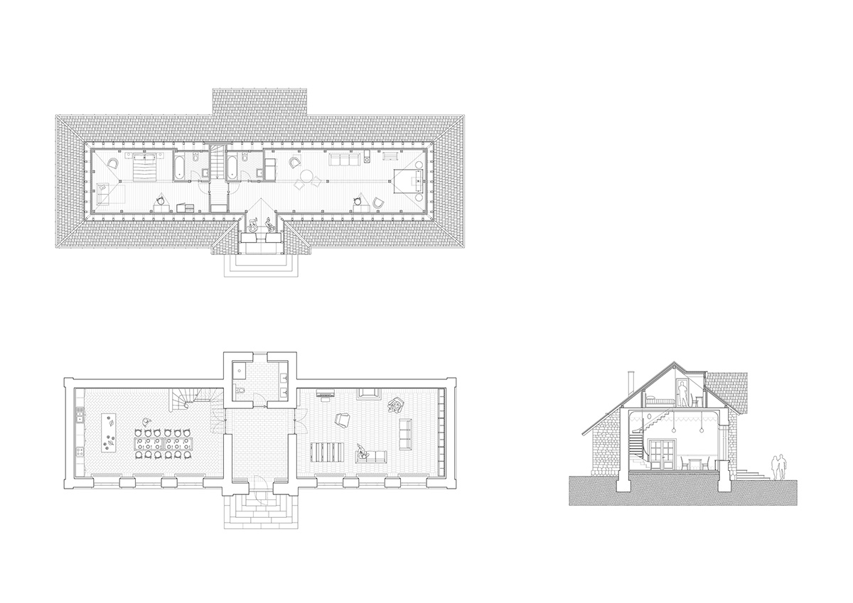
Zidăria portantă a pereților a fost realizată din piatră de calcar local de Istrița în două straturi – piatră cioplită pentru paramentul exterior aparent și zidărie de bolovani către interior, tencuită cu var. Fațadele sunt austere, cu doar câteva elemente în relief precum lezenele de la colțuri, solbancurile și arcele golurilor. Deasupra intrării, încastrată în parament, o placă de bazalt poartă numele binefăcătorilor. Organizarea interioară a spațiilor e simplă, din vestibulul de intrare amplasat central se intră, în stânga și în dreapta, în două săli de clasă luminoase și de dimensiuni generoase, iar în față, într-o odaie mică, ce iese din volumul principal, se găsea cancelaria.
După ’89, pe fondul depopulării satelor, școala a rămas abandonată și a devenit sursă spontană pentru lemn de foc și alte bunuri de interes. Au dispărut uși și cercevele, dușumele și sobe. Apoi a urmat în anii 2000 retrocedarea proprietății către urmașii familiei Bagdat. Actualii proprietari (o familie din zonă) au cumpărat clădirea și terenul, fermecați de frumusețea zidurilor și de atmosfera și panorama unice ale locului. Au fost inițiate lucrări de consolidare la interior a zidăriilor și a planșeului peste parter, au fost refăcute șarpanta și învelitoarea în gabaritele inițiale ale acestora. Proiectul de reabilitare a pornit de la dezideratul comun de a păstra spiritul arhitecturii originale și de a potența prin rânduirea interioarelor o difuză aducere-aminte, o aluzie la alte vremuri, oameni și tabieturi.
Pentru a modifica cât mai puțin spațiile de jos și a lăsa să rezide memoria sălilor de clasă, prin lumina, culoarea și ecoul lor, decizia de a le transforma în două mari saloane ale viitoarei case de oaspeți a venit firesc și necesar, chiar cu neajunsul de a reduce camerele de dormit la două, instalate în mansardă. Orice gest de reducere prin partiționarea spațialității parterului le-a părut și arhitecților, și comanditarilor un act de impietate.
Camera din dreapta este destinată șederii, cititului, conversației, iar cea din stânga a devenit bucătărie și sufragerie. Scara a căutat să nu se depărteze prea mult de axul median al clădirii, să gestioneze, printr-o suită de transformări geometrice, de structură și de material, înălțimea mare și să traducă efortul urcării într-o experiență de tranziție către alt tip de spațiu, de descoperire și „dispariție”.
Perspectiva asupra celor două camere de la parter este stabilă, echilibrată, ambele având o ocupare uniformă a peretelui-fundal, opus intrării – frontul de lucru pe de o parte și biblioteca pe cealaltă. Saloanele nu au fost „amenajate”, ci mai degrabă introduse într-o altă situare afectivă, ce preia prin culoare, desen, ritm o sumă din calitățile banale ale locului de învățare, transpuse într-un spațiu al răgazului și al restaurării, precum și școala ar trebui să fie.
PROIECT: Școala veche din Tohani; AMPLASAMENT: Tohani, jud. Prahova; REGIM DE ÎNĂLȚIME: P+M; SUPRAFAȚA TERENULUI: 6 000 mp; SUPRAFAȚA CONSTRUITĂ DESFĂȘURATĂ: 360 mp; ARHITECTURĂ: Abrutarhitectura – arh. Cosmin Pavel, arh. Cristina Constantin; FINALIZAT: 2023
Articol publicat în igloo #226 / Arhivă: România la Bienala de Arhitectură de la Veneția/ iunie – iulie 2025

