Igloo
  • Abonament
  • Revista Igloo
  • SHOP
    • Revistă
    • Cărți
    • Abonamente
    • Oferte
Contul meu Abonamentul meu

Coșul tău 0

Nu ai niciun produs în coș.

Caută

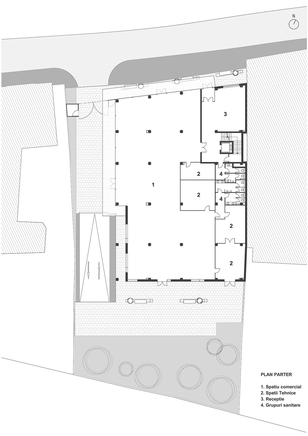
Mainstream Office

8 aprilie 2020

Arhitectură:

Text: aniela.macarin

PROIECT: Mainstream Office

Tag-uri:

Articol publicat în

igloo 230 / Spațiul muzeal recent. Transformări, hibridizări, metamorfoze / februarie – martie 2026

igloo 230 / Spațiul muzeal recent. Transformări, hibridizări, metamorfoze / februarie – martie 2026

50,00 lei

Adaugă în coș

Înscrie-te la newsletter

Igloo

Categorii

  • Arhitectura
  • Interior
  • Design
  • Actual
  • Interview Expo 25
  • English

Despre

  • Presa
  • Publicitate
  • Contact
  • Newsletter

Shop

  • Revista Igloo
  • Carti
  • Abonament
  • Promotii
  • Sub 10 lei

Info

  • Termeni si conditii
  • GDPR
  • Politica de cookie-uri
  • Politică de livrare și retur
  • ANPC

Social media

  • Facebook
  • Instagram
  • YouTube

© Igloo Media 2026

✕
 
Return to shop