AMENAJARE DE INTERIOR: Dofinteriors TEXT: Iuliana Dumitru FOTO: Arthur Țințu
Vă dezvăluim un apartament ce reprezintă mai mult decât un simplu spațiu locativ – este o experiență vizuală și senzorială, o poveste despre cum designul interior poate deveni o expresie a armoniei dintre om și mediu, dintre trecut și prezent, dintre natural și urban. Autorii acestei scenografii sunt arhitecții de la Dofinteriors, aflați deja la al patrulea proiect pentru același beneficiar (cum altfel decât foarte mulțumit?) și inspirați în procesul de amenajare de produse premium din portofoliul PAZO Grup, care s-au completat perfect într-o viziune continuă, unitară a spațiului.
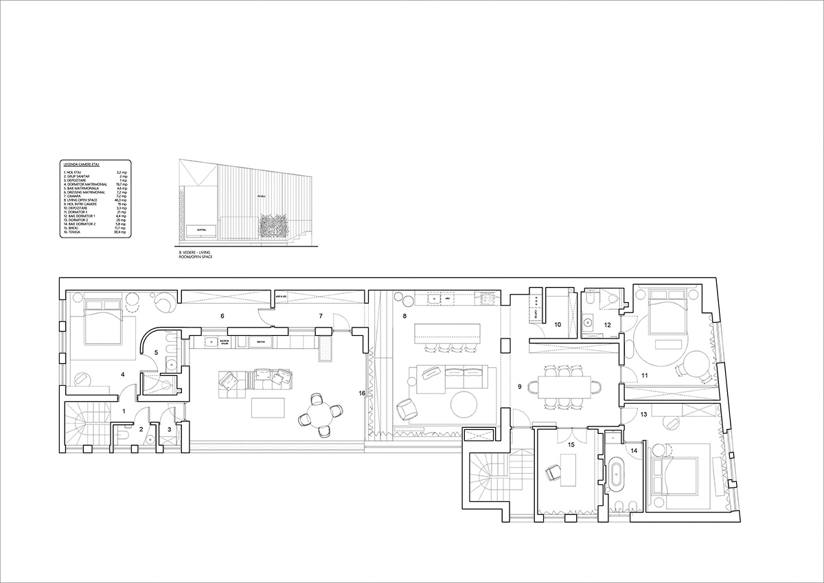
Ideea amenajării a fost de a crea o oază de liniște, seninătate și echilibru chiar în agitația cotidiană a orașului. Apartamentul se desfășoară spectaculos, pe întreg etajul unei vile interbelice, beneficiind (în livingul cu alură de amfiteatru) de o amplă și surprinzătoare deschidere spre cer, ceea ce i-a determinat pe arhitecți să facă din natură, cu multiplele ei fațete, o prezență continuă și la interior. O altă sursă de inspirație a reprezentat-o conceptul japandi – o formă de minimalism prietenos, în care fuzionează simplitatea funcțională a designului scandinav contemporan cu „imperfecțiunea” organică, elegantă și misterioasă a esteticii japoneze. Din componența acestei personalități spațiale fac parte elemente-cheie precum arcadele, plafonul vitrat, lemnul, plantele, lumina naturală din abundență și nuanțele subtil-vibrante de auriu, ce dau interiorului o notă suplimentară de căldură și rafinament.
Peretele cu cele două arcade – structuri arhitecturale distinctive –, aflat între casa veche și intervenția nouă, servește ca punte între trecut și prezent, dar și, concret, între zona de zi, cu deschidere către terasa generoasă, și zona de noapte, creând astfel un spațiu de o fluiditate funcțională. Întrepătrunderea dintre interior și exterior este permanent subliniată de suprafețele vitrate, de prezența bogată a plantelor și, în mod sugestiv, de motivele vegetale ce învăluie pereții (fie prin tapet, fie prin amprentările manuale ale vopselei decorative – devenite o reală semnătură Dofinteriors, ilustrând o dată în plus atenția pentru valențele tactile ale materialelor cu care lucrează).
Coerența stilistică a întregii amenajări și a atmosferei create ține și de avantajul de a apela într-o proporție semnificativă la un unic furnizor, însă cu un portofoliu atent curatoriat. În cazul de față, e vorba de PAZO Grup, de unde arhitecții au ales toate piesele de mobilier ready-made, parchetul, o multitudine de placări de ceramică din aceeași familie (bucătărie și zona de șemineu, de pildă), precum și o parte din corpurile de iluminat.
Arh. Raluca Dofin ne-a mărturisit cum, având în vedere potențialul spațiului și calitățile lui intrinseci, intenția echipei Dofinteriors a fost să genereze „acel echilibru fin între funcționalitate și frumusețe. Mai mult decât atât, ne-am bucurat din nou de un mod de a lucra imaginativ și de încrederea deplină a clienților, care au primit cu foarte multă atenție și receptivitate propunerile noastre”.
PROIECT: Amenajare apartament Gentle Glow; AMPLASAMENT: București; SUPRAFAȚA UTILĂ DESFĂȘURATĂ: 180 mp; AMENAJARE DE INTERIOR: Dofinteriors – arh. Raluca Dofin, arh. Radu Dofin, arh. Răzvan Mălăncioiu; FINALIZAT: 2024
Articol publicat în igloo #220 / Reviste experimentale de arhitectură / iunie-iulie 2024

