ARHITECTURĂ: Sampling Architects TEXT: Anca Rotar FOTO: Madara Kuplā

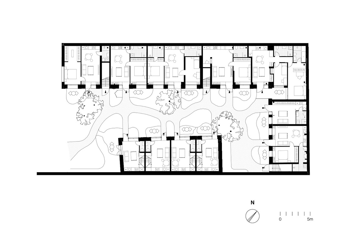
Abordat din perspectiva reutilizării adaptive, proiectul cuprinde o fostă casă de raport, construită în anii 1900 în varianta locală a stilului Art Nouveau, care a fost atent renovată, și două foste clădiri industriale joase adăugate mai târziu, la rândul lor recondiționate și adaptate funcției de locuire. Elementul central al ansamblului este, însă, curtea interioară, transformată într-o grădină urbană contemporană, care întregește atmosfera și susține convivialitatea și calmul.

Intervenția asupra clădirii istorice a fost una delicată, arhitecții optând pentru izolarea din interior a fațadei principale. La exterior, decorațiunile originale ale clădirii, specifice stilului în care a fost construită – precum alternanța dintre suprafețele cu tencuială rugoasă și cele netede – au fost restaurate și puse în valoare. Imaginea de la stradă este completată de accentele de roșu carmin ale acoperișului de tablă și pervazurilor de la ferestre.

text1_AugustinesDarzs-845-fotoMadaraKupla

Accesibilă printr-un gang demarcat de o poartă metalică vopsită în verde oliv, curtea interioară comună oferă scena neașteptată a unei oaze de vegetație chiar în inima orașului. Volumele ce o mărginesc sunt foste clădiri și ateliere industriale pe ale căror fațade se pot citi urmele unor intervenții repetate de-a lungul anilor – materiale de construcție din diferite epoci, de la cărămida roșie și buiandrugii metalici de la începutul secolului 20, până la cărămizile albe de siliciu, populare în perioada sovietică. Acest colaj este completat de o serie de elemente rudimentare din oțel, care inițial aveau un rol funcțional.

Complexul cuprinde apartamente tip studio, duplexuri de dimensiuni mici, dar și unități de locuit mai generoase, cu terase și balcoane cu balustrade din fier forjat. Grădina rămâne, însă, elementul unificator, cu un rol crucial în crearea atât a unei estetici domestice armonioase, cât și a unui sentiment de comunitate, susținut și de elemente precum ferestrele generoase de la parter, cu pervazuri joase și late din beton, ce pot servi drept locuri de ședere în zilele calde de vară, sau terasele mici acoperite cu pietriș pe care se poate așeza mobilier de exterior.

PROIECT: Augustines Garden; AMPLASAMENT: Strada Alauksta, nr. 7, Riga, Letonia; SUPRAFAȚA CONSTRUITĂ DESFĂȘURATĂ: 830 mp; ARHITECTURĂ: Sampling Architects; FINALIZAT: 2025