ARHITECTURĂ: Studio3plus TEXT: Manuela Zipiși FOTO: Sabin Prodan, Mihai Georgiadi
Amplă desfășurare de forțe, restaurarea și conversia în hotel a unui conac de la 1910 – Conacul din Cozieni – a oferit echipei Studio3plus oportunitatea de a contura un ansamblu contemporan ce invită la bucurie într-un context istoric care, respectând și revalorificând elementele de patrimoniu, aduce un suflu actual și deschide calea unor noi istorii.
Ca de obicei, revenirea la viață, în forme noi și complexe, a unei clădiri de patrimoniu este un motiv de bucurie. De data aceasta s-a întâmplat în cazul unuia dintre conacele din afara Bucureștiului, Conacul din Cozieni pe care boierul Ioan Dimitrie Podgoreanu îl construia în 1910 pentru copiii săi. Într-un secol, clădirea realizată în stil brâncovenesc s-a transformat într-o ruină, stadiu în care echipa Studio3plus a intrat într-o aventură ce a presupus salvarea, extinderea și convertirea conacului în hotel.
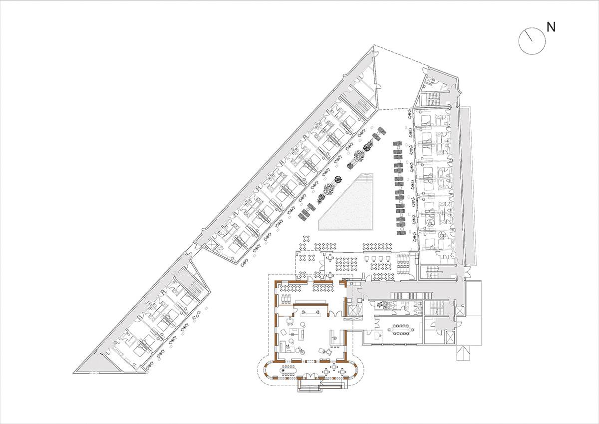
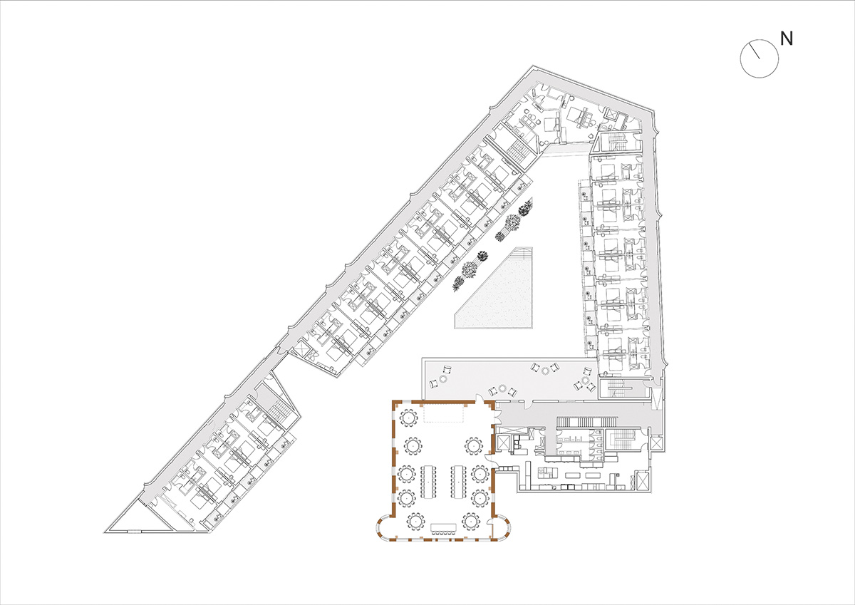
Conversia a avut drept rezultat un complex cu 73 de spații de cazare, o sală multifuncțională de evenimente pentru 200 de persoane, restaurant, cramă, zonă SPA și o sală de conferințe pentru 300 de persoane. Remodelarea morfologică a sitului a înconjurat miezul istoric – conacul restaurat – cu o serie de noi clădiri care, după cum mărturisește echipa, îl înconjoară ocrotitor, fără a-i știrbi punerea în valoare: „curtea interioară semideschisă dobândește rolul coagulant în întreaga organizare, iar corpurile extinse păstrează conacul în locul privilegiat, îmbrățișându-l fără să-l copleșească sau să-l ascundă.”
Atât beneficiarii, cât și arhitecții și-au dorit conservarea valorilor specifice stilului brâncovenesc, spre exemplu, prin conservarea cărămizii autentice și utilizarea celei recuperate în cadrul balcoanelor la unitățile de cazare. Curtea interioară își concentrează direcțiile de circulație pe zona piscinei către care sunt orientate și toate suprafețele vitrate ale unităților de cazare, asigurând astfel o binevenită intimitate. Arcada a devenit elementul definitoriu al noului program, astfel că arcele porticului noilor clădiri au preluat arcadele clădirii Podgoreanu.
Renașterea spiritului vechiului conac s-a realizat și prin păstrarea și reutilizarea unor elemente decorative interioare, cum ar fi „cărămida de la parapeții balcoanelor în clădirile noi și de la peretele separator dintre recepție și restaurant, decorațiunile și grinzile din lemn refolosite ulterior ca elemente de decor, mozaicul restaurat din pridvorul conacului.” Rezultatul remodelării clădirii pentru a adăposti noile funcțiuni a determinat supraînălțarea șarpantei conacului (pentru sala de evenimente de la etaj), vechea fațadă „rămânând ca o carcasă distinctă și nealterată vizual”.
Reîntâlnim motivul arcadei și la interior în zona recepției și a spațiului de așteptare, în forma arcadei din cărămidă aparentă completată de „placarea metalică a intradosului arcelor”. Acestea sunt armonios completate de noi detalii și teme ale designului de interior, care asigură atât un ambient cald și primitor, însă fac și o trimitere subtilă la specificul locului (tipare geometrice ce amintesc de veșmintele populare, referințe vegetale în cazul corpurilor de iluminat și scaunelor etc.).
Motivele revin și în camere prin placaje parietale, mochetă, „tapet cu imprimeuri vegetale în tehnică de acuarelă sau lambriu din panouri de lemn compozit.” Paleta cromatică este cea a nuanțelor neutre, dar calde și primitoare care completează discret parfumul istoric al locului, deschizând scena unor viitoare momente memorabile petrecute la Conacul din Cozieni, evenimente, întâlniri sau pură relaxare.
PROIECT: Mercure Conacul Cozieni; AMPLASAMENT: str. Mănăstirii nr. 1, jud. Ilfov, loc. Cozieni, comuna Găneasa; SUPRAFAȚA TERENULUI: 8 723,46 mp; SUPRAFAȚA CONSTRUITĂ DESFĂȘURATĂ: 6 300 mp; ARHITECTURĂ & DESIGN INTERIOR: Studio3plus; ECHIPA: arh. Dragoș Scurtulescu, arh. Raluca Scurtulescu, arh. Claudia Ștefănescu; ARHITECTURĂ PEISAGERĂ: Studio3plus și Ecohorticultura; STRUCTURĂ: Concept Structure; INSTALAȚII: Maestro; FINALIZAT: 2023; PREMII: Best Hotel Architecture Concept și Hotel Opening of the Year (silver) la Top Hotel Awards 2024
Articol publicat în igloo #220 / Reviste experimentale de arhitectură / iunie-iulie 2024

