AMENAJARE DE INTERIOR: Ioka Design TEXT: Manuela Zipiși FOTO: Iulia Oniciuc
La întrebarea „pot fructele inspira conceptul amenajării unui apartament?” răspunsul este da. Cât despre posibilitatea ca o rețetă să inspire designul răspunsul corect este Holy Guacamole. În acest apartament din ansamblul rezidențial bucureștean Urban Spaces Sfinții Voievozi, echipa Ioka Design a propus o adevărată „explozie de culoare” într-un spațiu care a fost preluat deja finisat.
Conceptul face un pas în lateralul designului minimalist, al alburilor și detaliilor eterice, și nu se teme să propună culoarea ca element definitoriu al spațiului cu nuanțe distincte – living și dormitor – care se combină armonios cu mobilierul, textilele și obiectele decorative selectate. Pentru finisajul pereților s-a ales preluarea motivului fațadei imobilului, fiind astfel „aplicate profile decorative riflate pentru background-ul dining-ului și cel al patului”, după cum ne-au povestit arhitectele.
În living, nuanțe de verde pal și griuri conturează toate cele trebuincioase: bucătăria, masa momentelor de bucurie gastronomică, spații de depozitare, zona momentelor leneșe și a filmelor văzute de pe canapea. Bucătăria apare drept o prezență discretă, împrumutând cromatic versatilitatea pe care se bazează conceptul de amenajare. Dormitorul se definește între un roz prăfuit și un nostalgic ocru, fiind completat cu un mic birou / o măsuță de toaletă. Tabloul amplasat deasupra mobilierului atrage privirea grație gurmandei referințe gastronomice.
De remarcat, în întreg spațiul, corpurile de iluminat cărora echipa Ioka Design le acordă o atenție deosebită în toate proiectele pe care le semnează. Din acest motiv, s-a optat pentru modificarea surselor existente și repoziționarea acestora. Diversitatea apare și de data aceasta, numitorul comun fiind bulbii luminoși, prezență feminin-organică cu rol de a nuanța și de a înveseli casa. Obiectele decorative nu sunt etalate în exces, ci acompaniază discret un ambient care transmite energie și convivialitate.
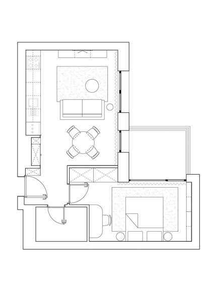
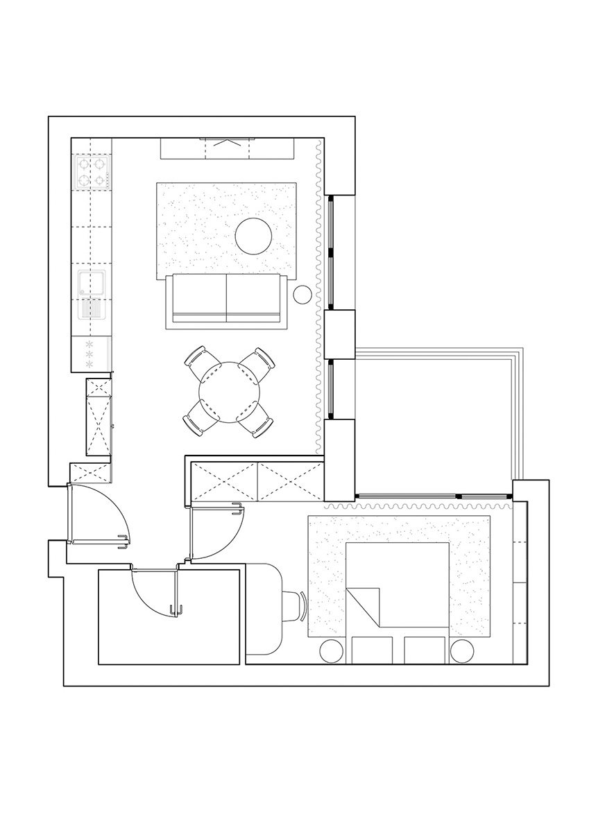
PROIECT: Apartament Holy Guacamole; AMPLASAMENT: Urban Spaces Sfinții Voievozi 20-24, București; SUPRAFAȚA UTILĂ: 54 mp; AMENAJARE DE INTERIOR: Ioka Design; ECHIPA: int. arh. Iulia Oniciuc, int. arh. Camina Zerva, int. designer Arina Bianca Rusu; FINALIZAT: 2022
Proiect publicat în albumul Interioare XS din România 2022





