AMENAJARE DE INTERIOR: arh. Doriana Mărășoiu TEXT: Manuela Zipiși FOTO: arh. Doriana Mărășoiu

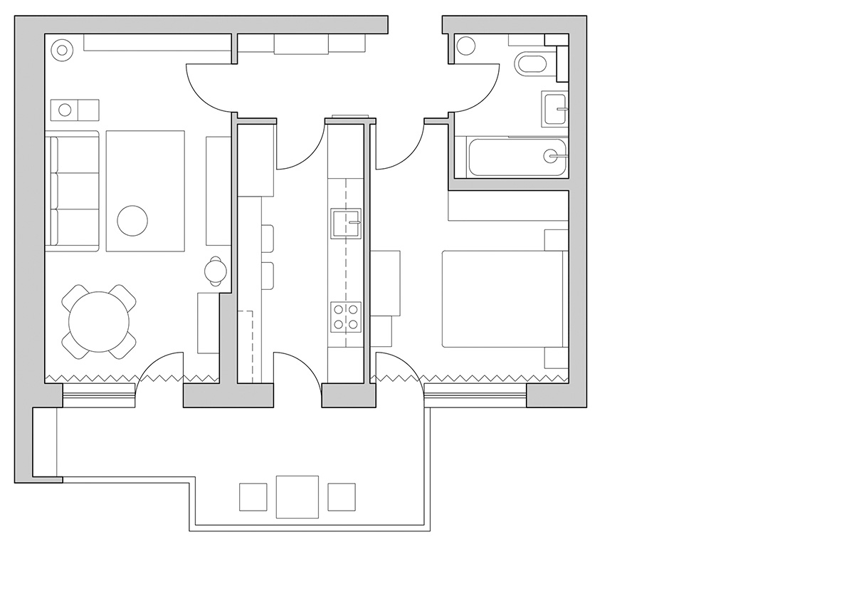
În cazul acestui apartament bucureștean de 48 mp s-a dorit conturarea unei atmosfere necomplicate și senine, în care să se simtă bine toți cei care urmează să îi treacă pragul, având în vedere că spațiul a fost destinat de la început închirierii ulterioare. Poziționarea în apropierea unei stații de metrou bucureștene (Dimitrie Leonida), într-un context urban din care lipsește vegetația, a generat aproape organic tema conceptului, cu preponderență inspirată de natură și ale sale virtuți relaxante și energizante.

Astfel, întreg spațiul s-a înveșmântat într-o atmosferă botani­că exprimată prin mobilierul și accesoriile în tonuri de verde și verde mentă care se așază pe fundalul neutru al finisajelor natu­rale. Din holul aerisit, luminos, livingul se deschide sub auspicii biofile într-o cheie minimalistă care nu exclude clara definire a zonelor de relaxare ori dining.

Diversitatea corpurilor de iluminat accentuează diferențele, permițând și accente subtile (cum este lampa de citit de lângă canapea, invitând la intimitatea momentelor de lectură ori la dulci sieste). Bucătăria se încadrează în linia minimalismului ergonomic, deschizându-se către terasă, iar baia continuă prin mici accente (tablouri, elemente decorative) același ritm al naturii invitate și personificate.

Dormitorul este suficient de luminos încât să aducă o notă pozitivă atmosferei, iar spațiul primește inclusiv soluții de depozitare care reușesc să nu îi aglomereze inutil intimitatea. Vegetalul se regăsește aici în textile și în delicate accente deco­rative. Spațiul care s-a dorit un „acasă fără prea multe intervenții ulterioare”, după cum subliniază chiar autoarea proiectului, arh. Doriana Mărășoiu, este exemplul unei transformări care pune accent pe bunăstarea locuitorului contemporan, cu toată empatia și atenția necesare demersului.

PROIECT: Apartament NE; AMPLASAMENT: Dimitrie Leonida, București; SUPRAFAȚA UTILĂ: 48 mp; AMENAJARE DE INTERIOR: arh. Doriana Mărășoiu; FINALIZAT: 2020

 

Proiect publicat în albumul Interioare XS din România 2022