Imobilele de birouri de înălțime medie sunt un subiect sensibil din pricina tensiunii specifice între limbajul arhitectural caracteristic programului ce reclamă vitraje majore și volumetria de mică anvergură, a cărei compoziție și morfologie trebuie să concilieze cumva aceste extreme.
Amplasat în București, pe o stradă cu imobile de apartamente moderniste, din anii șaizeci, așezate în fața unui țesut urban cu case mici și medii, clădirea de birouri realizată de echipa Artline este o inserție cameleonică. Așa cum afirmă arhitectul Radu Teacă, clădirea sugerează „o tranziție (între caracterele diferite ale străzii – n.red.) printr-un volum împărțit în două, cu acoperiș înclinat, facilitând integrarea naturală în sit”.
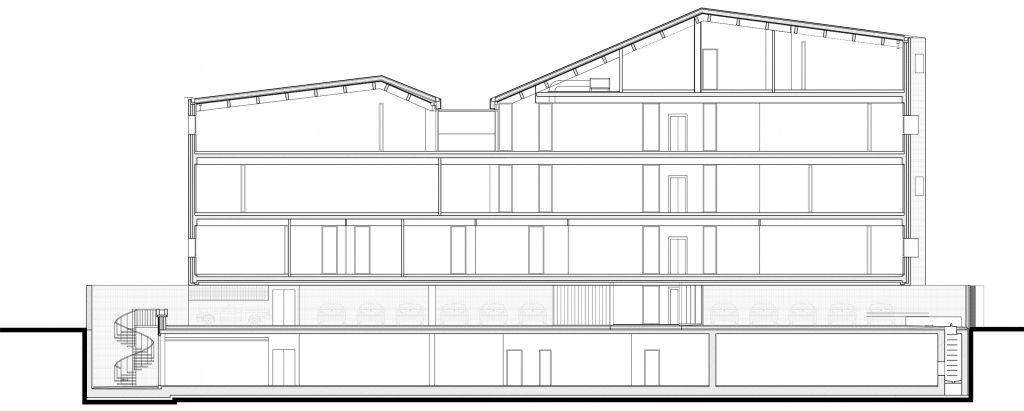
Accesul în clădire se face printr-un hol de dimensiuni mici, care include recepția, liftul și scările.

Printr-o decizie de proiectare abilă, clădirea are o deschidere structurală de aproximativ nouă metri care eliberează total planul de orice elemente de sprijin, generând fexibilitate.
Exteriorul clădirii recurge la parietale din cărămizi, în sistem ventilat, blocurile ceramice grej ce dau identitate ansamblului fiind susținute de bride din oțel zincat, fixate în pereții interiori subțiri din beton armat.

Fațadele sunt împărțite în fâșii orizontale prin ferestre de lungimi diferite, așezate omogen. Anvelopanta clădirii e însă caracterizată de zonele pline, masive. Calcanul a fost tratat ca a patra fațadă și este placat, la rându-i, cu cărămizi. Pe această fațadă, lumina pătrunde prin fante de sticlă turnată.
Cele două volume ale imobilului se întâlnesc și se articulează în apropierea unei terase exterioare amplasate la etajul al treilea, destinată recreării celor care lucrează în clădire. La etajul al patrulea se află un apartament, al cărui cadru rămâne vizibil cu grinzi din lemn laminat, asemănător spațiilor de birouri din partea dorsală a clădirii.

Subsolul conține, în afara spațiilor tehnice, un showroom ce se deschide spre o curte vitrată pe toată întălțimea, element care amplifică spațiul.
PROIECT: Clădire de birouri pe strada Matei Voievod; Amplasament: strada Matei Voievod nr. 100, sector 2, București; Suprafața construită: 375,4 mp; Suprafața construită desfășurată:
1 899,8 mp; Proiect arhitectură: Artline; Autor: arh. Radu Teacă; Colaboratori arhitecți: Péter Marx, Raluca Velescu, Otilia Călin, Alex Pintea, Andrada Tărău, Pietro Dorissa, Ștefan Farmazon, Corina Nicola; Proiect rezistență: ing. Cristian Năstase, Concept Structure; Proiect instalații: PROMTEH; Executant structură, fațade ventilate din cărămidă: Parauanu & Tudor Construcții; FINALIZAT: 2019
Proiect prezentat în igloo #193_Big City Lights

