ARHITECTURĂ: Triptyque Architecture TEXT: Anca Rotar FOTO: Maíra Acayaba
Situată în zona Bulevardul Paulista, unul dintre cele mai importante centre de afaceri, financiare și culturale din São Paulo, Inspira SP a luat naștere ca un răspuns contemporan la un context urban aflat în continuă mișcare. Elegantă, zveltă și integrând cu naturalețe verdeața abundentă în țesutul construit, clădirea apare ca un element de legătură între dinamica existență colectivă a cartierului și vastitatea deschisă a cerului..
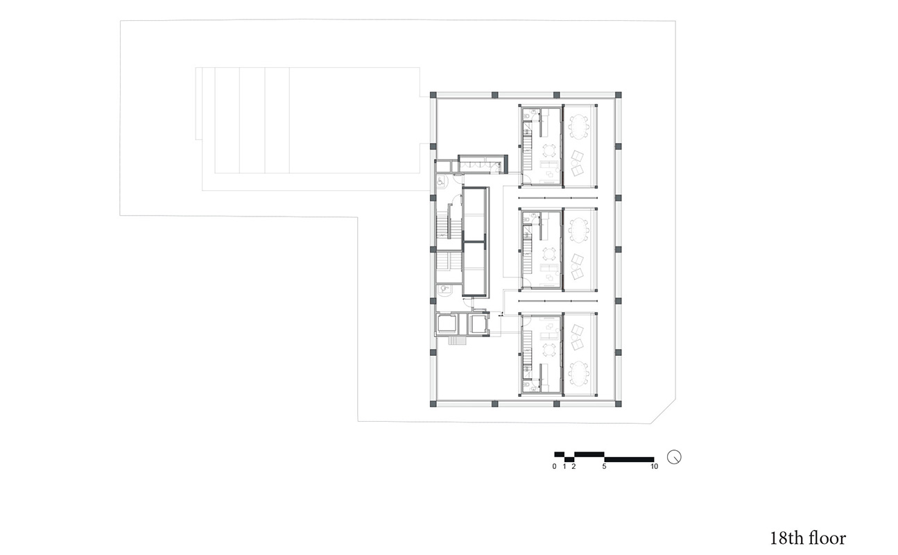
Principala caracteristică a proiectului este structura atipică a turnului – o grilă perimetrală din beton care, la nivel estetic, stabilește o ordine riguroasă și conferă clădirii o identitate puternică și, din punct de vedere funcțional, eliberează spațiile interioare, permițând ocuparea fiecărui etaj într-un mod liber, flexibil, și asigurând, astfel, longevitatea utilizării și un grad ridicat de adaptabilitate pentru diferite programe.
Totuși, ceea ce diferențiază cu adevărat Inspira SP de o clădire de birouri tipică este prezența vegetației luxuriante, care transformă construcția într-o infrastructură verde. Un sistem continuu de jardiniere, integrat în grila de beton, permite vegetației să acapareze și să contrazică geometria autoritară, conferind turnului o dimensiune mutabilă și dinamică. Clădirea devine, astfel, un suport activ pentru un peisaj în schimbare, creând noi moduri de percepție și interacțiune.
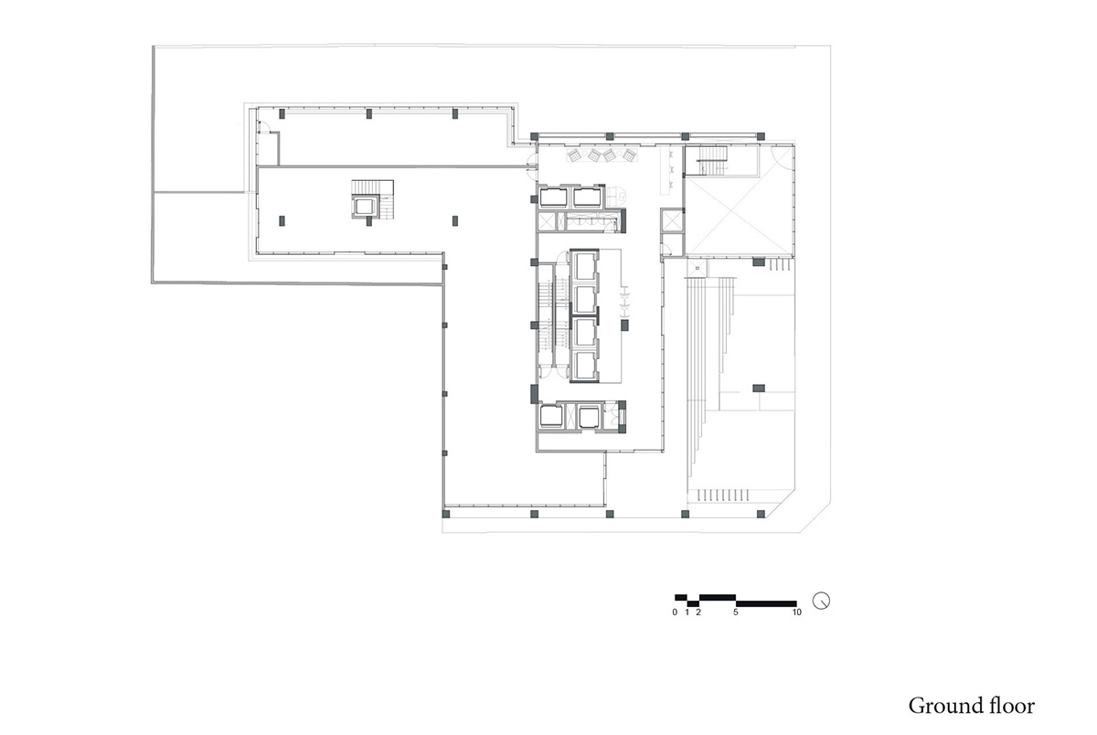
La parter, turnul se deschide către oraș printr-o piațetă publică și o grădină luxuriantă, dizolvând granița dintre clădire și spațiul urban. În partea de sus, grila structurală se pliază pe orizontală, completând gestul arhitectural.
PROIECT: Inspira SP; AMPLASAMENT: São Paulo, Brazilia; SUPRAFAȚA CONSTRUITĂ DESFĂȘURATĂ: 17 462 mp; ARHITECTURĂ: Triptique; ECHIPA: Guillaume Sibaud, Olivier Raffaëlli, Gustavo Ziviani, Gustavo Panza, Luca Moreira, Rodrigo Gonzaga, Caio Dias de Sá, Gustavo Cherubini, Bruna Alcine, Bárbara Petri, Pedro Freire, Diego Santana Costa, Hassan Zoghbi de Palma, Julie Nolasco Barroca, Daniel Kenzo, Enzo Nercolini; ARHITECTURĂ PEISAGERĂ: Sérgio Santana; ELEMENTE DE IDENTITATE VIZUALĂ: Nitsche Arquitetos; CLIENT: Hemisfério Sul Investimentos + Toca 55 Incorporadora; FINALIZAT: 2025







