ARHITECTURĂ: arh. Rucsandra Popescu – WDE SIGN TEXT: Iuliana Dumitru FOTO: Andrei Mărgulescu
De câte contorsiuni și obstacole e nevoie pentru a ajunge la un rezultat de o simplitate esențială – așa s-ar putea rezuma, mai în glumă, mai în serios, povestea unei case din bine-cunoscutul ansamblu Dumbrava Vlăsiei. Proiectul e semnat de arh. Rucsandra Popescu (WDE SIGN), care a reușit în mod exemplar să redefinească constrângerile unei situații moștenite, să răspundă cu pragmatism unor nevoi specifice de locuire și, totodată, să inoveze în planul expresiei arhitecturale.
Uneori, în arhitectură, construitul „de la zero” e mai degrabă un deziderat, un fel de a spune, căci în realitate proiectele se conturează într-un cadru deja existent, încercând să înglobeze, de la bun început sau din mers, diverse condiționări, răzgândiri, reveniri și noi idei. Și fix toate aceste aparente inconveniente pot crea premisele unei reușite. E cazul locuinței de față, care ar fi trebuit să fie… alta. În 2020, cu un proiect gata de execuție și o autorizație de construire, beneficiarii și-au dat seama că nu aceea era casa pe care și-o doreau de fapt.
Noul concept trebuia să optimizeze și să inoveze în aceeași măsură, să propună un grad mai ridicat de funcționalitate, dar și o estetică mai îndrăzneață. Având în vedere complexitatea situației, Rucsandra Popescu a recuperat un principiu de adevăr atemporal, pe care l-a aplicat consecvent în toate instanțele proiectului – acela al simplității elementare. „Cum de la trilit până în zilele noastre nimic nou și antigravitațional nu s-a inventat în construcții, mi-am spus că cea mai bună abordare e de a gândi volume simple, concise și funcționale, într-un ambalaj novator.”
Așa a apărut ideea unei „scoarțe” continue, identice, a fațadelor și a acoperișului, din șindrilă de cărămidă, un material deopotrivă discret și expresiv. Diversitatea de funcțiuni ale locuirii e menținută sub volumul „sec” al unei case cu pante asimetrice și fațade ușor dinamizate prin decupajul zonei de zi, prin intruziunea abruptă a intrării principale și prin deschiderea unicei lunete (lucarna din acoperiș). Acestea sunt, de altfel, singurele reliefuri ale unei case dezbrăcate, în mod asumat, de artificiile prea multor decroșuri, terase/balcoane sau copertine.
Viziunea simplității și a echilibrului se confirmă și la nivelul finisajelor interioare și exterioare, arhitecta mărturisind că și-a respectat intenția de a număra tipologiile de finisaje și materiale folosite pe degetele de la o mână. Astfel, întreaga cromatică și tactilitate a casei e compusă din: beton aparent, lemn natur stejar, albul și griul din finisajele parietale și pavimente, dar mai cu seamă cărămida manuală trasă în forma de „shingle”, utilizată la placarea fațadelor și acoperișului, cu accente stacojii, aspre din corten.
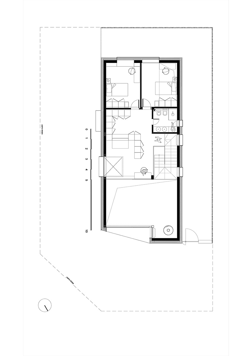
La interior, casa are zone diurne și nocturne clar delimitate planimetric. Axialitatea parterului generează transparențe de la o fațadă la alta și marchează separarea funcțiunilor principale de locuire față de cele conexe, acestea din urmă fiind plasate spre posterior/laterale. Legătura pe verticală a casei e trasată atât prin materialitatea caldă a scării de lemn și a balustradelor grațioase, cât și prin volumul amplu al supantei, deschis până sus, sub apele acoperișului. La etaj, se desfășoară o a doua zonă diurnă, mai liniștită, ce adăpostește un loc de studiu și biblioteca, înglobată în balustrada golului supantei.
Ferestrele dormitoarelor nu îndeplinesc doar rolul obișnuit, ci și acela de spațiu de refugiu și lectură, cu pervazuri generoase pe post de băncuțe confortabile, din lemn de stejar, încastrate în zone cu bibliotecă custom made. În ceea ce privește mobilierul casei, gândit bicrom (stejar și gri), culoarea e și textură în același timp, venind din însăși natura materialelor folosite.
PROIECT: Casa FUS; AMPLASAMENT: Dumbrava Vlăsiei, Balotești, România; REGIM DE ÎNĂLȚIME: P + 1E; SUPRAFAȚA TERENULUI: 459 mp; SUPRAFAȚA CONSTRUITĂ DESFĂȘURATĂ: 242 mp; ARHITECTURĂ: arh. Rucsandra Popescu – WDE SIGN; STRUCTURĂ: INCONA; INSTALAȚII: ADN-BPI; ARHITECTURĂ PEISAJERĂ: Senzui Atelier de Peisagistică; FINALIZAT: 2023
Articol publicat în igloo #215 / Efemer / august-septembrie 2023





