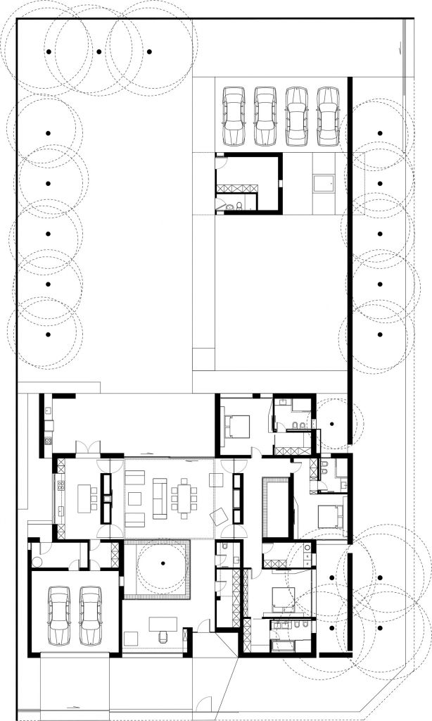
Arborii și iarba sunt exponatele protejate de cutii din sticlă luminoase – curțile interioare în jurul cărora se dezvoltă pe orizontală locuința-muzeu.

Terenul orientat către două străzi se protejează vizual față de acestea prin pereți albi, monolitici, cu fante înguste, prin care se zăresc curțile interioare plantate cu arbori. Acești pereți retrași față de împrejmuirea transparentă oferă imaginii străzii o parte a grădinii plantate și delimitează totodată o serie de curți interioare spre care se deschid toate spațiile casei.

 

Volumul alb, orizontal, cu goluri pe toată înălțimea nivelului, se deschide spre grădina privată printr-o întinsă terasă acoperită, spre care sunt orientate livingul, diningul și bucătăria. Dormitorul matrimonial este amplasat adiacent livingului și privește de asemenea spre pavilionul din grădină la care duce o alee de deck.

 

Pe partea opusă, accesul, biroul și garajul ocupă marea parte a fațadei, iar fanta orizontală de la nivelul pardoselii este singurul indiciu asupra spațiilor din spatele paravanului.

PUBLICATION_DRAWINGS_ACS10_BUILT-SPACE_GROUND-PLAN

 

Amenajarea minimalistă este definită de planurile verticale cu texturi discrete, animate de prezența elementelor naturale pe care le înconjoară. Lemnul pardoselilor și al aleilor este singurul element colorat și vivace, astfel încât rolul principal din fiecare imagine să poată fi jucat de arborii expuși în curțile de lumină: arțari, bambuși, stejari.

Pereții șemineului, ai bucătăriei și al unui coridor sunt placați cu ardezie texturată în nuanțe de gri. Fiecare spațiu are câte un singur vitraj principal: livingul și coridoarele au pereți dintr-o unică foaie de sticlă fără montanți, dormitoarele și băile privesc prin golurile verticale spre curțile plantate, bucătăria și biroul decupează imaginile naturii prin fante verticale – la nivelul blatului, respectiv la nivelul pardoselii.

 

Mobilierul predominant alb, auster, și iluminatul arhitectural discret mascat în plafon – cu excepția conului din living, decupat parcă în tehnica kirigami, întrețin atmosfera de simplitate și pace care amintesc de cultura vizuală japoneză.

***

Proiect: Casa P31 | Regim de înălțime: parter | Amplasament: comuna Moşnița Nouă, jud. Timiş | Suprafața construită desfășurată: 511 mp | Arhitectură, Arhitectură peisageră: ACS Studio, autor: arh. Constantin Şelariu | Structură: ing. Gherasim Mişca | Finalizat: 2017

Proiect prezentat în albumul Case din România. Selecție 2020

Case din Romania 2020