ARHITECTURĂ: Damir Vitković Architecture TEXT: Iuliana Dumitru FOTO: Domagoj Blaževic, Vedran Todorovski, Damir Vitković
O prezență arhitecturală cu totul inedită pe Coasta Dalmată, noul Hotel Osmolis se revendică în chip curajos de la estetica funcționalistă și riguroasă a modernismului secolului trecut. Compusă din gesturi esențiale și clare, construcția se desfășoară blând, modular, de-a lungul terenului în pantă, exploatând și accentuând deschiderea largă către mare și orizont.
Conceptul arhitectural se bazează pe câteva dualități primare: masivitate și suplețe, umbră și lumină, opacitate și transparență, toate puse în evidență de elementul-cheie al întregului proiect – betonul, a cărui frustețe sau austeritate nu e probabil printre lucrurile pe care le-am asocia în mod spontan cu atmosfera solară a unui peisaj marin. Și totuși, aici, funcționează chimia geometrică și senzorială dintre materiale (beton, lemn, sticlă), dintre volumul construit, ferm, și întinderea generoasă a cadrului natural. De altfel, intenția arhitecților de a urmări ritmul reliefului și de a-l integra în structura intimă a proiectului s-a regăsit de la bun început.
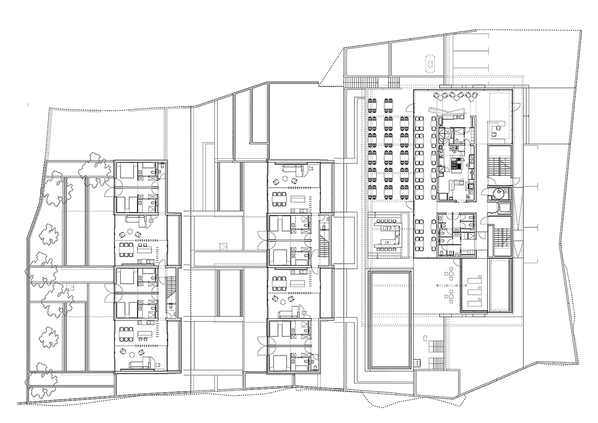
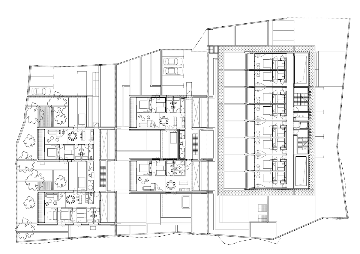
Concret, designul exterior preia metoda terasărilor din agricultură, creând o dispunere a spațiului hotelier pe diferite niveluri – terase, pajiști, piscine –, într-o înclinare lină către mare, ce oferă de la orice înălțime aceeași priveliște spectaculoasă. Această desfășurare amplă, ușor descendentă a clădirii, într-o formulă mai degrabă „risipită” și lentă decât compactă, nu e doar un mod de a îmblânzi soliditatea și fermitatea betonului, ci și de a construi cu respect pentru pământ ca fundament și de a împăca intervenția arhitecturală cu datul natural.
O altă marcă identitară puternică a hotelului o reprezintă stâlpii de susținere și plăcile uriașe din beton, așezate în consolă, ce oferă adăpost și umbră, totodată decupând scenografic imaginea mării și a insulelor. Astfel, cadre relativ îndepărtate par să devină parte din spațiile imediat înconjurătoare, iar granița dintre exterior și interior perpetuu permeabilă.
Jocul contrastelor, tensiunilor și suprapunerilor se reflectă și în materialele și texturile folosite – aspectul brut, aspru al blocurilor de beton e temperat de efectul delicat și călduros al placărilor cu lemn de la interior. Fiecare spațiu, în funcție de finisaje, dar și de felul în care se reflectă lumina de-a lungul zilei, vine cu propria atmosferă, cu propria experiență tactilă.
Mobilierul și elementele de decor mizează pe o anumită neutralitate și delicatețe formală, într-o paletă cromatică ludic-discretă. Spațiile comune ale hotelului, amplasate la nivelul parterului vitrat ce pare să plutească deasupra versantului, sunt configurate în plan deschis, lăsând interiorul învăluit de vegetația bogată a dealului.
Negocierea dintre vechi și nou a fost, de asemenea, un deziderat al proiectului, de aceea referința la discursul arhitectural modernist nu e doar o opțiune excentrică a autorilor, ci și o formă de legitimare istorică și de punere în scenă a unui interesant anacronism: hotelul, în subtila lui noutate, pare a fi instalat la locul său deja de câteva decenii.
PROIECT: Hotel Osmolis; AMPLASAMENT: Brsečine, Dubrovnik, Croația; SUPRAFAȚA CONSTRUITĂ DESFĂȘURATĂ: 2 925 mp; ARHITECTURĂ: Damir Vitković Architecture; ECHIPA: Irena Bakić, Marko Bogadi, Domagoj Ciglar, Ivana Jonke, Sven Jonke, Vanja Magić, Katarina Malić, Nikola Radeljković, Sanjin Sabljak, Damir Vitković; DESIGN INTERIOR: Numen/For Use, Damir Vitković Architecture; STRUCTURĂ: ULTRA STUDIO; INSTALAȚII: PRO-ING; INSTALAȚII ELECTRICE: NNS-EL-ING; FINALIZAT: 2022
Articol publicat în igloo #215 / Efemer / august-septembrie 2023

