ARHITECTURĂ: Metrik Architecture TEXT: Iuliana Dumitru FOTO: Sabin Prodan, Sebastian Apostol

Într-un peisaj construit în care deseori inițiativele imobiliare și arhitecturale nu propun și o viziune dincolo de zidurile clădirilor propriu-zise, WIN Herăstrău – un ansamblu de cinci imobile de apartamente, spații comerciale și birouri, realizat de Metrik Architecture – reușește să completeze țesutul urban dintre Str. Nicolae G. Caramfil și parcul Herăstrău, asigurând continuitatea traseelor pietonale dintre cele două zone.

Un prim element remarcabil al proiectului îl reprezintă spațiul interstițial creat și modelat odată cu noul ansamblu și care este la fel de important precum înseși cele cinci imobile. Astfel, de la bun început conceptul arhitectural a inclus și amenajarea unor piațete și a unui amfiteatru reinterpretat, care să aducă oamenii împreună în jurul funcțiunilor publice și să creeze un sentiment de apartenență și armonie.

Ca răspuns la eterogenitatea contextului urban existent, arhitecții de la Metrik au urmărit să obțină un rafinament sobru, al ordinii și echilibrului, lipsit de stridențe și elemente superflue. „Printr-un limbaj esențializat, bazat atât pe volumetrii clare și puternice, cât și pe o texturare diversificată, vie și durabilă, am reușit să temperăm tumultul zonei”, ne-au mărturisit ei. Așa a rezultat o divizare a fațadelor în trei registre nete, fiecare cu propriul caracter vizual și tactil.

Secțiune

Parcurse de jos în sus, acestea prilejuiesc o lectură dinamică a întregului spațiu: parterul și mezaninul sunt concepute într-un spirit al statorniciei, sugerat prin folosirea betonului aparent, în timp ce gardul viu delimitează subtil, organic logiile duplexurilor de alei; înălțarea pe două niveluri a lobby-ului fiecărui corp de clădire creează un efect ritmat; în partea intermediară – marcată printr-o cromatică deschisă și realizată în sistem ventila – asimetria poziționării logiilor și a ferestrelor, precum și panourile glisante realizate din materialul fațadei dezvăluie o amprentă ludică. Într-un gest de coerență compozițională, ultimul nivel reia stilul și materialitatea bazei, făcând însă loc unor terase generoase, poziționate pe laturile lungi ale fiecărui corp.

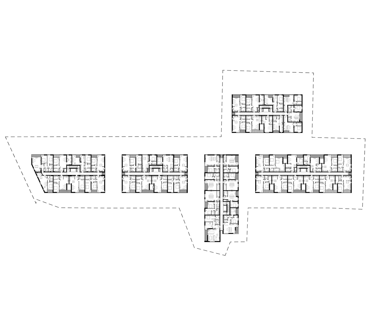
Plan etaj 1
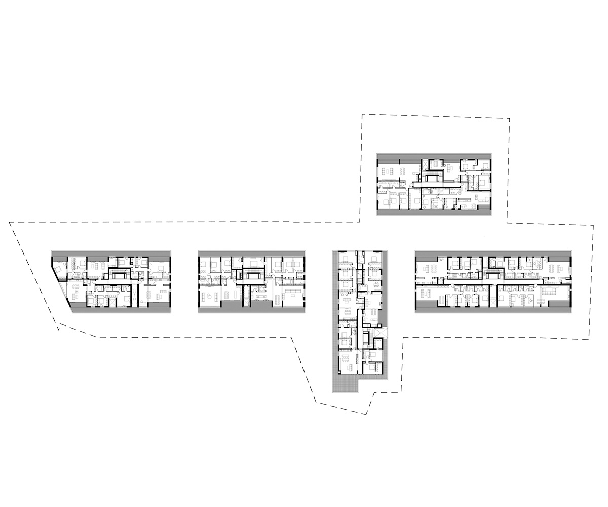
Plan etaj 5

Dinamismul atent structurat și reliefurile de la exterior se reflectă și în planimetria interiorului ce prezintă o mare varietate funcțională și tipologică, așa încât se poate afirma că e un proiect în care nu există un etaj curent propriu-zis și a cărui flexibilitate răspunde unui spectru larg de dorințe și nevoi de locuire. Parterul și mezaninul găzduiesc duplexuri cu logii vaste, spații comerciale și birouri dispuse în jurul piațetelor. Nivelurile 1-4 dispun de apartamente cu partiții și poziționări diferite de la un etaj la altul, în funcție de priveliște, având între 2 și 5 camere, iar la ultimul nivel, retras, se află apartamente somptuoase, cu o înălțime liberă de peste 3 metri și deschise către terase prin ferestre pe toată lungimea și înălțimea camerelor.

Exigența sustenabilității s-a regăsit și ea printre coordonatele definitorii ale proiectului, așa că arhitecții ne-au împărtășit câte ceva despre soluțiile la care au apelat pentru a reduce amprenta de carbon: „Încălzirea și răcirea spațiilor sunt asigurate printr-o centrală termică comună și un sistem de mini-pompe de căldură aer-apă. Pentru ventilarea spațiilor s-au utilizat sisteme de aport de aer proaspăt cu recuperare de căldură, iar suprafețele vitrate sunt, de asemenea, eficiente energetic, cu o sticlă aleasă în funcție de orientarea cardinală, pentru un control solar optim. Parasolarele glisante și cele tip rulou participă și ele la minimizarea consumului de energie pe timpul verii.”

PROIECT: WIN Herăstrău; ADRESĂ: Strada Barajul Argeș 8A, Sector 1, București; REGIM DE ÎNĂLȚIME: 2S+DS+P+5E; SUPRAFAȚA TERENULUI: 9 400 mp; SUPRAFAȚA CONSTRUITĂ DESFĂȘURATĂ: 44 000 mp; DEZVOLTATOR: PSC Group; ARHITECTURĂ: Metrik Architecture – arh. Vlad Baloșin; STRUCTURĂ: Solidis; INSTALAȚII: Bettco; FINALIZAT: 2022

 

Articol publicat în igloo 214 / Peisajul recent / iunie – iulie 2023