ARHITECTURĂ: Dubbeldam Architecture + Design TEXT: Anca Rotar FOTO: Riley Snelling
Plasticitatea și expresivitatea curbelor sinuoase definesc proiectul de remodelare a interiorului unei case în stil victorian, veche de peste 130 de ani, din Toronto, liniile curgătoare creând un interior fluid și încurajând descoperirea. Transformarea a inclus și extinderea clădirii existente prin adăugarea unui volum de locuit suplimentar către curtea din spate, protejând astfel fațada originală, precum și optimizarea conexiunii cu exteriorul și adaptarea interiorului și a spațiului curții, pentru a corespunde unui stil de viață contemporan.
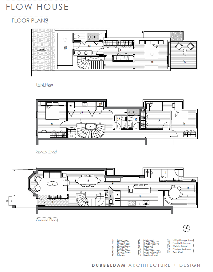
Deși are mai puțin de 5 metri lățime și o suprafață totală de 230 de metri pătrați, casa pare acum mult mai generoasă, datorită unei strategii de compresie și expansiune. Astfel, zonele interstițiale înguste se închid, creând o senzație de compresie, pentru a se deschide, apoi, spre spații mai largi, cu plafoane înalte. Parcursul interior oferă mai multe momente de surpriză și încântare, prin fuziunea dintre spațiile interioare și cele exterioare, prezența luminii naturale în locuri neașteptate și modelarea expresivă a elementelor arhitecturale, care conferă locuinței o calitate organică.
Mizând pe contururi fluide, mai degrabă sculptate decât construite, noua intervenție stabilește un contrast deliberat cu rigurozitatea planului de etaj. Inundată de lumină naturală, cu o balustradă șerpuitoare și trepte din lemn de stejar, pe care se proiectează umbre în continuă schimbare, scara elicoidală ce conectează toate cele patru niveluri devine punctul focal spre care converg formele nou generate.
În ceea ce privește mobilierul și decorațiunile, inspirați de practica de ceramist a proprietarei, arhitecții au creat un joc armonios de materiale, forme, pattern-uri și texturi. Influențele mediteraneene se îmbină în mod natural cu cele scandinave, dominante fiind tonurile de alb și esențele lemnoase, presărate cu accente de culoare.
În bucătărie, căldura lemnului natur al mobilierelui și podelelor de stejar este pusă în valoare prin detalii precum chiuveta din marmură de Carrara, accesoriile din alamă antichizată sau abajururile corpurilor de iluminat suspendate, realizate din argilă modelată manual. Accentele de culoare animă spațiile interstitiale ale casei, prin plăci de teracotă dispuse în model herringbone în holul de intrare, sau placarea cu ceramică albastră a barului ce separă bucătăria de dining.
Pentru a promova bunăstarea, în cadrul proiectului au fost puse în operă sisteme și materiale sustenabile de ultimă generație. Ferestrele și luminatoarele generoase privilegiază lumina și ventilația naturale. Panourile care compun noua fațadă din spate se retrag pentru a face loc unei terase tip deck, accesibilă printr-o ușă glisantă de sticlă, cu cadru din lemn de mahon, pe întreaga înălțime a camerei.
Amenajarea curții continuă jocul compresie-expansiune, prin paturi de grădină înguste care se deschid către spații mai largi concepute pentru joacă, luat masa și relaxare, marcate de elemente precum o pergolă de lemn, pavele de cărămidă și mobilier de exterior în nuanțe de ocru.
PROIECT: Flow House; AMPLASAMENT: Toronto, Ontario, Canada; SUPRAFAȚA: 230 mp; ARHITECTURĂ, DESIGN INTERIOR & AMENAJARE PEISAGERĂ: Dubbeldam Architecture + Design; ECHIPA: Heather Dubbeldam, Andrew Snow, Krystal Kramer, Gigi Presentey, Omkar Kulkarni; CONSULTANȚI STRUCTURĂ: Blackwell Structural Engineers; CONSTRUCTOR: DDF Contracting; FINALIZAT: 2023






