ARHITECTURĂ: VATRAA TEXT: Anca Rotar FOTO: Jim Stephenson
O familie londoneză cu cinci membri și-a dorit o reconfigurare a locuinței existente – inițial o construcție victoriană tipică – în spiritul favorizării stării de bine prin stabilirea unei conexiuni mai puternice cu grădina și optimizarea funcțiunilor interioare. Proiectul a inclus o serie de soluții sustenabile, precum instalarea unei pompe de cădură cu sursă de aer și a panourilor fotovoltaice sau simpla refolosire a materialelor existente. În plus, proprietarii și-au dorit ca schimbarea de look a casei să le reflecte pasiunea pentru artă și muzică, să încorporeze armonios și să pună în valoare mobilierul de designer și să fie prietenos cu animalele de companie.
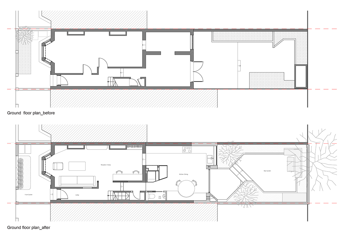
Având în vedere specificul arhitecturii londoneze, din ce în ce mai multe locuințe din capitala britanică necesită, în momentul de față, reconfigurări care să țină cont și de extensiile adăugate structurilor originale de-a lungul timpului. În cazul de față, acestea constau într-un spațiu tip loft, care a fost lăsat neschimbat din motive de cost, și într-o extensie a spațiului de living a cărei relație cu grădina lăsa de dorit. Astfel, principalele provocări ale proiectului au fost remodelarea celei de-a doua extensii cu scopul de a stabili un dialog continuu interior-exterior, și integrarea loft-ului în așa fel încât acesta să apară ca o parte integrantă a structurii principale.
Proiectul oferă un bun exemplu de remodelare a unei structuri existente cu folosirea limitată de materiale noi. Într-o primă fază, arhitecții și-au propus să refolosească în întregime cărămida din componența extensiei inițiale, însă, deoarece nu toate piesele au putut fi recuperate, unele porțiuni ale exteriorului au fost completate cu cărămizi preluate din alte situri din oraș.
Mai mult, o serie de decupaje atente în fațadă au rolul de „aduce grădina în interior”, aceasta devenind o prezență constantă ce însoțește orice moment din viața beneficiarilor. Acoperișul verde este un alt element care facilitează un stil de viață apropiat de natură. De asemenea, pentru că și bunăstarea membrilor patrupezi ai familiei a constituit o prioritate importantă, în cadrul soclului de beton al jardinierelor a fost prevăzută o ușiță pentru pisici.
În ceea ce privește finisajele interioare, s-a mizat pe simplitate și funcționalitate, cu scopul de a pune în valoare piesele de mobilier existente și lucrările de artă, precum și de a asigura spațiu pentru echipamentul necesar proprietarilor, de profesie producători de muzică. În fiecare încăpere, contrastele subtile între materiale, texturi și culori mențin echilibrul vizual, creând un mediu seren și primitor.
PROIECT: Extindere și recofigurare locuință în stil victorian; AMPLASAMENT: Stoke Newington, Hackney, Londra, Marea Britanie; ARHITECTURĂ: VATRAA; ECHIPA: Anamaria Rusu, Bogdan Rusu; FINALIZAT: 2023







