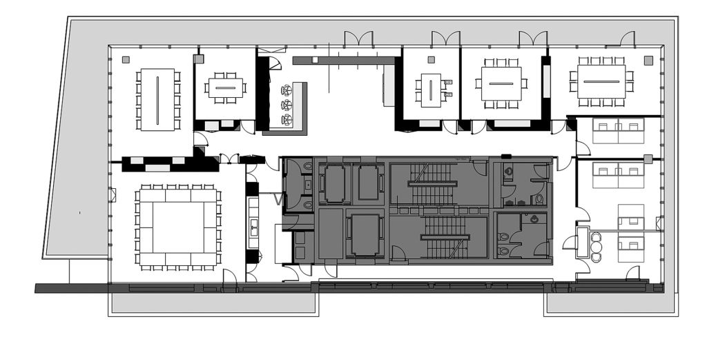
Proiectul semnat de echipa de arhitecți Biro­architetti împreună cu REC_Immpuls a presupus reamenaja­rea unui spațiu de 400 de metri pătrați ce deservește zona de recepție a unui important birou european de avocatură, filiala din București.

Miza proiectului a fost aceea de a crea un ambient gândit până la cele mai fine detalii, având în vedere că acesta constituie și primul contact cu vizitatorii – un spațiu, așadar, perfect echilibrat, funcțional și elegant, cu o identitate puternică, dar discretă.

Coloana vertebrală a amenajării o reprezintă ceea ce arhitecții au numit „zidul chinezesc” – o structură multifuncțională care trece de la elemente verticale la cele orizontale printr-o singură mișcare, continuă, și care marchează (și maschează totodată) atât zona sălilor de întâlniri private, cât și recepția. Albastrul-gri adânc și sobru al acestei suprafețe (realizate în MDF frezat și lăcuit) conferă persona­litate întregului spațiu, în contrast cu zidurile albe și accentele de galben-muștar ale canapelei și ale elementelor numerice stilizate.

Complementar geometriei atent calculate a „zidului chinezesc” este, în partea superioa­ră a încăperii, sistemul de iluminare personali­zat („light snake”), care conturează zonele publi­ce. Designul cuprinde, în plan secund, și o chicinetă ascunsă, ce se poate deschide complet pentru evenimente.

O atenție sporită a fost acordată calității mediului de lucru în general, grație sistemului de ventilație și luminii, cărora li se adaugă și avantajul unei priveliști spectaculoase asupra centrului orașului.

Proiect publicat în Birouri din România. Design interior 3

coperta-shop_BIRINT3-360x469