ARHITECTURĂ: OOOOX TEXT: Anca Rotar FOTO: Martin Zeman

Printr-o abordare sensibilă, proiectul recuperează o clădire cu o istorie documentată încă din Evul Mediu, când a servit drept post de gardă, și o transformă în locuință contemporană. O atenție deosebită a fost acordată păstrării elementelor valoroase ale existentului, precum boltele de la parter, plafoanele din lemn de la etaj și sobele ceramice, care au fost completate prin punerea în operă a metalului și soluțiilor contemporane. Mobilierul modern își găsește locul în mod natural în cadrul reconstituit, creând un mediu distins, elegant și, în același timp, plin de căldura și confortul unui veritabil cămin.

La momentul demarării proiectului, clădirea se confrunta cu probleme specifice construcțiilor foarte vechi, în special la nivelul parterului, unde zidul original de piatră era afectat de umiditate. Arhitecții au ales să îndepărteze tencuiala adăugată în cadrul intervențiilor anterioare, expunând zidurile și bolțile pentru ca structurile să poată respira, și aplicând tencuială de reabilitare numai pe partea inferioară a zidurilor perimetrale. Celalalte finisaje interioare sunt glazurate și fin lustruite, creând un discret, dar captivant, joc de reflexii și texturi. Bolțile au fost atent consolidate, iar sursele de lumină amplasate în așa fel încât să mențină imaginea unitară, compactă, a acestora.  

text1_2_oooox-hradby-martin-zeman-06

Parterul conține acum un living spațios cu șemineu și spațiu de dining, o bucătărie separată, precum și o cameră de oaspeți, amenajată pe locul ocupat anterior de un garaj. Zidăria expusă este vopsită în tonuri de gri, iar trecerile prin pereții portanți masivi sunt marcate de placări subțiri din oțel ceruit. Pardoselile sunt realizate din plăci de dimensiuni relativi mici, îmbinate în „coadă de rândunică”. Zona de dining cu masă rotundă este marcată de un candelabru impunător, o reinterpretare contemporană a unei piese clasice. În bucătărie, plafonul boltit a dictat crearea unui mobilier atipic, ce respectă particularitățile spațiului și, în același timp, răspunde nevoilor contemporane. Insula centrală este realizată din lemn masiv, cu blat din oțel inoxidabil, iar dulapurile au uși din oțel.

text2_oooox-hradby-martin-zeman-11

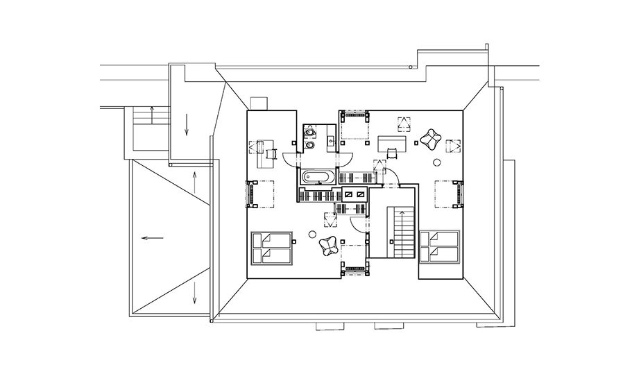
Etajul este accesat printr-o scară îngustă, cu balustradă metalică iluminată ce scoate în evidență contrastul dintre piatra originală expusă și tencuiala nouă, și este amenajat ca un apartament de sine stătător, cu două dormitoare, două băi, și un spațiu de living adițional. În contrast cu parterul, aici, accentul cade pe crearea unei atmosfere calde, intime, facilitată de prezența lemnului. Plafoanele cu grinzi au fost tratate cu deosebită grijă, urmărind restaurarea, pe cât posibil, a aspectului lor original, iar pardoselile existente, din scânduri, au fost periate și unse cu ulei, pentru a căpăta o ușoară tentă gri, și suplimentate cu pavaj de cărămidă recuperat. Sobele originale, cu plăci ceramice, au fost, la rândul lor, recondiționate. Iluminatul indirect scoate în evidență elementele valoroase și creează o atmosferă relaxantă. Dormitorul matrimonial este dominat de un pat cu baldachin reinterpretat în cheie contemporană.

text4_oooox-hradby-martin-zeman-26

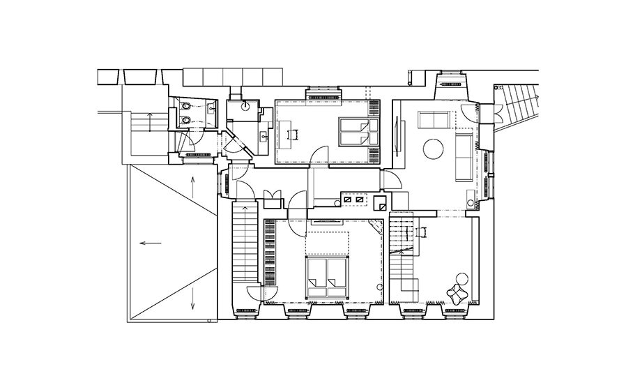
O scară metalică cu balustradă suspendată conduce către ultimul nivel, cel al podului, transformat într-un loft contemporan, cu baie proprie. Structura originală a acoperișului a fost păstrată aproape în totalitate – grinzile deteriorate fiind înlocuite manual –, și completată cu termoizolație pe căpriori, ceea ce a permis expunerea sa. Această soluție permite, de asemenea, supravegherea stării structurii și intervenția rapidă în caz de necesitate.

 

Întreaga locuință este deservită de un sistem de încălzire prin pardoseală cu pompă de căldură și recuperarea căldurii, instalat cu mare atenție și suplimentat de șemineul din living. Ventilația este, de asemenea, asigurată de un sistem cu recuperare de căldură. Gurile de ventilație sunt echipate cu grile din fontă de epocă, iar instalațiile electrice sunt ascunse, pentru a menține coerența interiorului.

Plan parter
Plan etaj
Plan mansardă

PROIECT: Hradby; AMPLASAMENT: Republica Cehă; REGIM DE ÎNĂLȚIME: P+E+M; SUPRAFAȚA CONSTRUITĂ: 120 mp; SUPRAFAȚA UTILĂ: 300 mp; ARHITECTURĂ: OOOOX; AUTORI: Radka Valova, Petr Vlach; FINALIZAT: 2023