ARHITECTURĂ: igloo associated architects TEXT: Bruno Andreșoiu FOTO: Arthur Țințu
Totul a început cu o neștiință și o renunțare. Neștiința de a găsi o formulă estetic rezonabilă pentru a sprijini volumul alb și foarte vitrat care urma să conțină crama turistică. Și, finalmente, renunțarea de a mai găsi una, lăsând volumul să plutească liber, nesprijinit, cale de vreo 13 metri.
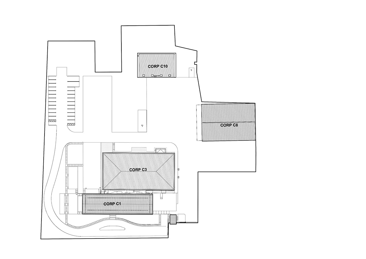
Sigur că nu a fost chiar așa, cronologic vorbind. Adică până la neștiință și renunțare apucaserăm să facem deja câțiva pași. Primul a fost analiza vechii platforme viticole din arealul Murfatlar ce trebuia transformată într-o cramă modernă. Al doilea, rezultat direct al analizei și temei de proiectare, a fost reorganizarea întregii incinte inclusiv prin imaginarea unei extinderi turistice, funcție până atunci ca și inexistentă. Au fost păstrate, pentru consolidare și modernizare, halele reutilizabile (3 la număr), iar restul a fost propus demolării. Integrarea lor într-o arhitectură explicit contemporană a stârnit la început mici reacții alergice, dar ele au fost depășite cu susținerea lipsită de echivoc a proprietarilor. Mulțumiri, Emi, pe această cale!
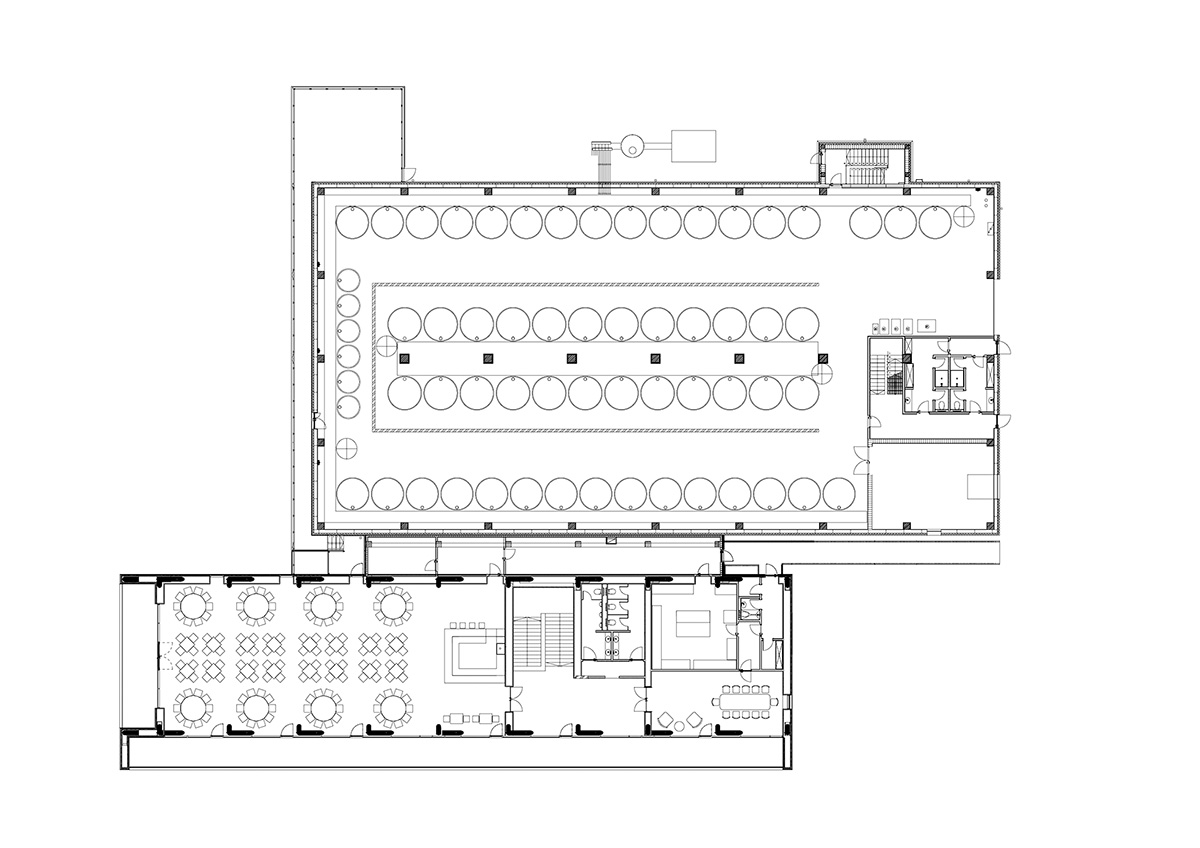
Abia când am ajuns aici cu deciziile și desenele am renunțat la orice sprijin pentru volumul adăpostind crama turistică și realizarea unei console de 13 m, una dintre cele mai mari din România. Treaba a fost, evident, foarte complicată structural, dar inginerul proiectant a rezolvat-o excepțional, chapeau bas, Costi, pe aceeași cale! Rezultatul obținut este o cutie albă, mult vitrată, plutitoare, așezată pe o bază de cărămidă și sticlă ce îmbracă și primul nivel al halei principale de vinificație. Poziția înălțată și vitrajul generos asigură perspective excepționale asupra viilor care înconjoară, din toate părțile, incinta.
Cele 3 volume alăturate și materialitățile lor diferite încearcă să exprime, prin însăși natura lor, câte ceva din complexitatea ansamblului: așezarea noii activități de turism viticol (cutia albă) pe o tradiție locală a vinificării (baza de cărămidă) alături de producția industrială modernizată (hala existentă îmbrăcată în tablă gri). În plus, suprafața albă a volumului principal este placată cu Equitone, un material compozit care oferă nu doar rezistență și durabilitate, ci și o textură controlată, sobră, ce subliniază puritatea liniilor și claritatea arhitecturală a consolei. Elansarea volumului alb, inclusiv prin consola uriașă, încearcă să captureze câte ceva din îndrăzneala proprietarilor, relativ recent intrați în lumea vinului, dar cu ambiții (și deja rezultate) foarte serioase.
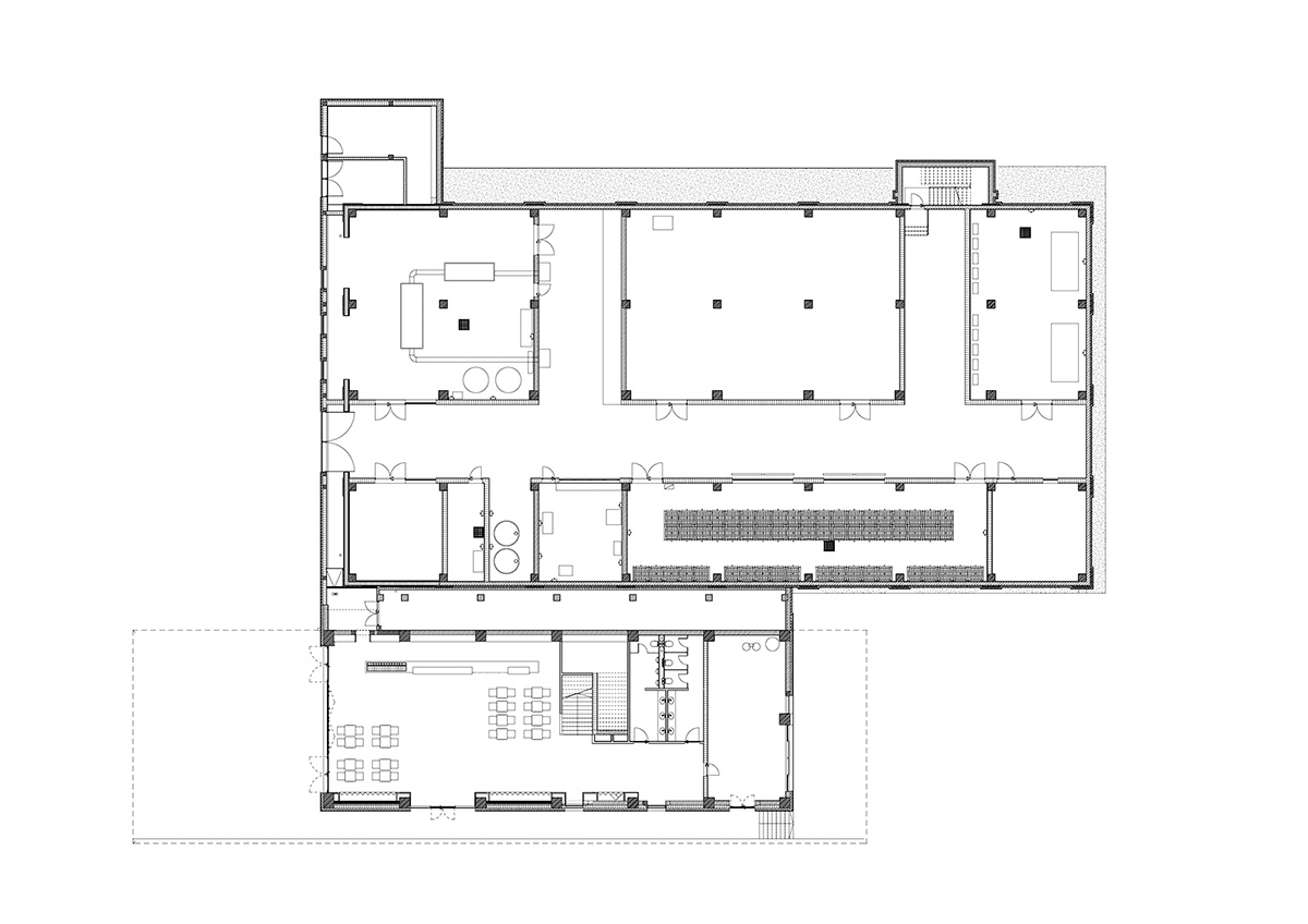
Interiorul zonei turistice își construiește propria identitate din materiale actuale, dar familiare universului viticol tradițional: lemn de stejar, metal negru, calcar. Plus câteva elemente din marmură colorată (burgund, roz pal) care trimit, de pe blaturile meselor, la soiurile vinificate și servite aici. Recepția e un spațiu multifuncțional și de tranziție: acces, imagine identitară, magazin și spații de degustare, distribuție către etaj și terase. Deasupra ei se găsește zona degustării și petrecerii, împărțită în două spații cu destinații clare: un restaurant de 150 de locuri și o sală VIP, pentru grupuri mici și speciale. Inutil de menționat că interiorul este în întregime custom made, rezultat al unui efort complex de proiectare, execuție și montaj in situ.
Amenajarea interioară a fost completată de selecția atentă de mobilier și finisaje: scaunele și fotoliile Cizeta, pardoselile LVT Creation 55 Cambridge de la Gerflor, suprafețele ceramice din colecțiile Marazzi (Mystone Berici și Lume), precum și obiectele sanitare și bateriile semnate Sanycces, The.artceram și Hapa Design. Toate aceste piese, furnizate de Zoiss home design, completează firesc arhitectura și dau interiorului coerența și rafinamentul necesar pentru a susține experiența cramei în întregul ei.
PROIECT: Crama Domeniile Mitroi; AMPLASAMENT: Valul lui Traian, jud. Constanța; REGIM DE ÎNĂLȚIME: D+P; SUPRAFAȚA TERENULUI: 17 196 mp; SUPRAFAȚA CONSTRUITĂ DESFĂȘURATĂ: 5 000 mp; ARHITECTURĂ: igloo associated architects (arh. Bruno Andreșoiu, arh. Andrei Creangă, arh. Raul Ardelean, arh. Mihai Popa Dragomir, arh. Giorgian Rusu); ARHITECTURĂ DE INTERIOR: igloo associated architects (arh. Bruno Andreșoiu, arh. Tudor Avram, arh. Claudia Moței, arh. Oana Radu); STRUCTURĂ: Structural Design Studio, ing. Constantin Roșoga; INSTALAȚII: Arc Engineering, Maestro Instal Consulting, DD Eurocom; ANTREPRENOR GENERAL: BRK House Construct; EXECUȚII INSTALAȚII, TEHNOLOGIE: IMSAT; EXECUȚIE MOBILIER: CMA Atelier Design; FINALIZAT: 2025
Articol publicat în igloo #228 / Adaptive reuse: arhitectura transformării / octombrie – noiembrie 2025









