Eşti student sau tânăr absolvent al unei facultăţi de arhitectură sau design? Te-ai saturat de pozele cu amenajari care nu spun nimic. Te-ai saturat de cei care stiu ei cum sa isi amenajeze singuri? Impreuna putem demonstra ca se poate si altfel!
Georgian Marcu – Consultant & Owner Green Angels Consultanta Imobiliara organizeaza un concurs de idei de amenajare interioara a 3 apartamente, destinate inchirierii, intr-un ansamblu residential nou, amplasat central.
Perioada de inscriere 8.04.2013 -21.04.2013
Predarea proiecte 22.04.2013-28.04.2013
Jurizare 29.04.2013-3.05.2013
Participantii trebuie sa aiba varsta cuprinsa intre 18 si 35 de ani (18 ani impliniti la data inceperii concursului si sa implineasca 35 de ani pana la data incheierii concursului)
Concursul se adreseaza atat studentilor din cadrul Universitatilor de arhitectura din tara cat si celor care au absolvit in promotia 2012.Se poate participa si in echipe a cate maxim 3 membrii fiecare.

Este interzisa participarea la concurs pentru:
- membrii juriului
- angajati si rude ai organizatorului
- angajati si rude ai partenerilor si sponsorilor
- si, in general, orice persoana care participa direct sau indirect in realizarea acestui concurs.
INSCRIERE/PARTICIPARE LA CONCURS: pentru a participa la concurs se completeaza un formular tip pe care îl puteti descarca de pe site-ul concursului: http://www.greenangels.ro/concurs
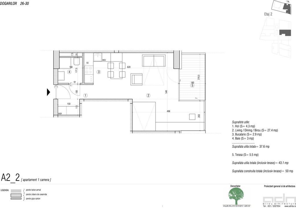
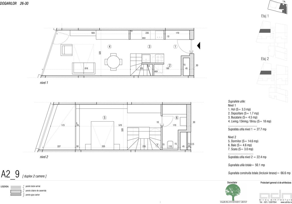
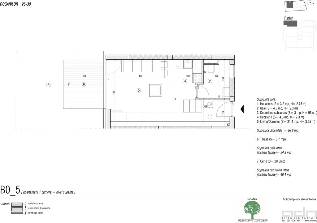
TEMA: design interior- amenajarea a unuia din cele 3 apartamente destinate inchirieri.
CONDITII PENTRU PREDAREA PROIECTELOR:
1.Dosarul de proiect va cuprinde:
- maximum 2 planşe simple ,format A0, paginare verticală;
- descriere a proiectului redactată în limba romana (maxim 1 pagină format A4 / 3.000 caractere, .doc sau .pdf).
- Formularul de înregistrare completat;
- Un CD/DVD, conţinând planşele (.jpg sau .pdf la rezoluţie 300 dpi), descrierea proiectului şi formularul de înregistrare.
2. Continutul planselor:
Modul de organizare al planşelor este la libera alegere. Planşele pot să conţină, în funcţie de secţiunea de concurs pentru care va fi realizat proiectul, planul ansamblului, vederi, axonometrii, perspective, detalii reprezentative, perspective de ambianţă, precizarea materialelor utilizate.
3.Predarea proiectelor:
Se va face la sediul firmei Green Angels- Soseaua Mihai Bravu, Nr 147, BL D5, SC E, Parter, Ap 156, interfon 56, sector 2 Bucuresti.( punct de reper Stadionul National fostul Lia Manoliu)

JURIU:
- Georgian Marcu- Broker/Owner Green Angels Consultanta Imobiliara.
- Codruta Brujan-Urban Spaces
- Cristina Serban
- Sebastian Gulya
- Confidential (hint: unul din proprietari.)
PREMIUL: cel mai bun proiect se premiaza cu 500 euro.
Utilizarea de catre Georgian Marcu & Green Angels a proiectelor: persoana care depune o lucrare in cadrul acestui concurs certifica si garanteaza ca el/ea este autorul exclusiv si unic si ca lucrarea respectiva nu incalca in mod direct sau indirect drepturile unei terte parti.
Utilizarea lucrarilor – pentru intreaga participare in concurs se considera acordul liber si exclusiv al autorului unei lucrari pentru ca lucrarea sa, daca este selectata de juriu sa fie reprodus si prezentat de Georgian Marcu & Green Angels in perioada de drept de autor, in toate mediile de comunicare in legatura cu Concursul organizat, inclusiv achizitia unor spatii publicitare. Aceasta priveste in special: pachete de presa , pagini de web ale lui Georgian Marcu si ale partenerilor sai, toate formele de programe de televiziune, brosuri, prin toate institutiile de presa, fie scrisa, TV sau pe internet, pentru o perioada de cinci ani de la publicarea de catre Georgian Marcu a proiectelor selectate in toate mediile, in special pentru a face publicitate Concursului.
