ARHITECTURĂ: arh. Mihai Nuță TEXT: arh. Mihai Nuță FOTO: Iulius Cristea
O livadă părăsită de mulți ani, pe o coastă a comunei Cornu de Jos, ca de altfel toate livezile din zonă, invadate de varii specii de vegetație lemnoasă și, în ultima vreme, de urși. Terenul prezintă o pantă accentuată pe direcția N-S corespunzătoare profilului transversal al construcției și geometriei linear înguste a terenului de aprox. 1400 mp.
Casa este structurată pe demisol, parter și mansardă. S-a dorit o amprentă cât mai mică la nivelul solului, din varii motive, dintre care și cel al unei amprente energetice mici și aici mă refer la cantitățile de beton și fier-beton încorporate. Astfel se ajunge că pe diagonală la partea din vale să avem aprox 4,5 m de la colțul structurii demisolului la racordul superior al șarpantei de sită. Motivul conceptual al proiectului a fost încercarea de a oferi o altă imagine a arhitecturii tradiționale românești într-o mică fuziune dintre modul oltenesc și arhitectură dou-gong specifică Japoniei, Chinei și Coreii. Structura de lemn a casei este realizată din profile de rășinos masiv (brad/molid) cu lungimi de maxim 8 m delimitate de puterea de debitare a gaterului. Lemnul trebuie să fie tăiat în perioada recomandată și de specialiștii Romsilva respectiv octombrie-aprilie. Mai nou, datorită decalarii anotimpurilor, cred că e mai propice termenul de noiembrie-aprilie. La stâlpii pridvorului s-au folosit profile de larice, acesta având densitatea de două ori mai mare că a molidului.
Conceptul de arhitectură este într-o relație intimă cu cel structural, astfel el ar fi bine să fie elaborat de către architect și nu de către inginer. Desigur că mă refer la case de dimensiuni mici și nu vreau în nici un caz să concurăm arhitecții interbelici care făceau fără ingineri, ci numai în baza unor modele de calcul, structuri cu regim de înălțime de P+9. În țările pe care le-am enumerat din estul îndepărtat există maeștrii dou-gong prin care s-a transmis din vechime tehnica de a realiza structuri de lemn cu multiple niveluri, fără a fi licentiații unei universități de profil. Aceste structuri au integrate în concept și modul de a răspunde sarcinilor dinamice induse de seisme cu magnitudine mare. Există o asemănarea între acești maeștrii dou-gong și brandul de „meșteri maramureșeni” și aceasta ar fi, prin extrapolare, cam că aceea între judo și trânta populară (ne referim aici numai la tehnică și nu la simboluri, cultură, etc.).
De altfel, cea mai veche structură de lemn din lume este o pagodă din Japonia ce are aprox. 1 400 de ani. Acum, ca să dăm și inginerilor șansă de a se etala, remarcăm că cea mai înaltă structura de lemn din lume pe care o cunosc, executată din lemn masiv în concept dou-gong, ce este realizată în China și este o pagodă care are până în vârf aprox.153 m, dar, în acest caz, vorbim de lemn exotic cu densitate foarte mare, ce are totuși, și suportul unei structuri de metal.
Un maestru dou-gong spunea așa: „o casă bine făcută din lemn ar trebui să reziste 700 de ani, dar noi facem case pentru 1 000 de ani”. Luând în considerare materialul lemnos din care este executată casă (care la ei poate fi Cedru Roșu Nordic sau Hinoki Cypress, cu o densitate aproape de larice, dar sub jumătatea densității stejarului), la care există studii care confirmă comportarea în timp a materialului care spun că pe o perioada de 200 de ani proprietățile structurale ale lemnului cresc în performanță ca apoi să revină în decurs de 1 000 de ani pe o curbă foarte lină la valorile inițiale ale punerii în operă, deducem că, de fapt, o construcție de lemn din Japonia ar trebui să aibă o viață de minim 1 200 de ani.
La noi, nu am găsit calcule de această factură pe speciile autohtone, dar presupunem că o structură din stejar depășește cu generozitate această barieră de timp, iar una din brad/molid ar trebui să fie mai mică. Una din regulile esențiale ale vieții lemnului este aceea ca el să fie ferit de precipitații cel puțin pe perioadele de înget-dezgheț. De asemenea, lemnul trebuie îndepărtat de zone ce ar putea menține umiditatea și asta ar însemna că în zonele adiacente casei să fie pietriș care să rupă migrația apei prin capilaritate și, implicit, evitarea plantațiilor de orice fel. Apoi, avem acel aspect tradițional cu șarpante care protejează generos pereții și prispa casei (acel spațiu engawa la japonezi).
Să revenim la arhitectura arhaică „țărănească” cu înțelepciunea și autenticitatea ei și să punem în evidență un concept oltenesc în care grinda logitudinala a prispei este susținută mai mult de profile de lemn solide ce vin din pereții transversali ai casei și mai puțin de stâlpii prispei. E cazul celor doi stâlpi de larice marginali și exclude cazul stâlpului central ce susține direct grinda pentru a nu fragmenta spațiul interior. Peste această grindă transversală vin niște grinzi perpendiculare ce, spre exterior, capătă sensul de gong, căci peste acestea vin cele șapte dou-ri ce poartă o grindă longitudinală secundară. Rolul acestor suprapuneri structurale este și acela de a ridica cota șarpantei și a expune vizual mai pregnant grinda principală longitudinală care, în multe cazuri, stă în umbră cu toate că aceasta poate avea mesaje și prelucrări artistice specifice. Nu este cazul nostru, pentru că nu am găsit material la dimensiune din larice. Consider că bradul și molidul se comportă destul de impropriu în cazul abordării decorative, fiind cel mult partener la anumite decupaje deco. Cel mai bine se pretează cu siguranță stejarul sau salcâmul, care este cea mai dură specie din Europa (introdusă recent la noi , pe la 1850, cu primele plantații în Oltenia), depășind tisa care este oricum ocrotită.
Modelul de stâlpi periferici este oltenesc, iar modelul de stâlp central este tot oltenesc, cu particularitatea că, din ce știu, este singurul model de stâlp antropomorf de la noi și care poate chiar aduce undeva cu vestita cultură dogon. Sita este realizată din brad (mai rezistent decât molidul) în 4+ straturi, montată cu cui ascuns zincat, grosime 7-8 mm, grosime primul rând și floare coamă 10-11 mm (floarea de coamă zisă și „ciocalandru” este tot de reprezentare oltenească), lungime 33 cm, expunere 8 cm și are acel bot de rată într-o viziune nouă. De altfel, acest model de șindrilă este singurul endemic românesc din multitudinea de abordări de la noi. Finalitatea structurală a șarpantei este realizată prin îndesirea laților de 45 mm cu interspații de 45 mm teșiți la capăt și, deci, eliminând detaliul de pazie care ar fi fost singurul element morfologic de lemn ce trebuia schimbat sau servisat mai des datorită expunerii la intemperii, și care nu avea, oricum, răspuns la geometria racordului pe curb. Astfel, la final singurul detaliu de lemn ce trebuie schimbat la o perioada rămâne sita. Perioada pe care o putem prelungi până la 50-70 de ani dacă se acordă atenție servisării cu un baiț corespunzător la momentele la care lemnul o cere. În structura de închidere a șarpantei, peste astereală avem o membrană specială care, conform fișei tehnice, ar avea protecție UV nelimitată.
Pentru servisarea sitei la perioade s-au montat niște sisteme speciale pe care se vor ancora carabinele ce vor servi drept asigurare pentru cățărătorii utilitari, care, altfel, ar opera aruncând coarda peste coamă, fapt ce ar distruge definitiv floarea (ciocalandrii). Șindrila este tratată cu baiț nuc închis, lemnul exterior cu baiț nuc deschis și interiorul cu baiț transparent pentru o luminozitate mai mare a spațiului interior. Pereții demisolului sunt placați cu piatră de Moroieni într-o compoziție dinamică prin combinarea de plăci cu dimensiuni generoase. Piatra de pe pavimentele exterioare este un calcar foarte rezistent și foarte deschis, produs de o carieră din Dobrogea, ce creează un contrast cu ambianța lemnoasă de nuc a exteriorului.
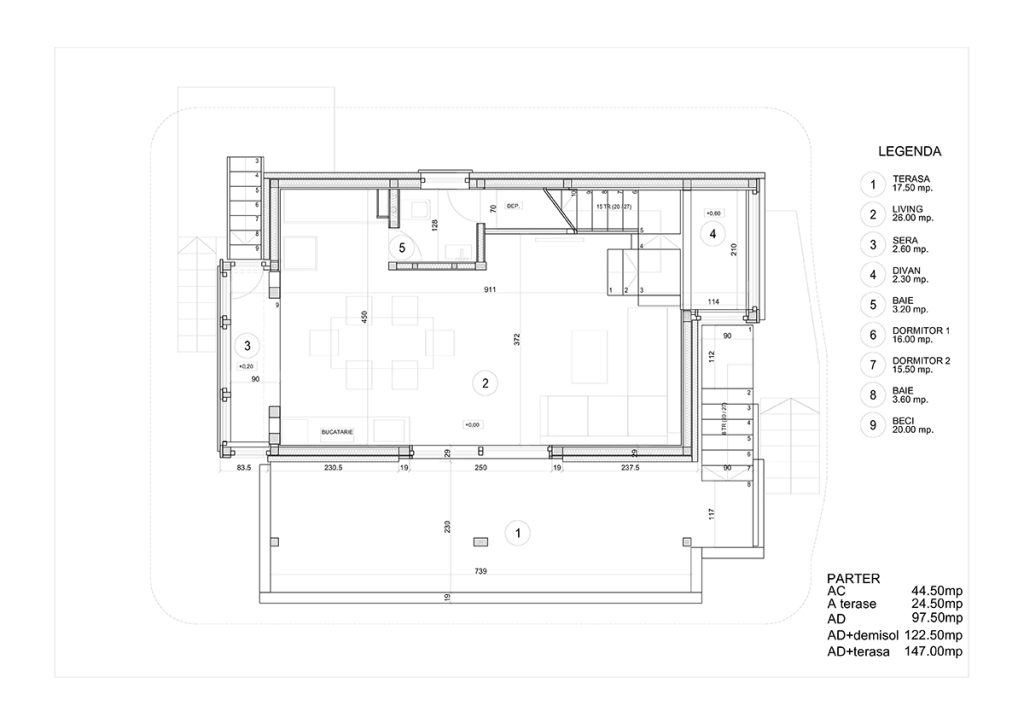
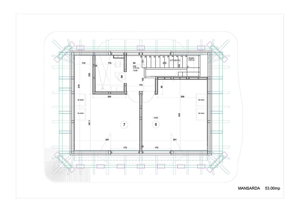
Planul parterului este definit de prispa generoasă și spațiul livingului compus din living cu loc de luat masa, minibucatarie, o baie de serviciu, o seră și un divan (conceptul de „divanul din living” dezvoltat ca un box închis cu sticlă ce participă la activitatea din living, dar, în același timp, se retarge într-un intim dialog cu natură, este împrumutat din arhitectura unor case din Australia). Tot în parter mai există un acces secundar direct în zona de seră și scara de acces către cele două dormitoare de la mansardă.
Rămâne să ne uităm tot la continentul Nord-American care, relativ la șindrilă, are singura societate serioasă din lume, de pe la aprox. 1850 care, spre exemplu, precizează că se montează șindrilă cu cui ascuns și acesta zincat sau poate de inox (dacă se află locația în apropriere de zone cu salinitate mare), care stabilește toți parametrii producătorilor de șindrilă. La membrii societății americano-canadiene încadrarea de calitate a produsului nu-l faci tu că firmă ci se delegă o altă firmă membru activ, care îți califică produsul.
Dacă ne uităm la Europa, vom înțelege vorba românescă ce zice „câte bordeie atâtea obicee” și găsim că firmele producătoare și montatoare care importă și montează produse și din continentul nord-american respectă niște standarde și niște reguli. Celelalte spun povești pentru clienți și arhitecți idealiști. Cum ar fi că șindrilă de brad/molid netratată ține 100 de ani, sau cazul celei mai mari companii de profil și cred singură din Elveția care fiind la a 5-a generație a inventat că șindrilă poate avea și 3 mm grosime (este cazul proiectului de capelă în Alpi al marelui architect Peter Zumthor, la care șindrilă asta subțirică s-a deformat corespunzător). Japonezii au, într-adevăr, o șindrilă tehnică mai subțire, dar cu expunere de aprox. 2 cm și în minim 11 straturi ce se montează cu cuișoare de lemn.
Cred că există, totuși, speranță pentru o arhitectură în care tradiția să se exprime în modernitate prin inovație, experiment și tehnici evoluate. Ca acest fenomen să nu rămână numai la nivelul de idee și să se concretizeze în lucrări de calitate, el trebuie să beneficieze de rezoluția unor tehnici adevărate și să iasă de sub umbrela și presiunea viziunii idilice ale pictorilor de duminică.
PROIECT: Casă în Cornu de Jos; FINALIZAT: 2023; AMPLASAMENT: comuna Cornu de Jos, jud. Prahova; SUPRAFAȚA CONSTRUITĂ DESFĂŞURATĂ: AC= 44.50 / AD= 95.50; AC terasă = 24.50; SUPRAFAȚA TERENULUI: 1400 mp; ARHITECTURĂ: arh. Mihai Nuță / arh. Ilie Alexandra; STRUCTURA: ing. Nicolae Anton; INSTALAȚII: ing. Serban Cristian / Manea Sergiu; FOTO: arh. Iulius Cristea





