ARHITECTURĂ: Jan Žaloudek Architekt TEXT: Anca Rotar FOTO: BoysPlayNice
Situat în satul Kamenná Lhota, din sudul regiunii Boemia, proiectul se inserează cu exuberanță în cadrul unei grădini generoase, care a aparținut, pe vremuri, castelului din apropriere, unde compozitorul Oskar Nedbal a așternut pe portativ opereta „Sânge Polonez”. Purtându-i numele, Casa Oskar aparține arhitectului și soției sale, care speră să închege în jurul ei o comunitate vibrantă de artiști și creativi, ducând mai departe moștenirea culturală a zonei. Simțul estetic desăvârșit și atenția deosebită acordată detaliilor se fac simțite în fiecare aspect al casei, transformând activitățile de zi cu zi în experiențe pline de sens. Astfel, proiectul creează un micro-univers aparte, un sanctuar armonios dedicat tihnei și creației, în deplină armonie cu natura înconjurătoare. Casa este deschisă publicului atât pentru închiriere, cât și pentru rezidențe artistice, evenimente tip pop-up și ateliere.
Bine integrată în peisaj și în contextul istoric, casa are un aer atemporal, ce evocă aspectul unei capele – un tip de clădire care, de altfel, lipsește din sat – și, în același timp, respectă forma tradițională alungită a caselor cu acoperișuri în două ape. Materialele de construcție au fost, de asemenea, alese în funcție de context, atât cel construit, cât și cel natural. Structura portantă este din zidărie ceramică izolată, combinată cu elemente din beton armat. Fațada din stuc alb reflectă tonul și texturile clădirilor învecinate, iar acoperișul este placat cu țigle ceramice arse.
Perforațiile prevăzute pe fronton, preluate, la rândul lor, din vocabularul clădirilor din apropiere, permit luminii și aerului să pătrundă în interior, devenind, în același timp, caracteristica definitorie a exteriorului. Nișele prezente pe toate fațadele, o trimitere către arhitectura barocă, formează vestibule de intrare și loggii, iar panourile mobile din lemn de conifere acoperit cu var permit mai multe grade de deschidere.
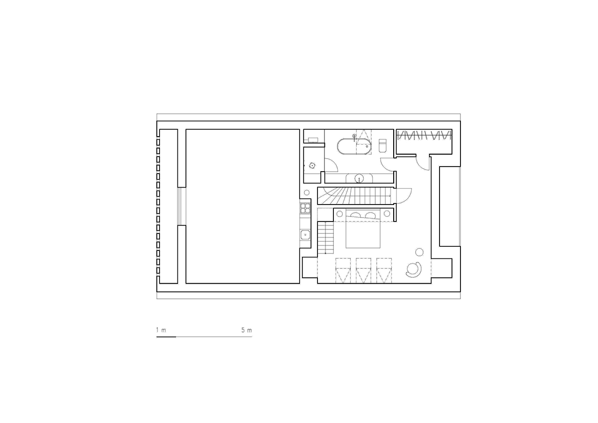
Interiorul este cald și definit de forme rotunjite, iar mobilierul din lemn și piatră, proiectat de arhitect și realizat la comandă, creează o estetică coerentă. Zona de zi surprinde printr-un tavan boltit generos, inspirat de arhitectura ecleziastică, ce se ridică la o înălțime de 7 m, iar pereții din stuc alb și ferestrele cu ramă de aluminiu susțin caracterul eteric al spațiului. Inspirația sacră este prezentă și în insula de bucătărie din granit indian, ce amintește de altarul unei biserici, sau în fereastra circulară de 2 m lățime care străpunge frontonul sudic al casei. Parterul mai include o baie, o toaletă, o cameră tehnică și un dormitor.
Nivelul superior mansardat este amenajat ca un apartament de sine stătător, cu dormitor, baie și atelier. Spre deosebire de parter, ce comunică deschis cu lumea exterioară, el este un spațiu introvertit, protejat, ideal pentru reflecție, lectură și creație. Mici ferestre de mansardă punctează caverna albă și compactă, străbătută de nișe și arcade.
Parte integrantă a vieții proprietarilor, arta joacă un rol major și în amenajare. La intrare, vizitatorii sunt întâmpinați de o mască ceremonială din Gabon, în timp ce, în zona principală de living, a fost amplasat un scaun african sculptat dintr-o singură bucată de lemn. Dormitoarele și podul sunt iluminate de lămpi sculpturale semnate de Isamu Noguchi. Toate acestea sunt juxtapuse cu creații ale artiștilor cehi, din perioada modernismului până în zilele noastre.
Locuirea este strâns legată de ciclurile naturale și de felul în care lumina se schimbă pe parcursul zilei. Deschiderile generoase estompează granița dintre înăuntru și afară, extinzându-se către terasele din lemn, verdeața luxuriantă și zidurile istorice din piatră din curtea interioară. Cantitatea de lumină solară ce pătrunde în interior poate fi ușor reglată pe parcursul zilei grație panourilor de umbrire, iar iluminatul natural este suplimentat de corpuri minimaliste, felinare japoneze din hârtie washi și strălucirea pâlpâitoare a sobei.
PROIECT: House Oskar; AMPLASAMENT: Kamenná Lhota, Republica Cehă; SUPRAFAȚA TERENULUI: 8 504 mp; SUPRAFAȚA CONSTRUITĂ DESFĂȘURATĂ: 180 mp; SUPRAFAȚA UTILĂ: 154 mp; ARHITECTURĂ: Jan Žaloudek Architekt; CONSTRUCTOR: Projekty S+S; ARHITECTURĂ PEISAGERĂ: Atelier Rouge; FINALIZAT: 2025








