ARHITECTURĂ: Dan Marin TEXT: Dan Marin FOTO: Arthur Țințu
Amplasamentul se află într-o zonă semi-centrală a Bucureștiului, cu o rețea stradală ordonată și cu un fond construit eterogen în termenii dimensiunii, vechimii și imaginii, dar fără calități arhitecturale notabile. În parcelarul cvasi-regulat delimitat prin străzi paralele, există și perturbări geometrice locale, așa cum este cazul terenului în discuție: o suprafață poligonală de 353 mp, cu o deschidere de 10 m la stradă și cu calcane diferite ca înălțime, ocupând parțial celelalte trei limite. Plecând de la o reglementare de urbanism care prevedea un regim continuu de construire, clădirea se retrage de la aliniament și, preluând calcanele laterale existente, se deschide către curtea plantată din spate, orientată sud-vest.
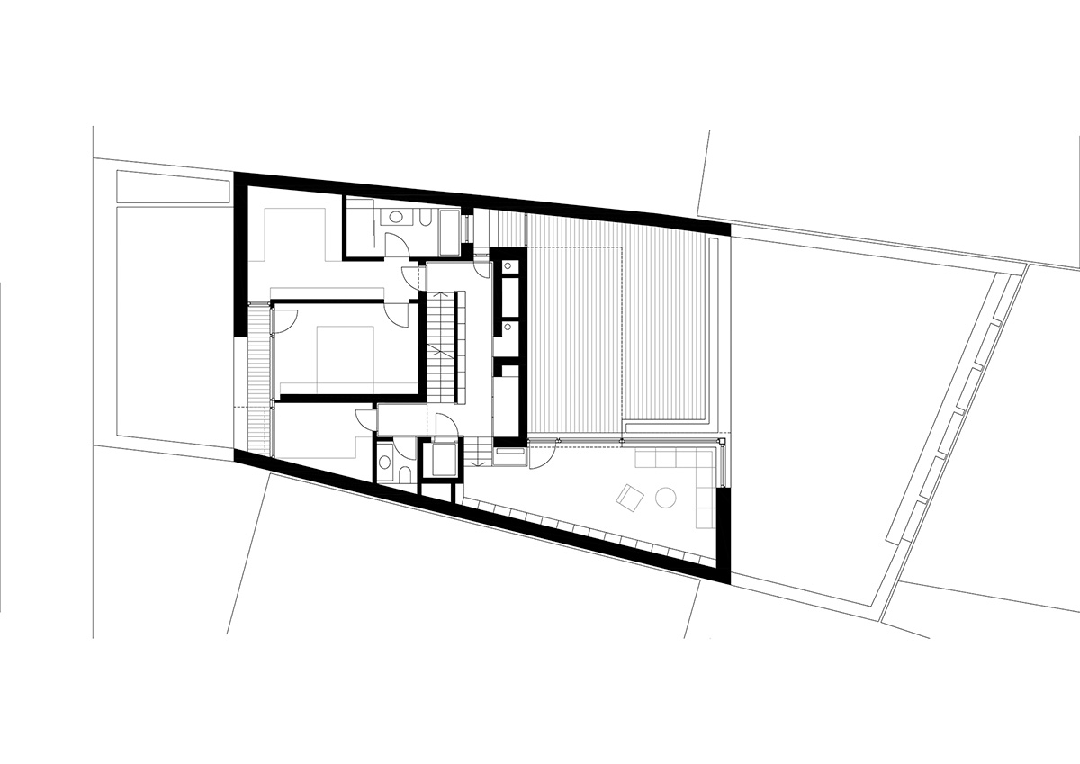
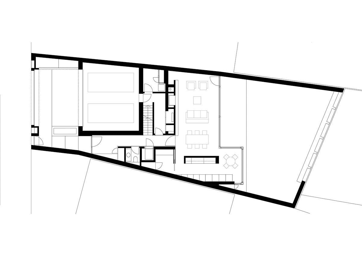
Problema a fost cea de a compatibiliza constrângerile parcelei cu exigențele unui program mare pentru dimensiunile ei și de a asigura intimitatea spațiilor în raport cu vecinătățile actuale și, în măsura posibilului, viitoare. Între direcțiile divergente ale limitelor, două axe ortogonale organizează planul: prima longitudinală – a circulației orizontale care leagă zona de intrare cu cea a living-ului și a curții plantate din spate –, a doua transversală – pe care sunt dispuse circulația verticală (scară, lift) și nucleul de echipamente tehnice (șemineu, instalații de climatizare).
Conturul și structura planimetrică diferă de la un nivel la altul: parterul este cel mai extins, cu living-ul și bucătăria, articulate prin locul de luat masa, orientate ferm spre curtea-grădină din spate. Primul etaj se retrage pentru a amplifica spațiul grădinii din spate printr-o terasă parțial acoperită, cu un living secundar pe una din laturi, iar etajul al doilea se deplasează în sens invers, făcând loc spre stradă unei terase cu piscină, închisă pe contur pentru a fi ascunsă vederii din exterior.
Decalajele între nivele, induse de diversitatea funcțională și de înălțimile diferite ale spațiilor, au condus la o conformare interioară care evocă parțial un Raumplan. În această logică, cu excepția parterului, segmentele scării de la primul și al doilea etaj nu sunt gândite ca simple circulații, ci ca secvențe care afirmă prin modelarea lor spațială continuitatea celor două nivele.
Caracterul „loosian”, explicabil mai mult prin constrângerile parcelei și ale programului decât printr-o intenție arhitecturală apriorică, se manifestă și în exterior, prin contrastul dintre închiderea fațadei spre stradă și deschiderea celei din spate, cu toate spațiile de zi complet vitrate și orientate spre curtea plantată.
Spre stradă, în absența unui caracter specific al vecinătăților, problema nu a fost cea a integrării contextuale, ci a creării unei imagini clare și stabile, care poate funcționa și individual, dar și în logica construirii înșiruite prefigurată de regulamentul de urbanism.
Sistemul constructiv este uzual, cu pereți structurali și planșee de beton armat și cu zidărie de umplutură și închidere din blocuri de BCA de 30 cm grosime. Economia de energie a fost un obiectiv important, realizat cu mijloace tehnice, dar și cu instrumente arhitecturale. Pe lângă izolarea termică eficientă a închiderilor, ele au urmărit limitarea suprafeței golurilor, crearea unor zone de umbră prin modelarea accentuată a volumului și prevederea tuturor ferestrelor cu storuri de aluminiu.
PROIECT: Casa S; AMPLASAMENT: Sector 1, București; REGIM DE ÎNĂLȚIME: S+P+2E; SUPRAFAȚA TERENULUI: 353 mp; SUPRAFAȚA CONSTRUITĂ DESFĂȘURATĂ: 508 mp;ARHITECTURĂ: arh. Dan Marin (autor) / arh. Radu Malașincu, arh. Iulia Panait, arh. Dragoș Măzărianu (colaboratori); STRUCTURĂ: ing. Mircea Neacșu (INCONA); INSTALAȚII: ing. Codruț Chirculescu (ECODIVISION); PROIECTARE TEHNICĂ FAȚADE: ing. Aram Hazarian (ALUPLAN); ARHITECTURĂ PEISAGERĂ: arh. Dan Marin; FINALIZAT: 2024
Articol publicat în igloo 223 / Profil de arhitect: C733 / decembrie 2024 – ianuarie 2025

