Principala problemă pe care amenajarea apartamentului C.A.D. a prezentat-o este una specifică apartamentelor construite în suburbia contemporană românească; este vorba despre un apartament în care lipsa de eficienţă şi confort din construcţie au impus găsirea unor soluţii realist-funcţionaliste de regândire a spaţiului interior şi de compartimentare eficientă a diverselor obiecte şi ansambluri de mobilier.

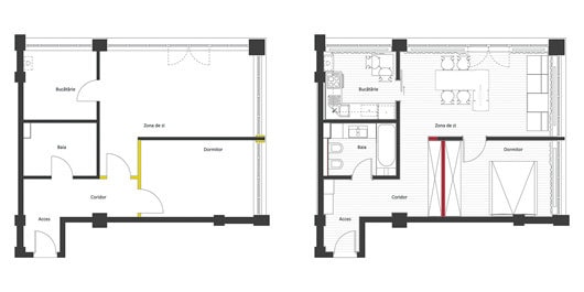
Dată fiind suprafaţa apartamentului şi orientarea pe colţul sud-estic al clădirii, amenajarea trebuia să utilizeze în mod cât mai eficient lumina şi spaţiul interior pentru a degaja spaţiul. Dacă singura modificare a partiului a fost deplasarea zidului dintre dormitor şi coridor pentru a permite încastrarea unui dulap cu acces din coridor, restul modificărilor au fost aduse plafonului şi instalaţiilor electrice, poziţiei caloriferelor şi instalaţiilor sanitare, precum şi unor elemente de detaliu cum ar fi corpurile de iluminat, profilul din aluminiu perimetral utilizat la zona de întâlnire între pereţi şi pardoseală pentru încastrarea plintei din lemn, şi ridicarea uşilor pe întreaga înălţime a apartamentului, fără toc şi pervazuri la partea superioară. Finisajul pardoselii, realizat din lemn masiv de salcâm aburit, inclusiv în baie, furnirul din stejar băiţuit folosit la finisarea uşilor şi a mobilierului creează o continuitate unitară a ansamblului.

Principalul motiv arhitectural al amenajării a fost utilizarea unei culori diferite pentru fiecare spaţiu al apartamentului: roşu pentru coridor, violet-bordeaux pentru baie, verde-oliv pentru bucătărie şi verde pentru dormitor. Zona de zi şi locul de masă, ca punct de întâlnire a tuturor spaţiilor, a devenit şi locul de întâlnire al tuturor culorilor.

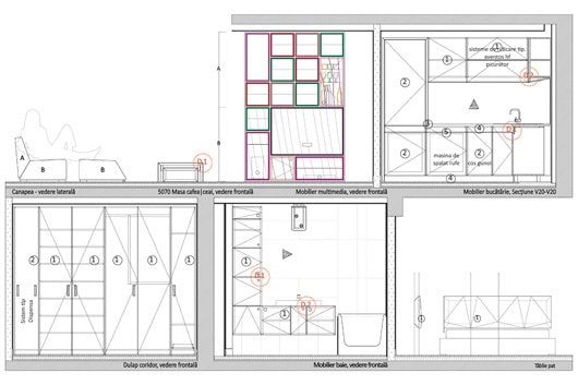
Cel de-al doilea motiv arhitectural îl reprezintă designul, funcţionalitatea şi precizia în executarea mobilierului, dar şi utilizarea tehnologiilor asistate de computer. Tendinţa accentuată de a crea un mobilier produs „meşteşugăreşte”, caracterizat prin simplitate, funcţionalitate şi calitatea materialelor, generează un spaţiu viu şi natural în acelaşi timp. Minimalismul elementelor şi dispunerea atipică a mobilierului, determinată de faptul că pe două din cele patru laturi ale apartamentului există ferestre pe toată înălţimea, contribuie la degajarea şi utilizarea maximă a spaţiului. Mobilierul multimedia central, pe toată înălţimea camerei, modulat pentru transport şi montaj, care conţine o bibliotecă cu dublu acces şi spaţii atent compartimentate pentru diferite utilizări, reprezintă o soluţie optimă prin care pereţii albi rămân neocupaţi şi contribuie la sporirea luminii interioare naturale. Mobilierul a fost gândit să îndeplinească funcţii specifice, iar poziţionarea corpurilor de iluminat urmăreşte eficientizarea iluminatului interior. O atenţie deosebită s-a acordat celui din baie, care a necesitat dezvoltarea unui design specific spaţiului.

Fără a gândi acest proiect în termenii unui „concept spaţial” sau a unei veritabile „compoziţii” arhitecturale, amenajarea a reuşit să creeze un spaţiu viu şi aerisit, a cărui funcţionalitate şi simplitate întâlneşte calitatea execuţiei şi o viziune de ansamblu în care culoarea accentuează valenţele diferite ale spaţiilor de viaţă şi contribuie la o viziune ergonomică asupra spaţiului.




