ARHITECTURĂ DE INTERIOR: Mamout Architecture TEXT: Anca Rotar FOTO: Séverin Malaud

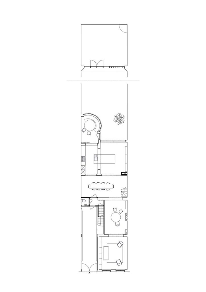
Situată la nord-est de centrul Bruxelles-ului, în Koekelberg, această casă cu patru niveluri a primit, anterior, o extensie, care a diminuat drastic cantitatea de lumină din interior, lăsându-l, practic, inutilizabil. Printr-o serie de gesturi simple, bine gândite, noua intervenție a eliberat inima casei, transformând-o într-un spațiu aerisit și inundat de razele soarelui.

Casa originală a fost construită într-un stil eclectic, în timp ce extensia amplă, cu două niveluri, adăugată mai târziu, se înscrie în stilul Expo 58, popularizat de Expoziția Universală de la Bruxelles, eveniment care a urmărit să definească direcția de dezvoltare pentru Europa după Al Doilea Război Mondial. Deși ambele structuri prezintă valoare arhitecturală, ele nu comunicau deschis, iar calitatea spațiului interior avea de suferit, în special din cauza lipsei de lumină.

text1_2023_Mamout_Jette_03LT

În loc să renoveze complet proprietatea, arhitecții au decis să deschidă inima casei prin crearea unui atrium cu înălțime dublă, prevăzut cu un luminator. O scară metalică expresivă, de un albastru deschis viu, reunește, în interior, cele două entități într-un tot unitar și, în același timp, le permite să își păstreze propria identitate. Primele două niveluri găzduiesc spațiile de locuit, în timp ce etajele superioare ale casei originale au fost amenajate ca un apartament de sine-stătător, accesat separat prin recuperarea scării exterioare existente la data demarării proiectului.

text2_2023_Mamout_Jette_14LT

În interiorul atriumului, golurile existente au fost transformate în ferestre și balcoane interioare, oferind vederi din dormitoarele de la primul etaj către zona de zi de la parter. În spatele casei, o verandă închisă de un perete vitrat curbat comunică vizual cu o terasă cu locuri de relaxare în aer liber și o peluză ce conduce către un șopron existent.

text3_2023_Mamout_Jette_18LT

Din punctul de vedere al materialității, pentru a menține fluiditatea și coerența interiorului, multe dintre finisajele interioare originale au fost păstrate, dar vopsite în alb. În atrium, un perete de cărămidă brută generează contraste subtile la nivel de textură. Diferitele zone sunt punctate discret prin placările de la nivelul podelelor, lemnul din spațiul de intrare fiind înlocuit de gresie la trecerea către atrium.  

PROIECT: Jette; AMPLASAMENT: Koekelberg, Bruxelles, Belgia; ARHITECTURĂ DE INTERIOR: Mamout architects; STRUCTURĂ: JZH & Partners; INSTALAȚII ELECTRICE: Earth&Bee; CONSTRUCTOR: Haracina Construct; FINALIZAT: 2023